Se Connecter/S’inscrire
Votre courriel a été envoyé.
2532 Abels Ln 7 710 pi² Industriel Immeuble Las Vegas, NV 89115 2 456 263 $ CAD (318,58 $ CAD/pi²)



Certaines informations ont été traduites automatiquement.
Faits saillants de l'investissement
- +/- 2,125 SF of existing office
- 400 Amp, 277/480V, 3-phase main switchgear (buyer to verify)
- Stubbed for fire sprinklers (buyer to verify)
- +/- 6,250 SF of paved, gated yard space
- Two (2) 10' x 12' (front & rear) grade level loading doors
- Evaporative cooling & oversized skylights in warehouse
Résumé de l'annonce
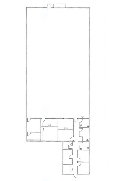
Office/Warehouse With Large, Paved Fenced Yard. Constructed of split-faced block and situated on +/- 0.50 acres, 2532 Abels Lane is a +/-7,710 total SF office/warehouse with +/- 2,125 SF of existing office space. The current office configuration includes a reception area, four (4) private offices, two (2) conference rooms, one (1) kitchenette area, one (1) file room, one (1) storage room, and two (2) restrooms. The current office space could be reduced to +/- 1,000 SF. Other amenities include a 400 Amp, 277/480V, 3-phase main switchgear to the building (buyer to verify) with 120/208V, 3-phase power panels, two (2) 10' x 12' (front & rear) grade level loading doors (the current office configuration has one (1) 10' x 12' rear grade level loading door), 16' average clear height, building stubbed for fire sprinklers (buyer to verify), oversized skylights, evaporative cooling in the warehouse, warehouse insulation, I-L zoning, and +/- 6,250 SF of paved, gated yard space.
Faits sur la propriété
Commodités
- Accès 24 heures
- Glacière
- Terrain clôturé
- Système de sécurité
- Puits de lumière
- Climatisation
Services publics
- Éclairage - Fluorescent
- Gaz
- Eau - Ville
- Égout - Comté
- Chauffage
1 1
Impôts fonciers
| Numéro de lot | 140-17-410-008 | Évaluation des bâtiments | 203 230 $ CAD |
| Évaluation du terrain | 145 956 $ CAD | Évaluation totale | 349 186 $ CAD |
Impôts fonciers
Numéro de lot
140-17-410-008
Évaluation du terrain
145 956 $ CAD
Évaluation des bâtiments
203 230 $ CAD
Évaluation totale
349 186 $ CAD
1 de 20
Vidéos
Visite extérieure 3D Matterport
Visite 3D Matterport
Photos
Vue depuis la rue
Rue
Carte
1 de 1
Présenté par
General Realty Group - Commercial Division
2532 Abels Ln
Vous êtes déjà membre? Connectez-vous
Hmm, il semble y avoir eu une erreur lors de l’envoi de votre message. Veuillez réessayer.
Merci! Votre message a été envoyé.
Votre message a été envoyé !
Activez votre compte LoopNet dès maintenant pour suivre les propriétés, recevoir des alertes en temps réel, gagner du temps sur vos demandes futures et bien plus encore.
