Votre courriel a été envoyé.
255 W Princeton Dr 4 305 pi² Vacant Local d'activités Immeuble Princeton, TX 75407 1 515 041 $ CAD (351,93 $ CAD/pi²)



Certaines informations ont été traduites automatiquement.
FAITS SAILLANTS DE L'INVESTISSEMENT
- Princeton ranks within the top 5 fastest growing cities in the nation as of 2024.
- Population growth between 80,000 and 65,000 within next 10 years.
- The average household income in Princeton is $105,589 - worldpopulationreview.com
- 36,000+ Vehicles daily along 380
RÉSUMÉ DE L'ANNONCE
2024 built warehouse flex space with 4 ground level 9' automatic roll up doors, fully heated & aired, insulated with bathroom and area for additional office to built out.
FAITS SUR LA PROPRIÉTÉ
| Prix | 1 515 041 $ CAD | Taille du lot | 0,80 AC |
| Prix par pi² | 351,93 $ CAD | Aire du bâtiment louable | 4 305 pi² |
| Type de vente | Investissement ou propriétaire utilisateur | Nombre d’étages | 1 |
| Type de propriété | Local d'activités | Année de construction | 2022 |
| Classe d’immeuble | B | Ratio de stationnement | 2,79/1 000 pi² |
| Zonage | F3 - Office Commercial Building | ||
| Prix | 1 515 041 $ CAD |
| Prix par pi² | 351,93 $ CAD |
| Type de vente | Investissement ou propriétaire utilisateur |
| Type de propriété | Local d'activités |
| Classe d’immeuble | B |
| Taille du lot | 0,80 AC |
| Aire du bâtiment louable | 4 305 pi² |
| Nombre d’étages | 1 |
| Année de construction | 2022 |
| Ratio de stationnement | 2,79/1 000 pi² |
| Zonage | F3 - Office Commercial Building |
DISPONIBILITÉ DES ESPACES
- ESPACE
- TAILLE
- UTILISATION DE L’ESPACE
- ÉTAT
- DISPONIBLE
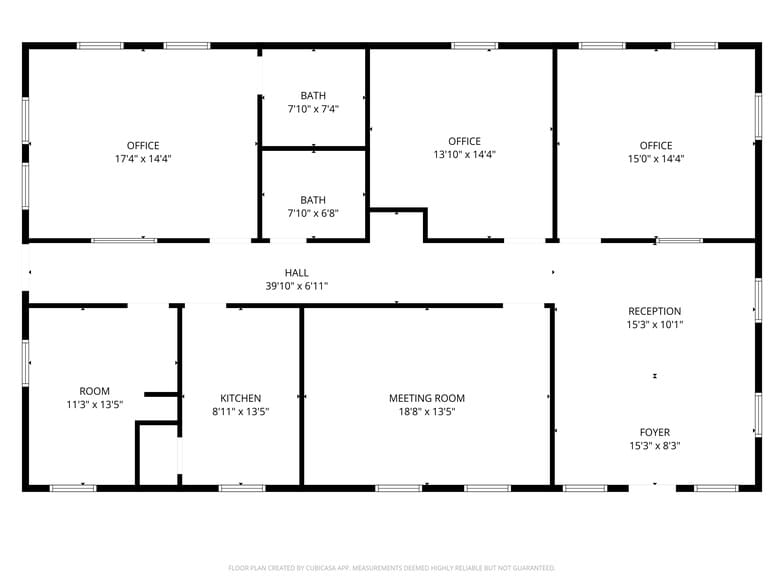
Excellent office space offering 4 private offices, large reception, conference room, break room & 2 restrooms. Perfect set up for Lawyer, CPA, Insurance, Title Company, Chiropractor, Physical Therapist or other medical use not requiring water in each room. Warehouse could be available at additional cost. 2,200sf heat/air with bathroom. No mechanical, retail, manufacturing allowed.
| Espace | Taille | Utilisation de l’espace | État | Disponible |
| 1er étage | 1 995 pi² | Bureau/Médical | construction complète | Janv. 2026 |
1er étage
| Taille |
| 1 995 pi² |
| Utilisation de l’espace |
| Bureau/Médical |
| État |
| construction complète |
| Disponible |
| Janv. 2026 |
1er étage
| Taille | 1 995 pi² |
| Utilisation de l’espace | Bureau/Médical |
| État | construction complète |
| Disponible | Janv. 2026 |
Excellent office space offering 4 private offices, large reception, conference room, break room & 2 restrooms. Perfect set up for Lawyer, CPA, Insurance, Title Company, Chiropractor, Physical Therapist or other medical use not requiring water in each room. Warehouse could be available at additional cost. 2,200sf heat/air with bathroom. No mechanical, retail, manufacturing allowed.
Impôts fonciers
| Numéro de lot | R-9620-00A-003R-1 | Évaluation des bâtiments | 458 633 $ CAD |
| Évaluation du terrain | 491 311 $ CAD | Évaluation totale | 949 945 $ CAD |
Impôts fonciers
Présenté par
255 W Princeton Dr
Hmm, il semble y avoir eu une erreur lors de l’envoi de votre message. Veuillez réessayer.
Merci! Votre message a été envoyé.



