Votre courriel a été envoyé.
259 S Churton St 12 500 pi² Local d'activités Immeuble Hillsborough, NC 27278 4 207 018 $ CAD (336,56 $ CAD/pi²)



Certaines informations ont été traduites automatiquement.
Faits saillants de l'investissement
- 16 14’ drive-in doors
- 56,500 VPD on nearby I-85
Résumé de l'annonce
Former auto dealership and collision center, ideal for motor vehicle-related businesses
16 14’ drive-in doors
±2,500 SF of office space
Zoned HIC (High Intensity Commercial) which supports a variety of uses including auto sales and repair, flex, retail, veterinary services, and more
19’ - 18’ clear height
±27 parking spaces
56,500 VPD on nearby I-85
15,000 VPD on South Churton Street
Sale Price: $3,062,500 ($245/SF)
Taxes et dépenses d’exploitation (Réel - 2025) Cliquez ici pour accéder à |
Annuel (CAD) | Annuel par pi² (CAD) |
|---|---|---|
| Taxes |
-
|
-
|
| Dépenses d’exploitation |
-
|
-
|
| Total des dépenses |
$99,999
|
$9.99
|
Taxes et dépenses d’exploitation (Réel - 2025) Cliquez ici pour accéder à
| Taxes (CAD) | |
|---|---|
| Annuel | - |
| Annuel par pi² | - |
| Dépenses d’exploitation (CAD) | |
|---|---|
| Annuel | - |
| Annuel par pi² | - |
| Total des dépenses (CAD) | |
|---|---|
| Annuel | $99,999 |
| Annuel par pi² | $9.99 |
Faits sur la propriété
| Prix | 4 207 018 $ CAD | Aire du bâtiment louable | 12 500 pi² |
| Prix par pi² | 336,56 $ CAD | Nombre d’étages | 1 |
| Type de vente | Propriétaire utilisateur | Année de construction | 1988 |
| Type de propriété | Local d'activités | Location | Unique |
| Sous-type de propriété | Manufacture légère | Ratio de stationnement | 1,92/1 000 pi² |
| Classe d’immeuble | C | Effacer hauteur du plafond | 19’ |
| Taille du lot | 2,83 AC | Nbre d’entrées dans les portes/au niveau du sol | 16 |
| Zonage | HIC - Commercial à haute intensité | ||
| Prix | 4 207 018 $ CAD |
| Prix par pi² | 336,56 $ CAD |
| Type de vente | Propriétaire utilisateur |
| Type de propriété | Local d'activités |
| Sous-type de propriété | Manufacture légère |
| Classe d’immeuble | C |
| Taille du lot | 2,83 AC |
| Aire du bâtiment louable | 12 500 pi² |
| Nombre d’étages | 1 |
| Année de construction | 1988 |
| Location | Unique |
| Ratio de stationnement | 1,92/1 000 pi² |
| Effacer hauteur du plafond | 19’ |
| Nbre d’entrées dans les portes/au niveau du sol | 16 |
| Zonage | HIC - Commercial à haute intensité |
Disponibilité des espaces
- Espace
- Taille
- Utilisation de l’espace
- État
- Disponible
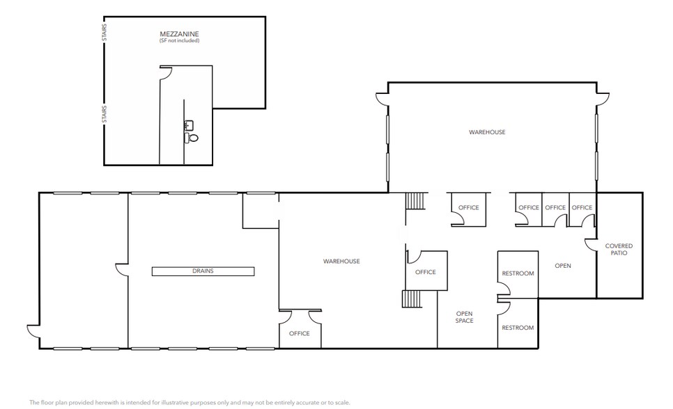
±12 500 pi² ancien concessionnaire automobile sur un terrain de 2,68 acres disponible à la location, idéal pour les entreprises liées aux véhicules motorisés. Le bâtiment comprend 16 portes de garage et ±27 places de stationnement en surface. Le plan d'étage ouvert, la grande façade et le zonage HIC (Commercial à Haute Intensité) offrent une flexibilité pour divers usages.
| Espace | Taille | Utilisation de l’espace | État | Disponible |
| 1er étage | 12 500 pi² | Flex | construction complète | Maintenant |
1er étage
| Taille |
| 12 500 pi² |
| Utilisation de l’espace |
| Flex |
| État |
| construction complète |
| Disponible |
| Maintenant |
1er étage
| Taille | 12 500 pi² |
| Utilisation de l’espace | Flex |
| État | construction complète |
| Disponible | Maintenant |
±12 500 pi² ancien concessionnaire automobile sur un terrain de 2,68 acres disponible à la location, idéal pour les entreprises liées aux véhicules motorisés. Le bâtiment comprend 16 portes de garage et ±27 places de stationnement en surface. Le plan d'étage ouvert, la grande façade et le zonage HIC (Commercial à Haute Intensité) offrent une flexibilité pour divers usages.
Impôts fonciers
| Numéro de lot | 9874023476 | Évaluation des bâtiments | 842 641 $ CAD |
| Évaluation du terrain | 1 929 390 $ CAD | Évaluation totale | 2 772 031 $ CAD |
Impôts fonciers
Présenté par
259 S Churton St
Hmm, il semble y avoir eu une erreur lors de l’envoi de votre message. Veuillez réessayer.
Merci! Votre message a été envoyé.



