Votre courriel a été envoyé.
Certaines informations ont été traduites automatiquement.
Faits saillants du parc
- San Jose's best value: Position your business alongside the world's leading companies with flexible lease terms on move-in ready spaces.
- Maximum brand visibility: Showcase your company with prominent signage along North First Street, one of Silicon Valley's primary thoroughfares.
- All the amenities: Open-air workspace, lively game room, on-site cafe Flower Flour, and private KINETIC fitness center engage top talent.
- On-site conveniences: EV charging, bike racks, auto detailing, dry cleaning & laundry, and e-waste pickup.
- Industry-leading financial stability: Lease with confidence from a well-capitalized landlord with investment-grade financial strength.
- Prime location: Easy access to 101, 237, 87 and 880 freeways, across from Component Drive light-rail station, less than 1 mile to San Jose airport.
Faits sur le parc
| Superficie totale disponible | 55 019 pi² | Type de parc | Parc de bureaux |
| Max. contigu | 18 271 pi² |
| Superficie totale disponible | 55 019 pi² |
| Max. contigu | 18 271 pi² |
| Type de parc | Parc de bureaux |
Tous les espaces disponibles(9)
Afficher les taux de location en
- Espace
- Taille
- Terme
- Taux de location
- Utilisation de l’espace
- Aménagement
- Disponible
office space for lease!
- Le taux comprend les services publics, les services de bâtiment et les dépenses immobilières.
- Disposition du plan d’étage ouverte en général
- 2 bureaux privés
- Plafonds finis: 10’
- Salle de bains privée
- Entièrement construit comme Bureau standard
- Convient pour 13 à 42 personnes
- 2 postes de travail
- Espace en excellent état
- Natural Lighting
- Le taux comprend les services publics, les services de bâtiment et les dépenses immobilières.
- Disposition du plan d’étage ouverte en général
- Espace en excellent état
- Entièrement construit comme Bureau standard
- Convient pour 17 à 53 personnes
- Peut être associé à un ou plusieurs espaces supplémentaires pour obtenir jusqu’à 18 271 pi² d’espace adjacent.
- Le taux comprend les services publics, les services de bâtiment et les dépenses immobilières.
- Disposition du plan d’étage ouverte en général
- Espace en excellent état
- Entièrement construit comme Bureau standard
- Convient pour 7 à 22 personnes
- Peut être associé à un ou plusieurs espaces supplémentaires pour obtenir jusqu’à 18 271 pi² d’espace adjacent.
- Le taux comprend les services publics, les services de bâtiment et les dépenses immobilières.
- Disposition du plan d’étage ouverte en général
- Espace en excellent état
- Entièrement construit comme Bureau standard
- Convient pour 12 à 37 personnes
- Peut être associé à un ou plusieurs espaces supplémentaires pour obtenir jusqu’à 18 271 pi² d’espace adjacent.
- Le taux comprend les services publics, les services de bâtiment et les dépenses immobilières.
- Disposition du plan d’étage ouverte en général
- Espace en excellent état
- Entièrement construit comme Bureau standard
- Convient pour 12 à 36 personnes
- Peut être associé à un ou plusieurs espaces supplémentaires pour obtenir jusqu’à 18 271 pi² d’espace adjacent.
| Espace | Taille | Terme | Taux de location | Utilisation de l’espace | Aménagement | Disponible |
| 1er étage, ste 100 | 5 183 pi² | Négociable | 64,37 $ CAD/pi²/an 5,36 $ CAD/pi²/mois 333 626 $ CAD/an 27 802 $ CAD/mois | Bureau | construction complète | Maintenant |
| 2e étage, ste 200 | 6 613 pi² | Négociable | 64,37 $ CAD/pi²/an 5,36 $ CAD/pi²/mois 425 674 $ CAD/an 35 473 $ CAD/mois | Bureau | construction complète | 2026-06-01 |
| 2e étage, ste 210 | 2 675 pi² | Négociable | 64,37 $ CAD/pi²/an 5,36 $ CAD/pi²/mois 172 188 $ CAD/an 14 349 $ CAD/mois | Bureau | construction complète | 2026-06-01 |
| 2e étage, ste 220 | 4 577 pi² | Négociable | 64,37 $ CAD/pi²/an 5,36 $ CAD/pi²/mois 294 618 $ CAD/an 24 551 $ CAD/mois | Bureau | construction complète | 2026-06-01 |
| 2e étage, ste 230 | 4 406 pi² | Négociable | 64,37 $ CAD/pi²/an 5,36 $ CAD/pi²/mois 283 611 $ CAD/an 23 634 $ CAD/mois | Bureau | construction complète | 2026-06-01 |
2590 N 1st St - 1er étage - ste 100
2590 N 1st St - 2e étage - ste 200
2590 N 1st St - 2e étage - ste 210
2590 N 1st St - 2e étage - ste 220
2590 N 1st St - 2e étage - ste 230
- Espace
- Taille
- Terme
- Taux de location
- Utilisation de l’espace
- Aménagement
- Disponible
2 private offices, 1 IT closet (with supplement 24/7 HVAC, Open workspace area
- Le taux comprend les services publics, les services de bâtiment et les dépenses immobilières.
- Disposition du plan d’étage ouverte en général
- 2 bureaux privés
- Entièrement construit comme Bureau standard
- Convient pour 3 à 10 personnes
- Espace en excellent état
• Private Offices • 2 Conference Rooms • Reception Area • Break Room • Server Room • Storage Room • Open Workspace • Ask Rate of $4.00/SF includes $0.25/SF for Flex Furniture
- Le taux comprend les services publics, les services de bâtiment et les dépenses immobilières.
- Convient pour 12 à 36 personnes
| Espace | Taille | Terme | Taux de location | Utilisation de l’espace | Aménagement | Disponible |
| 2e étage, ste 230 | 1 190 pi² | Négociable | 64,37 $ CAD/pi²/an 5,36 $ CAD/pi²/mois 76 599 $ CAD/an 6 383 $ CAD/mois | Bureau | construction complète | Maintenant |
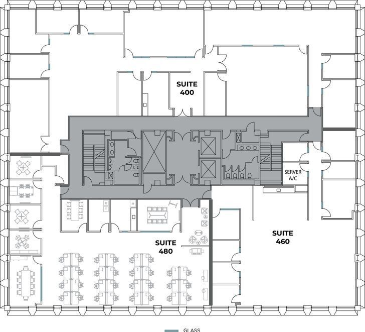
| 4e étage, ste 480 | 4 485 pi² | Négociable | 64,37 $ CAD/pi²/an 5,36 $ CAD/pi²/mois 288 696 $ CAD/an 24 058 $ CAD/mois | Bureau | - | Maintenant |
2580 N 1st St - 2e étage - ste 230
2580 N 1st St - 4e étage - ste 480
- Espace
- Taille
- Terme
- Taux de location
- Utilisation de l’espace
- Aménagement
- Disponible
22,282 square foot office space with a mostly open floor plan and a mix of private offices and conference rooms.
- Le taux comprend les services publics, les services de bâtiment et les dépenses immobilières.
- Disposition du plan d’étage ouverte en général
- 24 bureaux privés
- Espace en excellent état
- Conference Room
- Entièrement construit comme Bureau standard
- Convient pour 56 à 179 personnes
- Plafonds finis: 12’
- Salle de bains privée
| Espace | Taille | Terme | Taux de location | Utilisation de l’espace | Aménagement | Disponible |
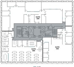
| 4e étage, ste 400 | 22 282 pi² | Négociable | 64,37 $ CAD/pi²/an 5,36 $ CAD/pi²/mois 1 434 275 $ CAD/an 119 523 $ CAD/mois | Bureau | construction complète | Maintenant |
2540 N 1st St - 4e étage - ste 400
- Espace
- Taille
- Terme
- Taux de location
- Utilisation de l’espace
- Aménagement
- Disponible
Double entry doors 1 reception / lobby 1 conference room 1 IT closet 4 private offices 1 break room Open workspace
- Le taux comprend les services publics, les services de bâtiment et les dépenses immobilières.
- Convient pour 10 à 29 personnes
| Espace | Taille | Terme | Taux de location | Utilisation de l’espace | Aménagement | Disponible |
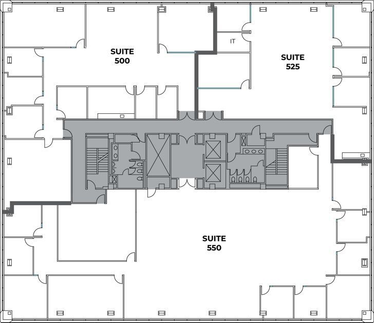
| 5e étage, ste 525 | 3 608 pi² | Négociable | 64,37 $ CAD/pi²/an 5,36 $ CAD/pi²/mois 232 244 $ CAD/an 19 354 $ CAD/mois | Bureau | - | Maintenant |
2550 N 1st St - 5e étage - ste 525
2590 N 1st St - 1er étage - ste 100
| Taille | 5 183 pi² |
| Terme | Négociable |
| Taux de location | 64,37 $ CAD/pi²/an |
| Utilisation de l’espace | Bureau |
| Aménagement | construction complète |
| Disponible | Maintenant |
office space for lease!
- Le taux comprend les services publics, les services de bâtiment et les dépenses immobilières.
- Entièrement construit comme Bureau standard
- Disposition du plan d’étage ouverte en général
- Convient pour 13 à 42 personnes
- 2 bureaux privés
- 2 postes de travail
- Plafonds finis: 10’
- Espace en excellent état
- Salle de bains privée
- Natural Lighting
2590 N 1st St - 2e étage - ste 200
| Taille | 6 613 pi² |
| Terme | Négociable |
| Taux de location | 64,37 $ CAD/pi²/an |
| Utilisation de l’espace | Bureau |
| Aménagement | construction complète |
| Disponible | 2026-06-01 |
- Le taux comprend les services publics, les services de bâtiment et les dépenses immobilières.
- Entièrement construit comme Bureau standard
- Disposition du plan d’étage ouverte en général
- Convient pour 17 à 53 personnes
- Espace en excellent état
- Peut être associé à un ou plusieurs espaces supplémentaires pour obtenir jusqu’à 18 271 pi² d’espace adjacent.
2590 N 1st St - 2e étage - ste 210
| Taille | 2 675 pi² |
| Terme | Négociable |
| Taux de location | 64,37 $ CAD/pi²/an |
| Utilisation de l’espace | Bureau |
| Aménagement | construction complète |
| Disponible | 2026-06-01 |
- Le taux comprend les services publics, les services de bâtiment et les dépenses immobilières.
- Entièrement construit comme Bureau standard
- Disposition du plan d’étage ouverte en général
- Convient pour 7 à 22 personnes
- Espace en excellent état
- Peut être associé à un ou plusieurs espaces supplémentaires pour obtenir jusqu’à 18 271 pi² d’espace adjacent.
2590 N 1st St - 2e étage - ste 220
| Taille | 4 577 pi² |
| Terme | Négociable |
| Taux de location | 64,37 $ CAD/pi²/an |
| Utilisation de l’espace | Bureau |
| Aménagement | construction complète |
| Disponible | 2026-06-01 |
- Le taux comprend les services publics, les services de bâtiment et les dépenses immobilières.
- Entièrement construit comme Bureau standard
- Disposition du plan d’étage ouverte en général
- Convient pour 12 à 37 personnes
- Espace en excellent état
- Peut être associé à un ou plusieurs espaces supplémentaires pour obtenir jusqu’à 18 271 pi² d’espace adjacent.
2590 N 1st St - 2e étage - ste 230
| Taille | 4 406 pi² |
| Terme | Négociable |
| Taux de location | 64,37 $ CAD/pi²/an |
| Utilisation de l’espace | Bureau |
| Aménagement | construction complète |
| Disponible | 2026-06-01 |
- Le taux comprend les services publics, les services de bâtiment et les dépenses immobilières.
- Entièrement construit comme Bureau standard
- Disposition du plan d’étage ouverte en général
- Convient pour 12 à 36 personnes
- Espace en excellent état
- Peut être associé à un ou plusieurs espaces supplémentaires pour obtenir jusqu’à 18 271 pi² d’espace adjacent.
2580 N 1st St - 2e étage - ste 230
| Taille | 1 190 pi² |
| Terme | Négociable |
| Taux de location | 64,37 $ CAD/pi²/an |
| Utilisation de l’espace | Bureau |
| Aménagement | construction complète |
| Disponible | Maintenant |
2 private offices, 1 IT closet (with supplement 24/7 HVAC, Open workspace area
- Le taux comprend les services publics, les services de bâtiment et les dépenses immobilières.
- Entièrement construit comme Bureau standard
- Disposition du plan d’étage ouverte en général
- Convient pour 3 à 10 personnes
- 2 bureaux privés
- Espace en excellent état
2580 N 1st St - 4e étage - ste 480
| Taille | 4 485 pi² |
| Terme | Négociable |
| Taux de location | 64,37 $ CAD/pi²/an |
| Utilisation de l’espace | Bureau |
| Aménagement | - |
| Disponible | Maintenant |
• Private Offices • 2 Conference Rooms • Reception Area • Break Room • Server Room • Storage Room • Open Workspace • Ask Rate of $4.00/SF includes $0.25/SF for Flex Furniture
- Le taux comprend les services publics, les services de bâtiment et les dépenses immobilières.
- Convient pour 12 à 36 personnes
2540 N 1st St - 4e étage - ste 400
| Taille | 22 282 pi² |
| Terme | Négociable |
| Taux de location | 64,37 $ CAD/pi²/an |
| Utilisation de l’espace | Bureau |
| Aménagement | construction complète |
| Disponible | Maintenant |
22,282 square foot office space with a mostly open floor plan and a mix of private offices and conference rooms.
- Le taux comprend les services publics, les services de bâtiment et les dépenses immobilières.
- Entièrement construit comme Bureau standard
- Disposition du plan d’étage ouverte en général
- Convient pour 56 à 179 personnes
- 24 bureaux privés
- Plafonds finis: 12’
- Espace en excellent état
- Salle de bains privée
- Conference Room
2550 N 1st St - 5e étage - ste 525
| Taille | 3 608 pi² |
| Terme | Négociable |
| Taux de location | 64,37 $ CAD/pi²/an |
| Utilisation de l’espace | Bureau |
| Aménagement | - |
| Disponible | Maintenant |
Double entry doors 1 reception / lobby 1 conference room 1 IT closet 4 private offices 1 break room Open workspace
- Le taux comprend les services publics, les services de bâtiment et les dépenses immobilières.
- Convient pour 10 à 29 personnes
Sélectionner des locataires à cette propriété
- Étage
- Nom du locataire
- Secteur
- Multiple
- AON Corporation
- Services professionnels, scientifiques et techniques
- 1ᵉʳ
- Barrett Business Service Inc
- Services professionnels, scientifiques et techniques
- 3ᵉ
- CargoSmart.ai
- Services professionnels, scientifiques et techniques
- 1ᵉʳ
- Casto Travel Inc.
- Services professionnels, scientifiques et techniques
- 2ᵉ
- Hair Club
- Services professionnels, scientifiques et techniques
- 4ᵉ
- Hisense(Silicon Valley)
- Fabrication
- Multiple
- LG Display America, Inc.
- Services professionnels, scientifiques et techniques
- 3ᵉ
- Violin Memory
- Services professionnels, scientifiques et techniques
- 4ᵉ
- Yageo America
- Fabrication
Aperçu du parc
Silicon Valley Center is a six-building campus at the gateway of talent-rich North San Jose where a complete collection of engaging amenities, unparalleled transportation access, and exceptional value help companies scale their success. Engage your team with all the lifestyle-enhancing features top talent loves, from open-air workspace and the new on-site cafe Flower Flour to a lively game room and private fitness center. Maximize the impact of a Silicon Valley location with prominent signage that enhances your brand’s visibility along North First Street, with exposure to talent and clients along one of the area’s primary north-south thoroughfares. Irvine Company's industry-leading partnership and financial stability makes it easy to lease with confidence, knowing your workplace experience will get even better over the life of your lease. A central location alongside the world’s leading companies plus flexible lease terms and move-in ready workspaces make Silicon Valley Center an unmatched opportunity.
Durabilité
Durabilité
Certification LEED Établi par le U.S. Green Building Council (USGBC, Conseil américain du bâtiment durable), le programme de certification LEED (Leadership in Energy and Environmental Design) est axé sur la conception, la construction, l’exploitation et l’entretien de bâtiments, de maisons et de quartiers écologiques. Sa vocation est d’aider les propriétaires et les exploitants à adopter des pratiques écoresponsables et à utiliser les ressources de façon efficace. La certification LEED est un symbole mondialement reconnu de réussite et de leadership en matière de développement durable. Pour obtenir la certification LEED, un projet doit obtenir des points en respectant des conditions préalables et un barème de crédits qui tiennent compte des émissions de carbone, de l’énergie, de l’eau, des déchets, du transport, des matériaux, de la santé et de la qualité de l’environnement intérieur. Les projets passent par un processus de vérification et d’évaluation et reçoivent un pointage correspondant à un niveau de certification LEED: Platine (80 points et plus) Or (60 à 79 points) Silver (50-59 points) Certifié (40 à 49 points)
Présenté par
Entreprise non fournie
Silicon Valley Center | San Jose, CA 95131
Hmm, il semble y avoir eu une erreur lors de l’envoi de votre message. Veuillez réessayer.
Merci! Votre message a été envoyé.






















