Votre courriel a été envoyé.
26 Rue Maurice Flandin 4 036 pi² d'espace disponible • Bureau • 69003 Lyon



Certaines informations ont été traduites automatiquement.
Faits saillants
- Immeuble d’habitation avec accès sécurisé, interphone et alarme
- Secteur très bien desservi (gare, métro, tram, bus)
- Deux entrées indépendantes + vitrine sécurisée
Tous les espaces disponibles(3)
Afficher les taux de location en
- Espace
- Taille
- Terme
-
Taux de location
- Utilisation de l’espace
- Aménagement
- Disponible
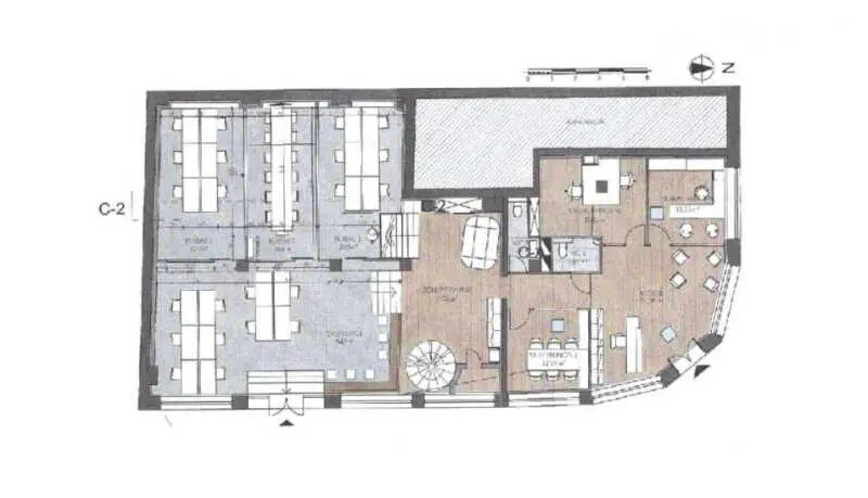
Cet espace de 375 m² se distingue par une configuration atypique mêlant rez-de-chaussée, mezzanine et sous-sol aménagé. Les bureaux, entièrement cloisonnés et aménagés, offrent une organisation optimale avec zones d’accueil, salles de réunion, open space et bureaux individuels. Les cloisons vitrées toute hauteur apportent transparence et luminosité, tandis que la vitrine en verre sécurit renforce la visibilité et l’image professionnelle. Les espaces bénéficient d’un confort technique complet : réseau informatique intégré dans les cloisons, rafraîchissement d’air réversible, éclairage par suspensions et revêtements variés (parquet, béton ciré, moquette). Le sous-sol abrite une salle de réunion supplémentaire, un espace de convivialité et une cuisine.
- Honoraires preneur: 15,00% du taux de location annuel
- Entièrement construit comme Bureau standard
- Espace en excellent état
-
Charges locatives: 1,25 $ CAD/pi²/an 0,10 $ CAD/pi²/mois 1 181 $ CAD/an 98,39 $ CAD/mois
- Disposition du plan d’étage ouverte en général
- Peut être associé à un ou plusieurs espaces supplémentaires pour obtenir jusqu’à 1 722 pi² d’espace adjacent.
Cet espace de 375 m² se distingue par une configuration atypique mêlant rez-de-chaussée, mezzanine et sous-sol aménagé. Les bureaux, entièrement cloisonnés et aménagés, offrent une organisation optimale avec zones d’accueil, salles de réunion, open space et bureaux individuels. Les cloisons vitrées toute hauteur apportent transparence et luminosité, tandis que la vitrine en verre sécurit renforce la visibilité et l’image professionnelle. Les espaces bénéficient d’un confort technique complet : réseau informatique intégré dans les cloisons, rafraîchissement d’air réversible, éclairage par suspensions et revêtements variés (parquet, béton ciré, moquette). Le sous-sol abrite une salle de réunion supplémentaire, un espace de convivialité et une cuisine.
- Honoraires preneur: 15,00% du taux de location annuel
- Dépôt de garantie: 3 mois de taux de location
- Disposition du plan d’étage ouverte en général
-
Charges locatives: 1,24 $ CAD/pi²/an 0,10 $ CAD/pi²/mois 2 883 $ CAD/an 240,22 $ CAD/mois
- Entièrement construit comme Bureau standard
- Espace en excellent état
Cet espace de 375 m² se distingue par une configuration atypique mêlant rez-de-chaussée, mezzanine et sous-sol aménagé. Les bureaux, entièrement cloisonnés et aménagés, offrent une organisation optimale avec zones d’accueil, salles de réunion, open space et bureaux individuels. Les cloisons vitrées toute hauteur apportent transparence et luminosité, tandis que la vitrine en verre sécurit renforce la visibilité et l’image professionnelle. Les espaces bénéficient d’un confort technique complet : réseau informatique intégré dans les cloisons, rafraîchissement d’air réversible, éclairage par suspensions et revêtements variés (parquet, béton ciré, moquette). Le sous-sol abrite une salle de réunion supplémentaire, un espace de convivialité et une cuisine.
- Honoraires preneur: 15,00% du taux de location annuel
- Entièrement construit comme Bureau standard
- Espace en excellent état
-
Charges locatives: 1,23 $ CAD/pi²/an 0,10 $ CAD/pi²/mois 956,12 $ CAD/an 79,68 $ CAD/mois
- Disposition du plan d’étage ouverte en général
- Peut être associé à un ou plusieurs espaces supplémentaires pour obtenir jusqu’à 1 722 pi² d’espace adjacent.
| Espace | Taille | Terme | Taux de location | Utilisation de l’espace | Aménagement | Disponible |
| Sous-sol | 947 pi² | 3/6/9 | 39,43 $ CAD/HT-HC/pi²/an 3,29 $ CAD/HT-HC/pi²/mois 37 348 $ CAD/HT-HC/an 3 112 $ CAD/HT-HC/mois | Bureau | construction complète | Maintenant |
| RDC | 2 325 pi² | 3/6/9 | 33,75 $ CAD/HT-HC/pi²/an 2,81 $ CAD/HT-HC/pi²/mois 78 477 $ CAD/HT-HC/an 6 540 $ CAD/HT-HC/mois | Bureau | construction complète | Maintenant |
| Mezzanine | 775 pi² | 3/6/9 | 39,43 $ CAD/HT-HC/pi²/an 3,29 $ CAD/HT-HC/pi²/mois 30 557 $ CAD/HT-HC/an 2 546 $ CAD/HT-HC/mois | Bureau | construction complète | Maintenant |
Sous-sol
| Taille |
| 947 pi² |
| Terme |
| 3/6/9 |
|
Taux de location
|
| 39,43 $ CAD/HT-HC/pi²/an 3,29 $ CAD/HT-HC/pi²/mois 37 348 $ CAD/HT-HC/an 3 112 $ CAD/HT-HC/mois |
| Utilisation de l’espace |
| Bureau |
| Aménagement |
| construction complète |
| Disponible |
| Maintenant |
RDC
| Taille |
| 2 325 pi² |
| Terme |
| 3/6/9 |
|
Taux de location
|
| 33,75 $ CAD/HT-HC/pi²/an 2,81 $ CAD/HT-HC/pi²/mois 78 477 $ CAD/HT-HC/an 6 540 $ CAD/HT-HC/mois |
| Utilisation de l’espace |
| Bureau |
| Aménagement |
| construction complète |
| Disponible |
| Maintenant |
Mezzanine
| Taille |
| 775 pi² |
| Terme |
| 3/6/9 |
|
Taux de location
|
| 39,43 $ CAD/HT-HC/pi²/an 3,29 $ CAD/HT-HC/pi²/mois 30 557 $ CAD/HT-HC/an 2 546 $ CAD/HT-HC/mois |
| Utilisation de l’espace |
| Bureau |
| Aménagement |
| construction complète |
| Disponible |
| Maintenant |
Sous-sol
| Taille | 947 pi² |
| Terme | 3/6/9 |
|
Taux de location
|
39,43 $ CAD/HT-HC/pi²/an |
| Utilisation de l’espace | Bureau |
| Aménagement | construction complète |
| Disponible | Maintenant |
Cet espace de 375 m² se distingue par une configuration atypique mêlant rez-de-chaussée, mezzanine et sous-sol aménagé. Les bureaux, entièrement cloisonnés et aménagés, offrent une organisation optimale avec zones d’accueil, salles de réunion, open space et bureaux individuels. Les cloisons vitrées toute hauteur apportent transparence et luminosité, tandis que la vitrine en verre sécurit renforce la visibilité et l’image professionnelle. Les espaces bénéficient d’un confort technique complet : réseau informatique intégré dans les cloisons, rafraîchissement d’air réversible, éclairage par suspensions et revêtements variés (parquet, béton ciré, moquette). Le sous-sol abrite une salle de réunion supplémentaire, un espace de convivialité et une cuisine.
- Honoraires preneur: 15,00% du taux de location annuel
-
Charges locatives: 1,25 $ CAD/pi²/an 0,10 $ CAD/pi²/mois 1 181 $ CAD/an 98,39 $ CAD/mois
- Entièrement construit comme Bureau standard
- Disposition du plan d’étage ouverte en général
- Espace en excellent état
- Peut être associé à un ou plusieurs espaces supplémentaires pour obtenir jusqu’à 1 722 pi² d’espace adjacent.
RDC
| Taille | 2 325 pi² |
| Terme | 3/6/9 |
|
Taux de location
|
33,75 $ CAD/HT-HC/pi²/an |
| Utilisation de l’espace | Bureau |
| Aménagement | construction complète |
| Disponible | Maintenant |
Cet espace de 375 m² se distingue par une configuration atypique mêlant rez-de-chaussée, mezzanine et sous-sol aménagé. Les bureaux, entièrement cloisonnés et aménagés, offrent une organisation optimale avec zones d’accueil, salles de réunion, open space et bureaux individuels. Les cloisons vitrées toute hauteur apportent transparence et luminosité, tandis que la vitrine en verre sécurit renforce la visibilité et l’image professionnelle. Les espaces bénéficient d’un confort technique complet : réseau informatique intégré dans les cloisons, rafraîchissement d’air réversible, éclairage par suspensions et revêtements variés (parquet, béton ciré, moquette). Le sous-sol abrite une salle de réunion supplémentaire, un espace de convivialité et une cuisine.
- Honoraires preneur: 15,00% du taux de location annuel
-
Charges locatives: 1,24 $ CAD/pi²/an 0,10 $ CAD/pi²/mois 2 883 $ CAD/an 240,22 $ CAD/mois
- Dépôt de garantie: 3 mois de taux de location
- Entièrement construit comme Bureau standard
- Disposition du plan d’étage ouverte en général
- Espace en excellent état
Mezzanine
| Taille | 775 pi² |
| Terme | 3/6/9 |
|
Taux de location
|
39,43 $ CAD/HT-HC/pi²/an |
| Utilisation de l’espace | Bureau |
| Aménagement | construction complète |
| Disponible | Maintenant |
Cet espace de 375 m² se distingue par une configuration atypique mêlant rez-de-chaussée, mezzanine et sous-sol aménagé. Les bureaux, entièrement cloisonnés et aménagés, offrent une organisation optimale avec zones d’accueil, salles de réunion, open space et bureaux individuels. Les cloisons vitrées toute hauteur apportent transparence et luminosité, tandis que la vitrine en verre sécurit renforce la visibilité et l’image professionnelle. Les espaces bénéficient d’un confort technique complet : réseau informatique intégré dans les cloisons, rafraîchissement d’air réversible, éclairage par suspensions et revêtements variés (parquet, béton ciré, moquette). Le sous-sol abrite une salle de réunion supplémentaire, un espace de convivialité et une cuisine.
- Honoraires preneur: 15,00% du taux de location annuel
-
Charges locatives: 1,23 $ CAD/pi²/an 0,10 $ CAD/pi²/mois 956,12 $ CAD/an 79,68 $ CAD/mois
- Entièrement construit comme Bureau standard
- Disposition du plan d’étage ouverte en général
- Espace en excellent état
- Peut être associé à un ou plusieurs espaces supplémentaires pour obtenir jusqu’à 1 722 pi² d’espace adjacent.
À propos de la propriété
EXCLUSIVITÉ - À proximité immédiate de la gare de la Part-Dieu, ces bureaux atypiques avec des prestations de qualité offrent une belle visibilité et disposent d'un ERP 5. - **Au rez-de-chaussée d'un immeuble d'habitation** - Accès sécurisé, contrôle d'accès et interphone - Alarme - Bureaux ERP 5 type W - 2 entrées indépendantes - Vitrine en verre sécurit - Bureaux aménagés et cloisonnés - Espace accueil, salle de réunion, open space et bureaux individuels - Sous-sol aménagé en salle de réunion, espace de convivialité et cuisine - Cloisons vitrées toute hauteur - Local technique avec baie de brassage (réseau informatique intégré dans les cloisons) - Sol en moquette sur la mezzanine, parquet au sous-sol et au rez-de-chaussée, et béton ciré - Éclairages par suspensions - Rafraîchissement d'air réversible - Sanitaires privatifs **Surface RDC : 287,35 m²** ### Situation/Transports : - **SNCF** : Accès direct à la gare de Lyon Part-Dieu - **Tram** : Lignes T3 et T4 - **Métro** : Ligne B Part-Dieu - **Bus** : Lignes 9 et 16
Faits sur la propriété
| Superficie totale disponible | 4 047 pi² | Sous-type de propriété | Appartement |
| Nombre d’unités | 30 | Taille du bâtiment | 4 036 pi² |
| Max. contigu | 1 722 pi² | Année de construction | 1955 |
| Type de propriété | Immeuble residentiel |
| Superficie totale disponible | 4 047 pi² |
| Nombre d’unités | 30 |
| Max. contigu | 1 722 pi² |
| Type de propriété | Immeuble residentiel |
| Sous-type de propriété | Appartement |
| Taille du bâtiment | 4 036 pi² |
| Année de construction | 1955 |
Présenté par
26 Rue Maurice Flandin
Hmm, il semble y avoir eu une erreur lors de l’envoi de votre message. Veuillez réessayer.
Merci! Votre message a été envoyé.



