Votre courriel a été envoyé.
Riverbank Landing 260 Riverbank Landing 1 015–3 123 pi² d'espace disponible • Commerce de détail • 4 étoiles • St. Albert, AB



Certaines informations ont été traduites automatiquement.
Faits saillants
- Cette propriété offre un mélange de tailles d'unités, offrant ainsi une flexibilité pour une variété d'entreprises.
- Il est prêt pour le succès - un emplacement idéal pour les entreprises cherchant à tirer parti de la demande croissante pour la commodité et la communauté.
- Située dans un quartier dynamique, cette propriété s'harmonise parfaitement avec les unités résidentielles adjacentes, offrant une opportunité de vivre, travailler et se divertir pour l'avenir.
Tous les espaces disponibles(3)
Afficher les taux de location en
- Espace
- Taille
- Terme
- Taux de location
- Utilisation de l’espace
- État
- Disponible
La disponibilité est estimée pour 2026 !
- Situé en ligne avec d’autres commerces de détail
- Peut être associé à un ou plusieurs espaces supplémentaires pour obtenir jusqu’à 2 108 pi² d’espace adjacent.
- Le loyer est négociable
- Espace en excellent état
- Stationnement souterrain et en surface
- Idéal pour les utilisateurs de commerce de détail !
La disponibilité est estimée pour 2026 !
- Situé en ligne avec d’autres commerces de détail
- Peut être associé à un ou plusieurs espaces supplémentaires pour obtenir jusqu’à 2 108 pi² d’espace adjacent.
- Le loyer est négociable
- Espace en excellent état
- Stationnement souterrain et en surface
- Idéal pour les utilisateurs de commerce de détail !
La disponibilité est estimée pour 2026 !
- Situé en ligne avec d’autres commerces de détail
- Stationnement souterrain et en surface
- Idéal pour les utilisateurs de commerce de détail !
- Espace en excellent état
- Le loyer est négociable
| Espace | Taille | Terme | Taux de location | Utilisation de l’espace | État | Disponible |
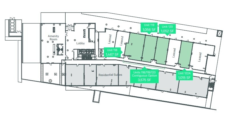
| 1er étage, ste 119 | 1 056 pi² | Négociable | Sur demande Sur demande Sur demande Sur demande | Commerce de détail | espace cloisonné | Maintenant |
| 1er étage, ste 120 | 1 052 pi² | Négociable | Sur demande Sur demande Sur demande Sur demande | Commerce de détail | espace cloisonné | Maintenant |
| 1er étage, ste 122A | 1 015 pi² | Négociable | Sur demande Sur demande Sur demande Sur demande | Commerce de détail | espace cloisonné | Maintenant |
1er étage, ste 119
| Taille |
| 1 056 pi² |
| Terme |
| Négociable |
| Taux de location |
| Sur demande Sur demande Sur demande Sur demande |
| Utilisation de l’espace |
| Commerce de détail |
| État |
| espace cloisonné |
| Disponible |
| Maintenant |
1er étage, ste 120
| Taille |
| 1 052 pi² |
| Terme |
| Négociable |
| Taux de location |
| Sur demande Sur demande Sur demande Sur demande |
| Utilisation de l’espace |
| Commerce de détail |
| État |
| espace cloisonné |
| Disponible |
| Maintenant |
1er étage, ste 122A
| Taille |
| 1 015 pi² |
| Terme |
| Négociable |
| Taux de location |
| Sur demande Sur demande Sur demande Sur demande |
| Utilisation de l’espace |
| Commerce de détail |
| État |
| espace cloisonné |
| Disponible |
| Maintenant |
1er étage, ste 119
| Taille | 1 056 pi² |
| Terme | Négociable |
| Taux de location | Sur demande |
| Utilisation de l’espace | Commerce de détail |
| État | espace cloisonné |
| Disponible | Maintenant |
La disponibilité est estimée pour 2026 !
- Situé en ligne avec d’autres commerces de détail
- Espace en excellent état
- Peut être associé à un ou plusieurs espaces supplémentaires pour obtenir jusqu’à 2 108 pi² d’espace adjacent.
- Stationnement souterrain et en surface
- Le loyer est négociable
- Idéal pour les utilisateurs de commerce de détail !
1er étage, ste 120
| Taille | 1 052 pi² |
| Terme | Négociable |
| Taux de location | Sur demande |
| Utilisation de l’espace | Commerce de détail |
| État | espace cloisonné |
| Disponible | Maintenant |
La disponibilité est estimée pour 2026 !
- Situé en ligne avec d’autres commerces de détail
- Espace en excellent état
- Peut être associé à un ou plusieurs espaces supplémentaires pour obtenir jusqu’à 2 108 pi² d’espace adjacent.
- Stationnement souterrain et en surface
- Le loyer est négociable
- Idéal pour les utilisateurs de commerce de détail !
1er étage, ste 122A
| Taille | 1 015 pi² |
| Terme | Négociable |
| Taux de location | Sur demande |
| Utilisation de l’espace | Commerce de détail |
| État | espace cloisonné |
| Disponible | Maintenant |
La disponibilité est estimée pour 2026 !
- Situé en ligne avec d’autres commerces de détail
- Espace en excellent état
- Stationnement souterrain et en surface
- Le loyer est négociable
- Idéal pour les utilisateurs de commerce de détail !
Faits sur la propriété
| Superficie totale disponible | 3 123 pi² | Style d’appartement | De hauteur moyenne |
| Nombre d’unités | 360 | Taille du bâtiment | 432 000 pi² |
| Max. contigu | 2 108 pi² | Année de construction | 2026 |
| Type de propriété | Immeuble residentiel | État de la construction | En construction |
| Sous-type de propriété | Appartement |
| Superficie totale disponible | 3 123 pi² |
| Nombre d’unités | 360 |
| Max. contigu | 2 108 pi² |
| Type de propriété | Immeuble residentiel |
| Sous-type de propriété | Appartement |
| Style d’appartement | De hauteur moyenne |
| Taille du bâtiment | 432 000 pi² |
| Année de construction | 2026 |
| État de la construction | En construction |
À propos de la propriété
CBRE est ravi de proposer une occasion unique de location commerciale dans un emplacement très recherché, bénéficiant de l'attraction du populaire Italian Bakery’s Mercato.
Principaux détaillants à proximité
Présenté par
Riverbank Landing | 260 Riverbank Landing
Hmm, il semble y avoir eu une erreur lors de l’envoi de votre message. Veuillez réessayer.
Merci! Votre message a été envoyé.



