Votre courriel a été envoyé.
Certaines informations ont été traduites automatiquement.
Faits saillants du parc
- Prime location minutes from FLL Airport and Port Everglades, and excellent highway access to I-95, I-595, and US-1
- Flexible configurations for office, retail, and warehouse ne
- Fully fenced, paved yard with bonus shade structure. Secure property with grade-level loading and ample parking.
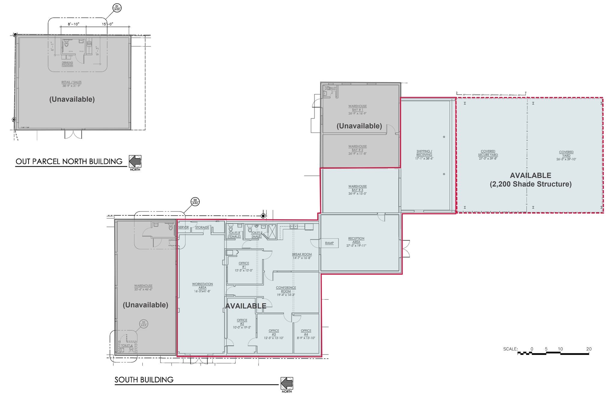
- South building: 3,800 SF office, 550 SF warehouse, +2,200 SF shade structure (bonus space)
- 6 drive-in loading doors, 14' clear ceilings, heavy 3-phase power.
Faits sur le parc
Caractéristiques et commodités
- Lot de coin
- Terrain clôturé
Tous les espaces disponibles(1)
Afficher les taux de location en
- Espace
- Taille
- Terme
- Taux de location
- Utilisation de l’espace
- État
- Disponible
4,350 SF of office/warehouse and yard space available for lease. South building: 3,800 SF office, 550 SF warehouse, +2,200 SF shade structure (bonus space), 6 drive-in loading doors, 14' clear ceiling height, Heavy 3-phase power, 12 surface parking spaces (1.33/1,000 SF ratio), Zoned for industrial use; ideal for light distribution or service operations.
- Le taux inscrit peut ne pas comprendre certains services publics, les services de bâtiment et les dépenses immobilières.
- 6 accès plain-pied
- Comprend 3 800 pi² d’espace de bureau dédié
| Espace | Taille | Terme | Taux de location | Utilisation de l’espace | État | Disponible |
| 1er étage | 4 350 pi² | Négociable | 34,40 $ CAD/pi²/an 2,87 $ CAD/pi²/mois 149 620 $ CAD/an 12 468 $ CAD/mois | Flex | - | Maintenant |
2600 SW 3rd Ave - 1er étage
2600 SW 3rd Ave - 1er étage
| Taille | 4 350 pi² |
| Terme | Négociable |
| Taux de location | 34,40 $ CAD/pi²/an |
| Utilisation de l’espace | Flex |
| État | - |
| Disponible | Maintenant |
4,350 SF of office/warehouse and yard space available for lease. South building: 3,800 SF office, 550 SF warehouse, +2,200 SF shade structure (bonus space), 6 drive-in loading doors, 14' clear ceiling height, Heavy 3-phase power, 12 surface parking spaces (1.33/1,000 SF ratio), Zoned for industrial use; ideal for light distribution or service operations.
- Le taux inscrit peut ne pas comprendre certains services publics, les services de bâtiment et les dépenses immobilières.
- Comprend 3 800 pi² d’espace de bureau dédié
- 6 accès plain-pied
Aperçu du parc
Lee & Associates presents a versatile flex building located at 2600 SW 3rd Avenue in Fort Lauderdale just minutes from Port Everglades and Hollywood International airport. The property offers 4,350 square feet of office and industrial space ideal for a range of businesses seeking to be in the heart of Fort Lauderdale. The south building includes 3,800 SF of office with 550 SF warehouse, and an additional 2,200 SF of bonus shade structure. Strategically located in the Croissant Park Blvd section of Fort Lauderdale, this property offers convenient access to major transportation corridors, including Interstate 95, Port Everglades, and Fort Lauderdale-Hollywood International Airport, all within minutes. With a Walk Score of 66 and public transit nearby, the location is ideal for distribution, service-oriented, or light manufacturing businesses seeking proximity to dense residential and commercial hubs within Southeast Broward County.
Présenté par
South Building | Fort Lauderdale, FL 33315
Hmm, il semble y avoir eu une erreur lors de l’envoi de votre message. Veuillez réessayer.
Merci! Votre message a été envoyé.






