Votre courriel a été envoyé.
Certaines informations ont été traduites automatiquement.
Faits saillants
- Rénové en 2018
- Vues de Denver Skyline et montagnes depuis les étages supérieurs.
- Accès facile à partir de l'autoroute I-25 et de l'I-70.
- Nouveau patio sur le toit avec vue panoramique.
Tous les espaces disponibles(5)
Afficher les taux de location en
- Espace
- Taille
- Terme
- Taux de location
- Utilisation de l’espace
- Aménagement
- Disponible
Lower level space consisting of 5 offices, conference room, and reception area. Contiguous with LL20 for a total of 4,286 RSF.
- Le taux de location ne comprend pas les services publics, les services de bâtiment ou les dépenses immobilières.
- Convient pour 6 à 19 personnes
- Espace en excellent état
- Disposition du plan d’étage ouverte en général
- 4 bureaux privés
- Peut être associé à un ou plusieurs espaces supplémentaires pour obtenir jusqu’à 4 286 pi² d’espace adjacent.
This lower level space is not a typical basement space. It has exposed brick, new kitchen, conference room and natural light. The lower level also has several quality building amenities (common conference room, break/game room, fitness center, showers).
- Le taux de location ne comprend pas les services publics, les services de bâtiment ou les dépenses immobilières.
- Disposition du plan d’étage ouverte en général
- 1 salle de conférence
- Peut être associé à un ou plusieurs espaces supplémentaires pour obtenir jusqu’à 4 286 pi² d’espace adjacent.
- Cuisine
- Douches
- Entièrement construit comme Bureau standard
- Convient pour 6 à 17 personnes
- Espace en excellent état
- Climatisation centrale
- Lumière naturelle
- Belle brique apparée.
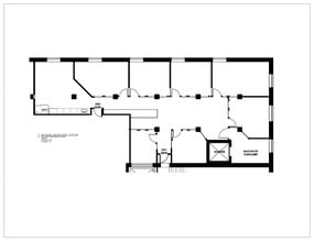
Ground floor space with easy access. Creative office with exposed brick and open ceilings. Reception area, conference room, 6 offices, breakroom, open area.
- Le taux de location ne comprend pas les services publics, les services de bâtiment ou les dépenses immobilières.
- Convient pour 15 à 25 personnes
- 1 salle de conférence
- Espace en excellent état
- Entièrement construit comme Bureau standard
- 7 bureaux privés
- 8 postes de travail
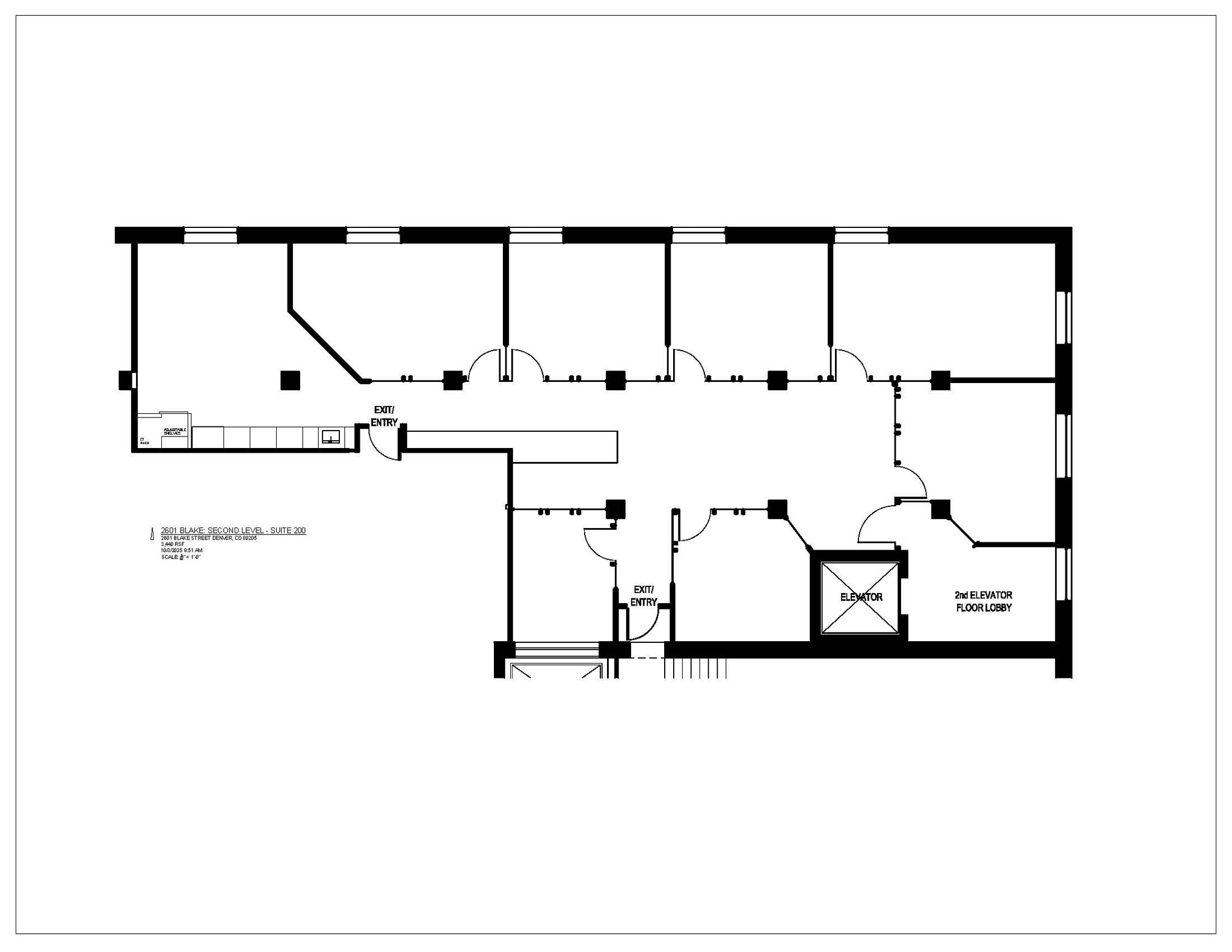
Highly upgraded space with exposed brick, and open ceiling. Reception area, conference room, 6 offices, open space, work area, and breakroom.
- Le taux de location ne comprend pas les services publics, les services de bâtiment ou les dépenses immobilières.
- Convient pour 9 à 15 personnes
- 1 salle de conférence
- Espace en excellent état
- Entièrement construit comme Bureau standard
- 5 bureaux privés
- 4 postes de travail
Beautiful brick and timber space with high ceilings. Consisting of reception area, conference room, 4 private offices, open space, break room, server room and work area.
- Le taux de location ne comprend pas les services publics, les services de bâtiment ou les dépenses immobilières.
- Disposition du plan d’étage ouverte en général
- 5 bureaux privés
- 14 postes de travail
- Accès aux ascenseurs
- Plafond exposé
- Entièrement construit comme Bureau standard
- Convient pour 19 à 30 personnes
- 1 salle de conférence
- Espace en excellent état
- Hauts plafonds
- Lumière naturelle
| Espace | Taille | Terme | Taux de location | Utilisation de l’espace | Aménagement | Disponible |
| Niveau inférieur, ste 10 | 2 271 pi² | 1-5 ans | 28,93 $ CAD/pi²/an 2,41 $ CAD/pi²/mois 65 694 $ CAD/an 5 475 $ CAD/mois | Bureau | - | Maintenant |
| Niveau inférieur, ste 20 | 2 015 pi² | 1-10 ans | 28,93 $ CAD/pi²/an 2,41 $ CAD/pi²/mois 58 289 $ CAD/an 4 857 $ CAD/mois | Bureau | construction complète | Maintenant |
| 1er étage, ste 110 | 3 632 pi² | 3-10 ans | 44,08 $ CAD/pi²/an 3,67 $ CAD/pi²/mois 160 099 $ CAD/an 13 342 $ CAD/mois | Bureau | construction complète | Maintenant |
| 2e étage, ste 200 | 3 440 pi² | 3-10 ans | 44,08 $ CAD/pi²/an 3,67 $ CAD/pi²/mois 151 635 $ CAD/an 12 636 $ CAD/mois | Bureau | construction complète | Maintenant |
| 4e étage, ste 400 | 6 296 pi² | 3-10 ans | 44,08 $ CAD/pi²/an 3,67 $ CAD/pi²/mois 277 528 $ CAD/an 23 127 $ CAD/mois | Bureau | construction complète | 2026-05-01 |
Niveau inférieur, ste 10
| Taille |
| 2 271 pi² |
| Terme |
| 1-5 ans |
| Taux de location |
| 28,93 $ CAD/pi²/an 2,41 $ CAD/pi²/mois 65 694 $ CAD/an 5 475 $ CAD/mois |
| Utilisation de l’espace |
| Bureau |
| Aménagement |
| - |
| Disponible |
| Maintenant |
Niveau inférieur, ste 20
| Taille |
| 2 015 pi² |
| Terme |
| 1-10 ans |
| Taux de location |
| 28,93 $ CAD/pi²/an 2,41 $ CAD/pi²/mois 58 289 $ CAD/an 4 857 $ CAD/mois |
| Utilisation de l’espace |
| Bureau |
| Aménagement |
| construction complète |
| Disponible |
| Maintenant |
1er étage, ste 110
| Taille |
| 3 632 pi² |
| Terme |
| 3-10 ans |
| Taux de location |
| 44,08 $ CAD/pi²/an 3,67 $ CAD/pi²/mois 160 099 $ CAD/an 13 342 $ CAD/mois |
| Utilisation de l’espace |
| Bureau |
| Aménagement |
| construction complète |
| Disponible |
| Maintenant |
2e étage, ste 200
| Taille |
| 3 440 pi² |
| Terme |
| 3-10 ans |
| Taux de location |
| 44,08 $ CAD/pi²/an 3,67 $ CAD/pi²/mois 151 635 $ CAD/an 12 636 $ CAD/mois |
| Utilisation de l’espace |
| Bureau |
| Aménagement |
| construction complète |
| Disponible |
| Maintenant |
4e étage, ste 400
| Taille |
| 6 296 pi² |
| Terme |
| 3-10 ans |
| Taux de location |
| 44,08 $ CAD/pi²/an 3,67 $ CAD/pi²/mois 277 528 $ CAD/an 23 127 $ CAD/mois |
| Utilisation de l’espace |
| Bureau |
| Aménagement |
| construction complète |
| Disponible |
| 2026-05-01 |
Niveau inférieur, ste 10
| Taille | 2 271 pi² |
| Terme | 1-5 ans |
| Taux de location | 28,93 $ CAD/pi²/an |
| Utilisation de l’espace | Bureau |
| Aménagement | - |
| Disponible | Maintenant |
Lower level space consisting of 5 offices, conference room, and reception area. Contiguous with LL20 for a total of 4,286 RSF.
- Le taux de location ne comprend pas les services publics, les services de bâtiment ou les dépenses immobilières.
- Disposition du plan d’étage ouverte en général
- Convient pour 6 à 19 personnes
- 4 bureaux privés
- Espace en excellent état
- Peut être associé à un ou plusieurs espaces supplémentaires pour obtenir jusqu’à 4 286 pi² d’espace adjacent.
Niveau inférieur, ste 20
| Taille | 2 015 pi² |
| Terme | 1-10 ans |
| Taux de location | 28,93 $ CAD/pi²/an |
| Utilisation de l’espace | Bureau |
| Aménagement | construction complète |
| Disponible | Maintenant |
This lower level space is not a typical basement space. It has exposed brick, new kitchen, conference room and natural light. The lower level also has several quality building amenities (common conference room, break/game room, fitness center, showers).
- Le taux de location ne comprend pas les services publics, les services de bâtiment ou les dépenses immobilières.
- Entièrement construit comme Bureau standard
- Disposition du plan d’étage ouverte en général
- Convient pour 6 à 17 personnes
- 1 salle de conférence
- Espace en excellent état
- Peut être associé à un ou plusieurs espaces supplémentaires pour obtenir jusqu’à 4 286 pi² d’espace adjacent.
- Climatisation centrale
- Cuisine
- Lumière naturelle
- Douches
- Belle brique apparée.
1er étage, ste 110
| Taille | 3 632 pi² |
| Terme | 3-10 ans |
| Taux de location | 44,08 $ CAD/pi²/an |
| Utilisation de l’espace | Bureau |
| Aménagement | construction complète |
| Disponible | Maintenant |
Ground floor space with easy access. Creative office with exposed brick and open ceilings. Reception area, conference room, 6 offices, breakroom, open area.
- Le taux de location ne comprend pas les services publics, les services de bâtiment ou les dépenses immobilières.
- Entièrement construit comme Bureau standard
- Convient pour 15 à 25 personnes
- 7 bureaux privés
- 1 salle de conférence
- 8 postes de travail
- Espace en excellent état
2e étage, ste 200
| Taille | 3 440 pi² |
| Terme | 3-10 ans |
| Taux de location | 44,08 $ CAD/pi²/an |
| Utilisation de l’espace | Bureau |
| Aménagement | construction complète |
| Disponible | Maintenant |
Highly upgraded space with exposed brick, and open ceiling. Reception area, conference room, 6 offices, open space, work area, and breakroom.
- Le taux de location ne comprend pas les services publics, les services de bâtiment ou les dépenses immobilières.
- Entièrement construit comme Bureau standard
- Convient pour 9 à 15 personnes
- 5 bureaux privés
- 1 salle de conférence
- 4 postes de travail
- Espace en excellent état
4e étage, ste 400
| Taille | 6 296 pi² |
| Terme | 3-10 ans |
| Taux de location | 44,08 $ CAD/pi²/an |
| Utilisation de l’espace | Bureau |
| Aménagement | construction complète |
| Disponible | 2026-05-01 |
Beautiful brick and timber space with high ceilings. Consisting of reception area, conference room, 4 private offices, open space, break room, server room and work area.
- Le taux de location ne comprend pas les services publics, les services de bâtiment ou les dépenses immobilières.
- Entièrement construit comme Bureau standard
- Disposition du plan d’étage ouverte en général
- Convient pour 19 à 30 personnes
- 5 bureaux privés
- 1 salle de conférence
- 14 postes de travail
- Espace en excellent état
- Accès aux ascenseurs
- Hauts plafonds
- Plafond exposé
- Lumière naturelle
Aperçu de la propriété
Édifice historique dans le quartier Ballpark. Design moderne avec des détails historiques, y compris des briques apparentes, des plafonds exposés et des conduits. Salle de pause, salle d'entraînement, douches et salle de conférence commune. Stationnement abondant ; sur place et rue. Situé au croisement des rues 26e et Blake. À quelques pâtés de maisons d'excellentes commodités, y compris Coors Field, restaurants, magasinage et vie nocturne. Excellentes vues sur Denver et les montagnes depuis les étages supérieurs. Stationnement en surface disponible pour 150 $/mois.
- Ligne d'autobus
- Installations de conférences
- Centre de conditionnement physique
- Gestionnaire d'immeuble sur place
- Affichage
Faits sur la propriété
Présenté par
2601-2609 Blake St
Hmm, il semble y avoir eu une erreur lors de l’envoi de votre message. Veuillez réessayer.
Merci! Votre message a été envoyé.














