Se Connecter/S’inscrire
Votre courriel a été envoyé.
26234 Minnesota 27 12 800 pi² Industriel Immeuble Pierz, MN 56364 À vendre



Certaines informations ont été traduites automatiquement.
Faits saillants de l'investissement
- Well located along Highway 27 and just off Highway 25
- 16' sidewalls with 22' center clear height
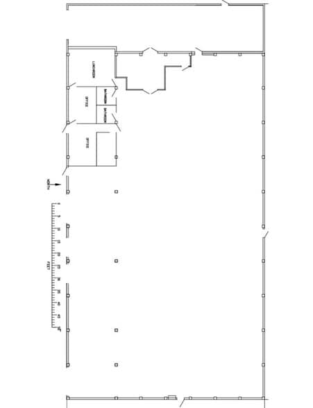
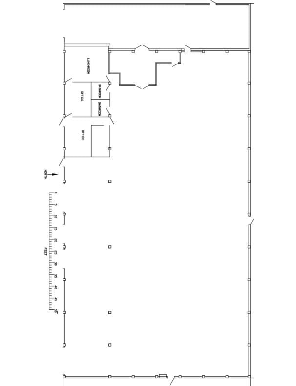
- Open functional layout including large reception, manager's office, and a break room
- Three over head doors and two dock doors
- Radiant heat in shop area
- Paved parking lot with ample capacity
Résumé de l'annonce
Inventure is pleased to present Pierz Industrial/Flex, this 12,800 square foot industrial facility is located at 26234 MN-27 in Pierz, MN. Positioned in Central Minnesota, Pierz offers convenient regional access to larger markets including St. Cloud and Brainerd, making it an ideal location for businesses seeking connectivity while benefiting from a cost-effective operating environment. The building is well-suited for a variety of industrial users, featuring 16' sidewalls and 22' center clear height, allowing for efficient manufacturing, warehousing, or service operations. The property is powered by 3-phase, 4-wire, 600-volt service with 2,000 amps, filling a wide range of operational needs. Loading and workflow include three overhead doors, one measuring 11’5” x 12’ and two at 10’ x 12’, as well as two dock doors measuring 8’ x 8’. The shop area is equipped with radiant heat, providing consistent and efficient climate control. The office and support areas include a large reception area, manager’s office, and break room, all complemented by a wide-open floor plan that allows for flexible configuration based on user needs. Property also features paved parking lot offers ample parking for employees and visitors. With its strong infrastructure, functional layout, and strategic location within Central Minnesota, 26234 MN-27 offers an excellent opportunity for businesses looking to expand or establish operations in a wellconnected and business-friendly community.
Faits sur la propriété
| Type de vente | Propriétaire utilisateur | Taille du lot | 1,32 AC |
| Type de propriété | Industriel | Aire du bâtiment louable | 12 800 pi² |
| Sous-type de propriété | Service | Nombre d’étages | 1 |
| Classe d’immeuble | C | Année de construction | 1982 |
| Type de vente | Propriétaire utilisateur |
| Type de propriété | Industriel |
| Sous-type de propriété | Service |
| Classe d’immeuble | C |
| Taille du lot | 1,32 AC |
| Aire du bâtiment louable | 12 800 pi² |
| Nombre d’étages | 1 |
| Année de construction | 1982 |
1 1
Plutôt practicable à pied
20/100
Exceptionnellement facile d'accès en voiture
100/100
Impraticable en vélo
10/100
Impôts fonciers
| Numéro de lot | 42.0085.003 | Évaluation des bâtiments | 354 285 $ CAD |
| Évaluation du terrain | 57 289 $ CAD | Évaluation totale | 411 573 $ CAD |
Impôts fonciers
Numéro de lot
42.0085.003
Évaluation du terrain
57 289 $ CAD
Évaluation des bâtiments
354 285 $ CAD
Évaluation totale
411 573 $ CAD
1 de 9
Vidéos
Visite extérieure 3D Matterport
Visite 3D Matterport
Photos
Vue depuis la rue
Rue
Carte
1 de 1
Présenté par
26234 Minnesota 27
Vous êtes déjà membre? Connectez-vous
Hmm, il semble y avoir eu une erreur lors de l’envoi de votre message. Veuillez réessayer.
Merci! Votre message a été envoyé.
