Se Connecter/S’inscrire
Votre courriel a été envoyé.
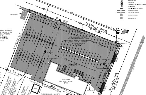
2625 Gallatin Pike Terrain à louer de 0,08–0,13 acres • Terrain commercial • Nashville, TN 37216

Certaines informations ont été traduites automatiquement.
Faits saillants
- New Stop Light Directly on this Corner!
LOT Disponible
Afficher les taux de location en
| Taux de location |
|
Taille du lot | 0,08 à 0,13 AC |
| Durée du bail | 10 - 30 ans |
| Taux de location | |
| Durée du bail | 10 - 30 ans |
| Taille du lot | 0,08 à 0,13 AC |
Ground lease available for tenant willing to build new construction. Triple net lease for build to suit. 3500 to 4500 square foot restaurant building fully allowed, with additional permitting could build up to 5,500 square feet.
Aperçu de la propriété
Site pour restaurant disponible, construction sur mesure possible. Emplacement de choix à un coin stratégique avec feu de circulation sur Gallatin Pike. Bail foncier disponible pour les locataires souhaitant construire un nouveau bâtiment. Bâtiment de restaurant de 3 500 à 4 500 pieds carrés entièrement autorisé; avec des permis supplémentaires, il serait possible de construire jusqu'à 5 500 pieds carrés.
Faits sur la propriété
| Superficie totale disponible | 0,13 AC | Sous-type de propriété | Terrain commercial |
| Min. divisible | 0,08 AC | Utilisation proposée | Restaurant |
| Type de propriété | Terrain |
| Superficie totale disponible | 0,13 AC |
| Min. divisible | 0,08 AC |
| Type de propriété | Terrain |
| Sous-type de propriété | Terrain commercial |
| Utilisation proposée | Restaurant |
1 1
Walk Score®
Très pratique à pied (83)
1 de 2
Vidéos
Visite extérieure 3D Matterport
Visite 3D Matterport
Photos
Vue depuis la rue
Rue
Carte
1 de 1
Présenté par
Rodney Dowless
2625 Gallatin Pike
Vous êtes déjà membre? Connectez-vous
Hmm, il semble y avoir eu une erreur lors de l’envoi de votre message. Veuillez réessayer.
Merci! Votre message a été envoyé.
