Votre courriel a été envoyé.
Certaines informations ont été traduites automatiquement.
Faits saillants
- The property offers building signage opportunities for strong visibility.
- Located along a major Phoenix corridor with extensive area amenities.
- Recent renovations enhance the property’s overall appearance and quality
- On-site ownership provides consistent support for tenant needs.
- Campus layout promotes accessible circulation and professional appeal.
Tous les espaces disponibles(1)
Afficher les taux de location en
- Espace
- Taille
- Terme
- Taux de location
- Utilisation de l’espace
- Aménagement
- Disponible
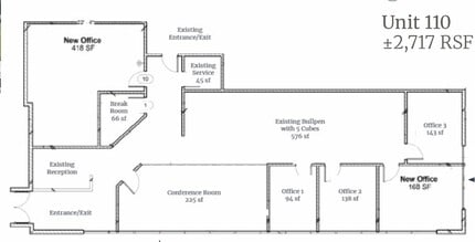
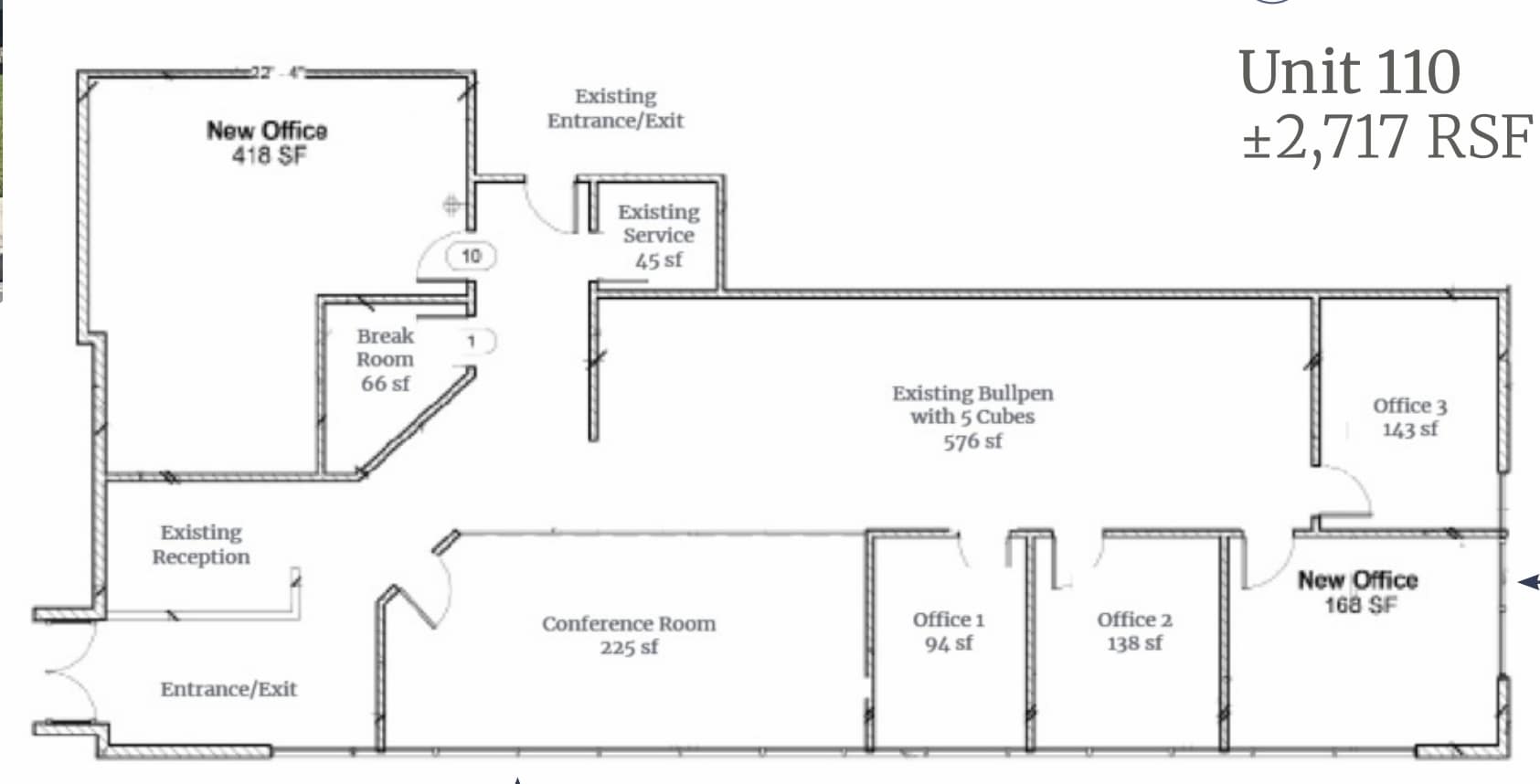
Suite 110 offers a move-in-ready professional office environment with new carpet tiles, fresh paint, updated lighting, and new blinds. The layout includes a reception area, conference room, break room, five private offices, five cubicles, and a server or storage room. The suite provides building and window signage opportunities, enhancing identity and visibility along the property’s exterior. As an exterior-loaded, ground-floor suite, it allows convenient access and 24/7 entry. Three covered reserved parking spaces are included with the unit. The suite is available beginning February 5, 2026.
- Le taux comprend les services publics, les services de bâtiment et les dépenses immobilières.
- Convient pour 7 à 22 personnes
- 1 salle de conférence
- Espace en excellent état
- Move-in ready modern finishes
- Multiple signage opportunities available
- Entièrement construit comme Bureau standard
- 5 bureaux privés
- 5 postes de travail
- Aire de réception
- Ground-floor exterior suite access
| Espace | Taille | Terme | Taux de location | Utilisation de l’espace | Aménagement | Disponible |
| 1er étage, ste 110 | 2 717 pi² | Négociable | 36,31 $ CAD/pi²/an 3,03 $ CAD/pi²/mois 98 641 $ CAD/an 8 220 $ CAD/mois | Bureau | construction complète | Maintenant |
1er étage, ste 110
| Taille |
| 2 717 pi² |
| Terme |
| Négociable |
| Taux de location |
| 36,31 $ CAD/pi²/an 3,03 $ CAD/pi²/mois 98 641 $ CAD/an 8 220 $ CAD/mois |
| Utilisation de l’espace |
| Bureau |
| Aménagement |
| construction complète |
| Disponible |
| Maintenant |
1er étage, ste 110
| Taille | 2 717 pi² |
| Terme | Négociable |
| Taux de location | 36,31 $ CAD/pi²/an |
| Utilisation de l’espace | Bureau |
| Aménagement | construction complète |
| Disponible | Maintenant |
Suite 110 offers a move-in-ready professional office environment with new carpet tiles, fresh paint, updated lighting, and new blinds. The layout includes a reception area, conference room, break room, five private offices, five cubicles, and a server or storage room. The suite provides building and window signage opportunities, enhancing identity and visibility along the property’s exterior. As an exterior-loaded, ground-floor suite, it allows convenient access and 24/7 entry. Three covered reserved parking spaces are included with the unit. The suite is available beginning February 5, 2026.
- Le taux comprend les services publics, les services de bâtiment et les dépenses immobilières.
- Entièrement construit comme Bureau standard
- Convient pour 7 à 22 personnes
- 5 bureaux privés
- 1 salle de conférence
- 5 postes de travail
- Espace en excellent état
- Aire de réception
- Move-in ready modern finishes
- Ground-floor exterior suite access
- Multiple signage opportunities available
Aperçu de la propriété
Vintage Pointe is a professionally managed four-story office development offering a well-maintained and accessible business environment in a central Phoenix location. Built in 1985, the property features mature landscaping, structured access, and a layout designed for efficient circulation throughout the campus. Tenants benefit from on-site ownership, ensuring responsive management and operational consistency. The project includes building signage opportunities that enhance brand visibility along Indian School Road, one of Phoenix’s most traveled east-west thoroughfares. Ample parking supports daily operations, and the property’s interior common areas complement a professional office setting suited for a variety of business users. Situated in the vibrant Camelback East submarket, the development enjoys proximity to major retail destinations, business services, and residential neighborhoods, making it a strategic location for companies seeking accessibility and convenience. With ongoing improvements and a stable operating environment, Vintage Pointe presents a strong foundation for long-term tenancy.
- Atrium
- Ligne d'autobus
- Accès contrôlé
- Cour
- Terrain clôturé
- Gestionnaire d'immeuble sur place
- Affichage
- Cuisine
- Éclairage accentué
- Hauts plafonds
- Exposition directe à l'ascenseur
- Lumière naturelle
- Réception
- Éclairage encastré
- Sièges extérieurs
- Climatisation
- Balcon
Faits sur la propriété
Sélectionner des locataires
- Étage
- Nom du locataire
- Secteur
- 3ᵉ
- 1 Stop Motor Vehicle Services
- Finance et assurances
- 4ᵉ
- Ann Michele Couch CPA PC
- Services professionnels, scientifiques et techniques
- 4ᵉ
- Breckenridge LLC
- -
- 1ᵉʳ
- Choppers Salon
- Services
- 2ᵉ
- Duran Business Group
- Services professionnels, scientifiques et techniques
- 4ᵉ
- E & S Office LLC
- -
- 1ᵉʳ
- Farrmont Realty Group
- Immobilier
- 3ᵉ
- Jiang Law Firm
- Services professionnels, scientifiques et techniques
- 4ᵉ
- LifeBrokers, Inc.
- Finance et assurances
- 2ᵉ
- Yonker Construction
- Immobilier
Présenté par
Vintage Pointe | 2633 E Indian School Rd
Hmm, il semble y avoir eu une erreur lors de l’envoi de votre message. Veuillez réessayer.
Merci! Votre message a été envoyé.






