Votre courriel a été envoyé.
Bernards Centre Point Santa Clarita, CA 91350 2 680–5 674 pi² d'espace disponible • Flex



Certaines informations ont été traduites automatiquement.
Faits saillants du parc
- Près de CA SR-14 Fwy
- Géré et entretenu professionnellement
- Beaucoup de places de stationnement en surface
- Espaces bien équilibrés
- Système de surveillance 24/7
- Accès et chargement faciles
Faits sur le parc
Caractéristiques et commodités
- Accès 24 heures
- Mezzanine
- Système de sécurité
- CVCA contrôlé par le locataire
- Espace d'entreposage
- Climatisation
Tous les espaces disponibles(2)
Afficher les taux de location en
- Espace
- Taille
- Terme
- Taux de location
- Utilisation de l’espace
- Aménagement
- Disponible
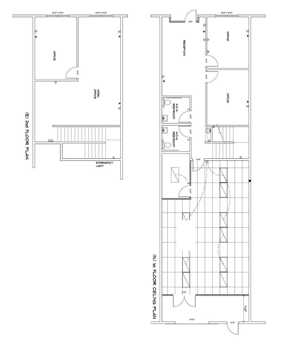
High-Image Industrial Flex space. Fully improved warehouse space w/ HVAC and drop ceiling. (1) 12'x14' ground level loading door. Highly functional layout. 1st Floor: Reception Area, 2 Private Offices, 2 Private Restrooms, Kitchenette, Improved warehouse space with drop ceiling and HVAC, and Storage space. 2nd Floor: 1 Private Office + Open Bullpen Area. Call agent for details and tour information.
- Le taux inscrit peut ne pas comprendre certains services publics, les services de bâtiment et les dépenses immobilières.
- 1 accès plain-pied
- Aire de réception
- Highly Functional Layout
- Excellent Ingress and Egress
- Fully Air Conditioned Space
- Espace en excellent état
- Climatisation centrale
- Salle de bains privée
- (1) 12'x14' Ground Level Loading Door
- Close Proximity to a Wide Variety of Amentities
- Improved Warehouse space with drop ceiling
High-Image Industrial Flex space. Approximately 50% office. (1) 12'x14' ground level loading door. Newly renovated end unit with functional layout: 5 private offices, 2 private restrooms, Reception Area, Open Bullpen, Kitchenette, and Warehouse. Call agent for details and tour information.
- Le taux inscrit peut ne pas comprendre certains services publics, les services de bâtiment et les dépenses immobilières.
- 1 accès plain-pied
- Aire de réception
- End Unit with Ample Natural Light
- (1) 12'x14' Ground Level Loading Door
- Close Proximity to a Wide Variety of Amentities
- Espace en excellent état
- Climatisation centrale
- Salle de bains privée
- Highly Functional Layout
- Excellent Ingress and Egress
- Close Proximity to 14 FWY
| Espace | Taille | Terme | Taux de location | Utilisation de l’espace | Aménagement | Disponible |
| 1er étage - 26362 | 2 680 pi² | Négociable | 28,88 $ CAD/pi²/an 2,41 $ CAD/pi²/mois 77 408 $ CAD/an 6 451 $ CAD/mois | Flex | construction complète | 2026-07-01 |
| 1er étage - 26382 | 2 994 pi² | Négociable | 25,58 $ CAD/pi²/an 2,13 $ CAD/pi²/mois 76 594 $ CAD/an 6 383 $ CAD/mois | Flex | construction complète | Maintenant |
26360-26382 Ruether Ave - 1er étage - 26362
26360-26382 Ruether Ave - 1er étage - 26382
26360-26382 Ruether Ave - 1er étage - 26362
| Taille | 2 680 pi² |
| Terme | Négociable |
| Taux de location | 28,88 $ CAD/pi²/an |
| Utilisation de l’espace | Flex |
| Aménagement | construction complète |
| Disponible | 2026-07-01 |
High-Image Industrial Flex space. Fully improved warehouse space w/ HVAC and drop ceiling. (1) 12'x14' ground level loading door. Highly functional layout. 1st Floor: Reception Area, 2 Private Offices, 2 Private Restrooms, Kitchenette, Improved warehouse space with drop ceiling and HVAC, and Storage space. 2nd Floor: 1 Private Office + Open Bullpen Area. Call agent for details and tour information.
- Le taux inscrit peut ne pas comprendre certains services publics, les services de bâtiment et les dépenses immobilières.
- Espace en excellent état
- 1 accès plain-pied
- Climatisation centrale
- Aire de réception
- Salle de bains privée
- Highly Functional Layout
- (1) 12'x14' Ground Level Loading Door
- Excellent Ingress and Egress
- Close Proximity to a Wide Variety of Amentities
- Fully Air Conditioned Space
- Improved Warehouse space with drop ceiling
26360-26382 Ruether Ave - 1er étage - 26382
| Taille | 2 994 pi² |
| Terme | Négociable |
| Taux de location | 25,58 $ CAD/pi²/an |
| Utilisation de l’espace | Flex |
| Aménagement | construction complète |
| Disponible | Maintenant |
High-Image Industrial Flex space. Approximately 50% office. (1) 12'x14' ground level loading door. Newly renovated end unit with functional layout: 5 private offices, 2 private restrooms, Reception Area, Open Bullpen, Kitchenette, and Warehouse. Call agent for details and tour information.
- Le taux inscrit peut ne pas comprendre certains services publics, les services de bâtiment et les dépenses immobilières.
- Espace en excellent état
- 1 accès plain-pied
- Climatisation centrale
- Aire de réception
- Salle de bains privée
- End Unit with Ample Natural Light
- Highly Functional Layout
- (1) 12'x14' Ground Level Loading Door
- Excellent Ingress and Egress
- Close Proximity to a Wide Variety of Amentities
- Close Proximity to 14 FWY
Aperçu du parc
RE/MAX - Crissman Commercial a le plaisir de vous présenter le parc d'affaires Bernards Centre Pointe. Situé à quelques minutes du 14 FWY et entouré d'une grande variété de commodités. Accès facile et stationnement abondant. Emménager des unités prêtes avec des configurations de bureau et d'entrepôt hautement fonctionnelles.
Présenté par
Bernards Centre Point | Santa Clarita, CA 91350
Hmm, il semble y avoir eu une erreur lors de l’envoi de votre message. Veuillez réessayer.
Merci! Votre message a été envoyé.





