Se Connecter/S’inscrire
Votre courriel a été envoyé.
Certaines informations ont été traduites automatiquement.
Faits saillants de l'investissement
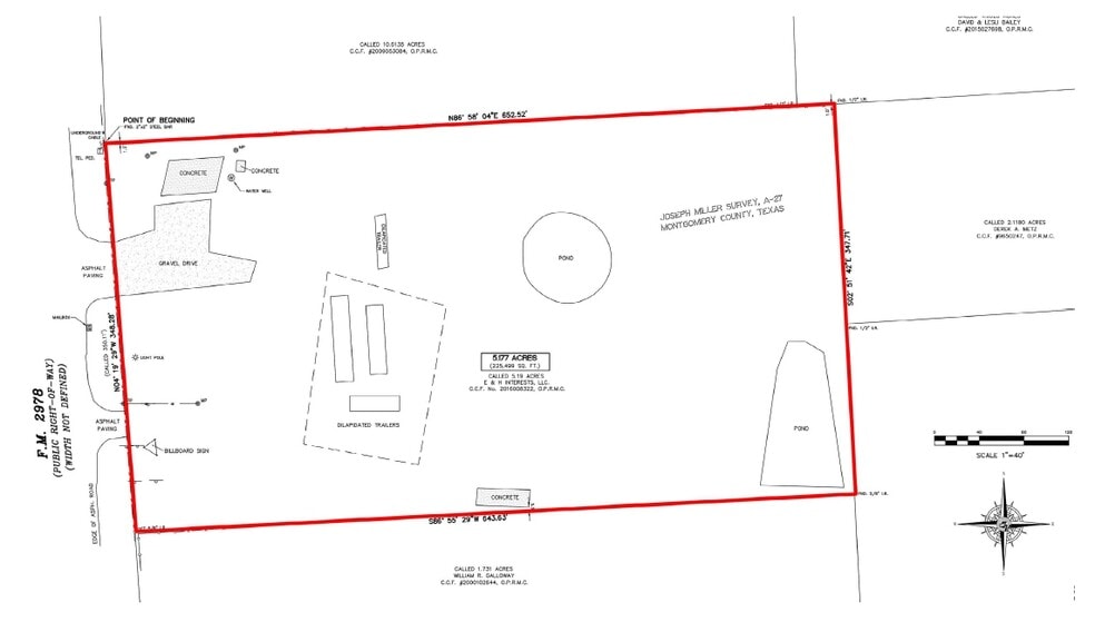
- 5.2226 Acres - Commercial land For Sale
- 344.7 feet of frontage on FM 2978 with 2 curb cuts
- Plans and permits in place to construct a ±38,908 s.f. warehouse with detention
- 5 minutes to Village of Sterling Ridge, & Village of Creekside Park Communities
- 10 minutes to Hwy 249 and 15 minutes to Grand Parkway (99)
Faits sur la propriété
| Type de vente | Investissement | Sous-type de propriété | Terrain commercial |
| Nombre de lots | 1 | Utilisation proposée | |
| Type de propriété | Terrain | Taille totale du lot | 5,17 AC |
| Zonage | 2 | ||
| Type de vente | Investissement |
| Nombre de lots | 1 |
| Type de propriété | Terrain |
| Sous-type de propriété | Terrain commercial |
| Utilisation proposée | |
| Taille totale du lot | 5,17 AC |
| Zonage | 2 |
1 Lot disponible
Lot
| Taille du lot | 5,17 AC |
| Taille du lot | 5,17 AC |
• Land area (AC): 5.2226 • Land area (s.f.): 227,496 s.f. • Land use category: Commercial • Utilities available: Plans in place for well/septic • 344.7 feet of frontage on FM 2978 • Two curb cuts for easy ingress/egress
Description
• Land area (AC): 5.2226 • Land area (s.f.): 227,496 s.f. • Land use category: Commercial • Utilities available: Plans in place for well/septic • 344.7 feet of frontage on FM 2978 • Two curb cuts for easy ingress/egress • Property is cleared & ready for development
1 1
Plutôt praticable à pied
20/100
Exceptionnellement facile d’accès en voiture
100/100
Plutôt praticable en vélo
50/100
Impôts fonciers
| Numéro de lot | 0027-01-07104 | Évaluation des bâtiments | 0 $ CAD |
| Évaluation du terrain | 714 435 $ CAD | Évaluation totale | 714 435 $ CAD |
Impôts fonciers
Numéro de lot
0027-01-07104
Évaluation du terrain
714 435 $ CAD
Évaluation des bâtiments
0 $ CAD
Évaluation totale
714 435 $ CAD
1 de 16
Vidéos
Visite extérieure 3D Matterport
Visite 3D Matterport
Photos
Vue depuis la rue
Rue
Carte
1 de 1
Présenté par
26444 FM 2978
Vous êtes déjà membre? Connectez-vous
Hmm, il semble y avoir eu une erreur lors de l’envoi de votre message. Veuillez réessayer.
Merci! Votre message a été envoyé.



