Se Connecter/S’inscrire
Votre courriel a été envoyé.
2660 Shaughnessy St - DeWolf Lodge and Banquet Hall Immeuble de 5 523 pi² • Spécialité • À vendre • Port Coquitlam, BC V3C 3G8


Certaines informations ont été traduites automatiquement.
Faits saillants de l'investissement
- Cœur urbain de Port Coquitlam
- Façades de rue proéminentes
- Accès au transport en commun
- Excellent équipements locaux
Résumé de l'annonce
2660 rue Shaughnessy offre une occasion rare d'acquérir une propriété bien connue et idéalement située au cœur de Port Coquitlam. Située le long d'un corridor clé avec une excellente visibilité et accessibilité, le site présente un fort potentiel pour un réaménagement, une utilisation institutionnelle ou une réutilisation adaptative, sous réserve des approbations municipales.
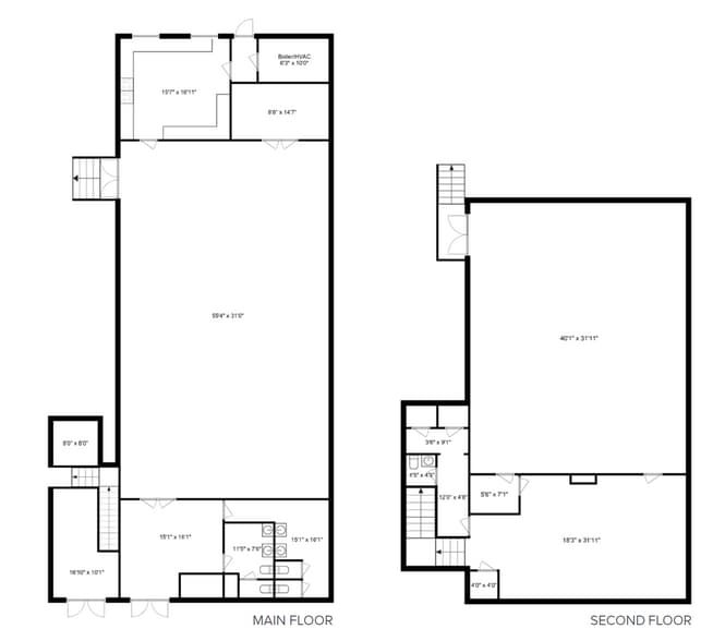
Cette propriété établie a longtemps servi de lieu de rassemblement communautaire et convient parfaitement aux acheteurs recherchant un actif stratégiquement situé dans un marché urbain en croissance. La propriété comprend une grande salle de banquet, une cuisine commerciale, des espaces ouverts et plusieurs bureaux.
Cette propriété établie a longtemps servi de lieu de rassemblement communautaire et convient parfaitement aux acheteurs recherchant un actif stratégiquement situé dans un marché urbain en croissance. La propriété comprend une grande salle de banquet, une cuisine commerciale, des espaces ouverts et plusieurs bureaux.
Faits sur la propriété
| Type de vente | Investissement | Taille du lot | 0,20 AC |
| Type de propriété | Spécialité | Taille du bâtiment | 5 523 pi² |
| Sous-type de propriété | Hall/Salle de réunion | Nombre d’étages | 2 |
| Classe d’immeuble | C | Année de construction | 1925 |
| Zonage | CC - Commercial communautaire | ||
| Type de vente | Investissement |
| Type de propriété | Spécialité |
| Sous-type de propriété | Hall/Salle de réunion |
| Classe d’immeuble | C |
| Taille du lot | 0,20 AC |
| Taille du bâtiment | 5 523 pi² |
| Nombre d’étages | 2 |
| Année de construction | 1925 |
| Zonage | CC - Commercial communautaire |
1 1
Moyennement practicable à pied
70/100
Très facile d'accès en voiture
80/100
Bons transports en commun
70/100
Exceptionnellement practicable à vélo
90/100
1 de 3
Vidéos
Visite extérieure 3D Matterport
Visite 3D Matterport
Photos
Vue depuis la rue
Rue
Carte
1 de 1
Présenté par
2660 Shaughnessy St - DeWolf Lodge and Banquet Hall
Vous êtes déjà membre? Connectez-vous
Hmm, il semble y avoir eu une erreur lors de l’envoi de votre message. Veuillez réessayer.
Merci! Votre message a été envoyé.
