Se Connecter/S’inscrire
Votre courriel a été envoyé.
2675 Washtenaw Ave Lot • Terrain commercial • 1,54 Acres • 1 914 752 $ CAD • Ypsilanti, MI 48197



Certaines informations ont été traduites automatiquement.
Faits saillants de l'investissement
- 107' frontage on Washtenaw Avenue
- Between Golfside and Hewitt
- Easy access to I-94 and US-23
- Over 20,000 vehicles per day
Résumé de l'annonce
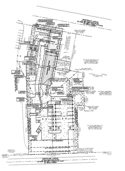
Prime redevelopment opportunity in Ypsilanti Township along the high-visibility Washtenaw Avenue corridor. This 1.54-acre site sits within the RC (Regional Corridor) zoning district, offering broad commercial flexibility and strong support for auto-oriented, retail, and service uses. The property benefits from an approved site plan for a modern car wash, giving a buyer a major head start on development timelines and municipal approvals. Positioned between Golfside Road and Hewitt Road, the site enjoys excellent traffic volumes, strong surrounding retail synergy, and direct connectivity to the region’s major arterials. I-94 and US-23 are just minutes away, providing efficient access for customers and commuters across Washtenaw County and the broader southeast Michigan region. With its combination of zoning, frontage, access, and ready-to-execute approvals, this location is well suited for a car wash, QSR, retail, medical, or other high-demand commercial redevelopment.
Faits sur la propriété
1 Lot disponible
Lot
| Prix | 1 914 752 $ CAD | Taille du lot | 1,54 AC |
| Prix par AC | 1 243 345,41 $ CAD |
| Prix | 1 914 752 $ CAD |
| Prix par AC | 1 243 345,41 $ CAD |
| Taille du lot | 1,54 AC |
Redevelopment opportunity in Ypsilanti Township
1 1
Moyennement praticable à pied
60/100
Très facile d’accès en voiture
80/100
Transports en commun limités
30/100
Plutôt praticable en vélo
50/100
1 de 5
Vidéos
Visite extérieure 3D Matterport
Visite 3D Matterport
Photos
Vue depuis la rue
Rue
Carte
1 de 1
Présenté par
2675 Washtenaw Ave
Vous êtes déjà membre? Connectez-vous
Hmm, il semble y avoir eu une erreur lors de l’envoi de votre message. Veuillez réessayer.
Merci! Votre message a été envoyé.
