Votre courriel a été envoyé.
Certaines informations ont été traduites automatiquement.
FAITS SAILLANTS DU PARC
- Parc d'affaires achalandé avec un achalandage de clients
- Accès 24 heures
- Caméras de sécurité
- Idéalement situé à quelques minutes de l'autoroute I-45 avec un accès facile à l'autoroute
- Signalisation du monument
- Système électrique triphasé 480 dans l'entrepôt
FAITS SUR LE PARC
CARACTÉRISTIQUES ET COMMODITÉS
- Accès 24 heures
- Voie de virage obligatoire
- Restaurant
- Affichage
- Affichage sur monument
TOUS LES ESPACES DISPONIBLES(3)
Afficher les taux de location en
- ESPACE
- TAILLE
- TERME
- TAUX DE LOCATION
- UTILISATION DE L’ESPACE
- ÉTAT
- DISPONIBLE
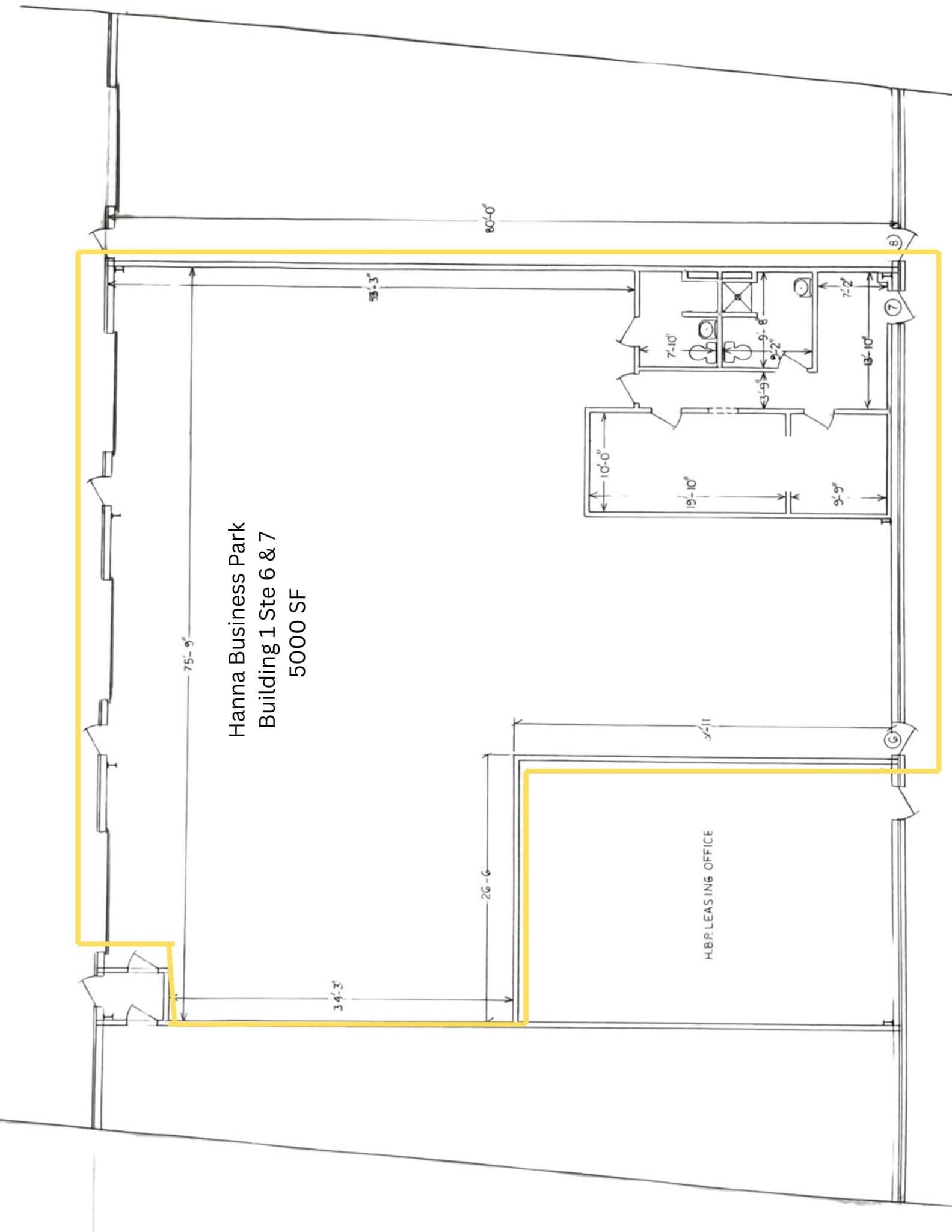
*Price Reduction* Office/Warehouse/Flex - 5,000 SF Building 1 Ste. 6 & 7 is approximately 650 SF of office build-out and 4,350 SF of warehouse space. It offers a reception area, 2 offices, and 2 ADA restrooms, one with a shower. It has 3 grade level roll-up doors. The lease rate is: Base Rate: $.80 / SF + $.42 / SF NNN = $1.22/SF = $6,100.00 per month. (NNN Lease) TI available
- Le taux de location ne comprend pas les services publics, les services de bâtiment ou les dépenses immobilières.
- 3 accès plain-pied
- Aire de réception
- Entreposage sécurisé
- Douches
- Accessible aux fauteuils roulants
- Comprend 650 pi² d’espace de bureau dédié
- Air central et chauffage
- Salle de bains privée
- Éclairage d’urgence
- CVCA disponible après les heures de travail
* Sublease * Office/Warehouse - 4,000 SF – Building 1 Ste. 9 & 10 is approximately 1,000 SF of office space and 3,000 SF of warehouse space. It offers a reception, 3 offices, 1 ADA restroom and 1 shop restroom. It has 2 grade level roll-up doors. The lease rate is $4,200.00 / month. Sublease ends 08/31/2027
- Le taux inscrit peut ne pas comprendre certains services publics, les services de bâtiment et les dépenses immobilières.
- 2 accès plain-pied
- Aire de réception
- Entreposage sécurisé
- Éclairage d’urgence
- CVCA disponible après les heures de travail
- Accessible aux fauteuils roulants
- Comprend 1 000 pi² d’espace de bureau dédié
- Air central et chauffage
- Salle de bains privée
- Plafond suspendu
- Hauts plafonds
- Plafond exposé
| Espace | Taille | Terme | Taux de location | Utilisation de l’espace | État | Disponible |
| 1er étage - 106 & 107 | 5 000 pi² | 3-10 ans | 20,37 $ CAD/pi²/an 1,70 $ CAD/pi²/mois 101 858 $ CAD/an 8 488 $ CAD/mois | Flex | construction complète | Maintenant |
| 1er étage - 9 & 10 | 4 000 pi² | 3-10 ans | 20,37 $ CAD/pi²/an 1,70 $ CAD/pi²/mois 81 486 $ CAD/an 6 791 $ CAD/mois | Flex | construction complète | Maintenant |
26797 Hanna Rd - 1er étage - 106 & 107
26797 Hanna Rd - 1er étage - 9 & 10
- ESPACE
- TAILLE
- TERME
- TAUX DE LOCATION
- UTILISATION DE L’ESPACE
- ÉTAT
- DISPONIBLE
*Price Reduction - see schedule below* Office/Warehouse - 6,000 SF The buildout in Building 6 Ste. 607 is approximately 600 SF of office and 5,400 SF of warehouse. It offers a reception, two offices, kitchenette, and ADA restroom. The WAREHOUSE is FULLY AIR-CONDITIONED. The NNN lease rate is reduced to: • Base Rate: $.67 / SF + $.40 / SF NNN = $1.07 = $6,420.00 / month for months 1-12 • Base Rate: $.77 / SF + $.40 / SF NNN = $1.77 = $7,020.00 / month for months 13-24 • Base Rate: $.82 / SF + $.40 / SF NNN = $1.22 = $7,320.00 / month for months 25-36 • 3 year minimum
- Le taux de location ne comprend pas les services publics, les services de bâtiment ou les dépenses immobilières.
- Espace en excellent état
- Air central et chauffage
- Aire de réception
- Système de sécurité
- Éclairage d’urgence
- Comprend 600 pi² d’espace de bureau dédié
- 2 accès plain-pied
- Bureaux partitionnés
- Salle de bains privée
- Entreposage sécurisé
- Hauts plafonds
| Espace | Taille | Terme | Taux de location | Utilisation de l’espace | État | Disponible |
| 1er étage - 607 & 608 | 6 000 pi² | 3-10 ans | 17,87 $ CAD/pi²/an 1,49 $ CAD/pi²/mois 107 201 $ CAD/an 8 933 $ CAD/mois | Flex | construction complète | Maintenant |
26803 Hanna Rd - 1er étage - 607 & 608
26797 Hanna Rd - 1er étage - 106 & 107
| Taille | 5 000 pi² |
| Terme | 3-10 ans |
| Taux de location | 20,37 $ CAD/pi²/an |
| Utilisation de l’espace | Flex |
| État | construction complète |
| Disponible | Maintenant |
*Price Reduction* Office/Warehouse/Flex - 5,000 SF Building 1 Ste. 6 & 7 is approximately 650 SF of office build-out and 4,350 SF of warehouse space. It offers a reception area, 2 offices, and 2 ADA restrooms, one with a shower. It has 3 grade level roll-up doors. The lease rate is: Base Rate: $.80 / SF + $.42 / SF NNN = $1.22/SF = $6,100.00 per month. (NNN Lease) TI available
- Le taux de location ne comprend pas les services publics, les services de bâtiment ou les dépenses immobilières.
- Comprend 650 pi² d’espace de bureau dédié
- 3 accès plain-pied
- Air central et chauffage
- Aire de réception
- Salle de bains privée
- Entreposage sécurisé
- Éclairage d’urgence
- Douches
- CVCA disponible après les heures de travail
- Accessible aux fauteuils roulants
26797 Hanna Rd - 1er étage - 9 & 10
| Taille | 4 000 pi² |
| Terme | 3-10 ans |
| Taux de location | 20,37 $ CAD/pi²/an |
| Utilisation de l’espace | Flex |
| État | construction complète |
| Disponible | Maintenant |
* Sublease * Office/Warehouse - 4,000 SF – Building 1 Ste. 9 & 10 is approximately 1,000 SF of office space and 3,000 SF of warehouse space. It offers a reception, 3 offices, 1 ADA restroom and 1 shop restroom. It has 2 grade level roll-up doors. The lease rate is $4,200.00 / month. Sublease ends 08/31/2027
- Le taux inscrit peut ne pas comprendre certains services publics, les services de bâtiment et les dépenses immobilières.
- Comprend 1 000 pi² d’espace de bureau dédié
- 2 accès plain-pied
- Air central et chauffage
- Aire de réception
- Salle de bains privée
- Entreposage sécurisé
- Plafond suspendu
- Éclairage d’urgence
- Hauts plafonds
- CVCA disponible après les heures de travail
- Plafond exposé
- Accessible aux fauteuils roulants
26803 Hanna Rd - 1er étage - 607 & 608
| Taille | 6 000 pi² |
| Terme | 3-10 ans |
| Taux de location | 17,87 $ CAD/pi²/an |
| Utilisation de l’espace | Flex |
| État | construction complète |
| Disponible | Maintenant |
*Price Reduction - see schedule below* Office/Warehouse - 6,000 SF The buildout in Building 6 Ste. 607 is approximately 600 SF of office and 5,400 SF of warehouse. It offers a reception, two offices, kitchenette, and ADA restroom. The WAREHOUSE is FULLY AIR-CONDITIONED. The NNN lease rate is reduced to: • Base Rate: $.67 / SF + $.40 / SF NNN = $1.07 = $6,420.00 / month for months 1-12 • Base Rate: $.77 / SF + $.40 / SF NNN = $1.77 = $7,020.00 / month for months 13-24 • Base Rate: $.82 / SF + $.40 / SF NNN = $1.22 = $7,320.00 / month for months 25-36 • 3 year minimum
- Le taux de location ne comprend pas les services publics, les services de bâtiment ou les dépenses immobilières.
- Comprend 600 pi² d’espace de bureau dédié
- Espace en excellent état
- 2 accès plain-pied
- Air central et chauffage
- Bureaux partitionnés
- Aire de réception
- Salle de bains privée
- Système de sécurité
- Entreposage sécurisé
- Éclairage d’urgence
- Hauts plafonds
APERÇU DU PARC
Le parc d'affaires Hanna a été aménagé pour répondre aux besoins des entreprises et des bureaux de Woodlands et d'Oak Ridge North. Il se trouve dans un environnement semblable à un bureau en raison de l'aménagement paysager et de la conception, mais il s'agit d'un entrepôt à bureaux à service complet. HBP offre un espace commercial à l'entrée avec un restaurant, une esthéticienne, un salon de coiffure et un studio de danse. Il y a aussi un gymnase à service complet, un studio de physiothérapie et 2 centres de jeux pour enfants situés au parc d'affaires Hanna.
Présenté par
Hanna Business Park | Conroe, TX 77385
Hmm, il semble y avoir eu une erreur lors de l’envoi de votre message. Veuillez réessayer.
Merci! Votre message a été envoyé.












