Votre courriel a été envoyé.
Certaines informations ont été traduites automatiquement.
Faits saillants
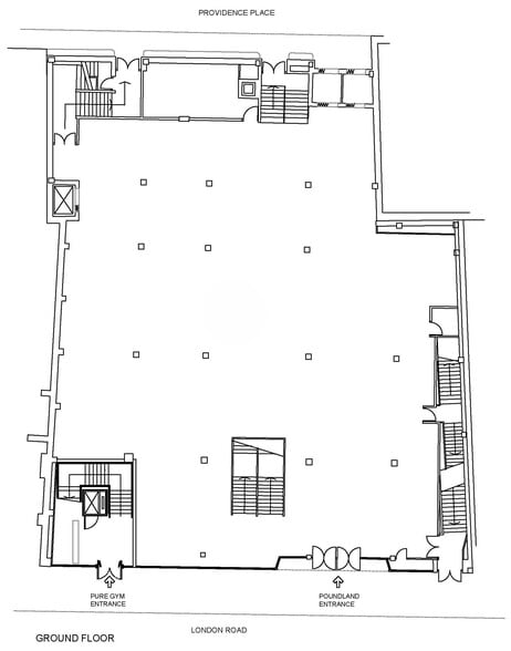
- Ground and lower ground floor trading areas
- Nearby occupiers include Nandos, Costa, Greggs. KFC and Superdrug
- Major throughfare road with high levels of footfall
Disponibilité de l’espace (1)
Afficher les taux de location en
- Espace
- Taille
- Terme
- Taux de location
- Type
| Espace | Taille | Terme | Taux de location | Type de loyer | ||
| RDC | 14 731 pi² | Négociable | 20,87 $ CAD/pi²/an 1,74 $ CAD/pi²/mois 307 395 $ CAD/an 25 616 $ CAD/mois | Réparation complète et assurance |
RDC
Offered by way of a new lease with a passing rent of £165,000 per annum, exclusive.
- Classe d’utilisation : E
- Situé en ligne avec d’autres commerces de détail
- Loading to rear
- Splitting considered
- Across ground and basement
Types de services
Le type de service et le montant du loyer que le locataire (preneur) est tenu de payer au propriétaire (bailleur) sur la durée du bail sont négociés avant la signature du bail par les deux parties. Le type de service varie selon les services fournis. Contactez le courtier inscripteur pour tout connaître sur les frais connexes et additionnels associés à chaque type de service.
1. Réparations et assurances complètes: Toutes les obligations de réparer et d’assurer la propriété (ou de sa part de la propriété) à l’interne comme à l’externe.
2. Réparations internes seulement: Le locataire est responsable des réparations internes seulement. Le propriétaire est responsable des réparations structurelles et externes.
3. Réparations et assurances internes: Le locataire est responsable des réparations internes et des assurances pour les parties internes de la propriété seulement. Le propriétaire est responsable des réparations structurelles et externes.
4. Négociable ou à déterminer: Cette option est utilisée lorsque le contact de location ne fournit pas le type de service.
Sélectionner des locataires à 27-31 London Rd, Brighton, ESX BN1 4LE
- Locataire
- Description
- Emplacements GB
- Portée
- Poundland
- Magasin à un dollar / Variété / Friperie
- 922
- International
- Pure Gym
- Entraînement physique
- 686
- International
| Locataire | Description | Emplacements GB | Portée |
| Poundland | Magasin à un dollar / Variété / Friperie | 922 | International |
| Pure Gym | Entraînement physique | 686 | International |
Faits sur la propriété
| Superficie totale disponible | 14 731 pi² | Superficie commerciale brute | 35 864 pi² |
| Type de propriété | Commerce de détail | Année de construction | 1969 |
| Sous-type de propriété | Boutique |
| Superficie totale disponible | 14 731 pi² |
| Type de propriété | Commerce de détail |
| Sous-type de propriété | Boutique |
| Superficie commerciale brute | 35 864 pi² |
| Année de construction | 1969 |
À propos de la propriété
The property is a substantial mid terrace art deco building with prominent street frontage. The upper floors occupied by PureGym and the ground and lower ground floors offer an open plan trading area. There is a loading point to the rear located in Providence Place. The landlord will consider splitting the premises into two separate units.
Principaux détaillants à proximité
Présenté par
27-31 London Rd
Hmm, il semble y avoir eu une erreur lors de l’envoi de votre message. Veuillez réessayer.
Merci! Votre message a été envoyé.






