Se Connecter/S’inscrire
Votre courriel a été envoyé.
2701 S University Dr
Fort Worth, TX 76109
Immeuble residentiel Propriété À vendre
·
1 Unité


Certaines informations ont été traduites automatiquement.
Faits saillants de l'investissement
- Rare TCU Overlay Grandfathered Property
- Across the street from TCU Campus
Résumé de l'annonce
Prime opportunity to own a grandfathered, registered TCU student rental—part of an exclusive property portfolio located steps from Texas Christian University. Each home is leased to high-demand student tenants under the 2014 TCU Overlay, allowing up to 4–5 occupants and delivering consistent cash flow well above market averages. Investors may purchase individually, select properties, or acquire the entire portfolio for scale. With a shrinking supply of registered properties, strong rent growth, and long-term appreciation in the 76109 zip code, these assets are among the most coveted student rentals in Fort Worth. 24 hours notice required for showings. Showings only Monday Through Friday during business hours. Text (817)946-1299 to setup showings.
Faits sur la propriété
| Prix par unité | 1 227 680 $ CAD | Classe d’immeuble | C |
| Type de vente | Investissement | Taille du lot | 0,17 AC |
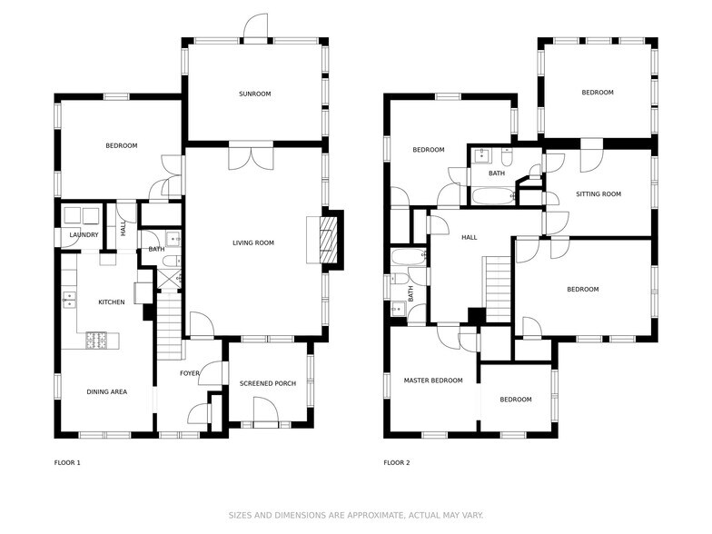
| Nombre d’unités | 1 | Taille du bâtiment | 2 984 pi² |
| Type de propriété | Immeuble residentiel | Occupation moyenne | 100% |
| Sous-type de propriété | Appartement | Nombre d’étages | 2 |
| Style d’appartement | Maison unifamiliale | Année de construction | 1927 |
| Prix par unité | 1 227 680 $ CAD |
| Type de vente | Investissement |
| Nombre d’unités | 1 |
| Type de propriété | Immeuble residentiel |
| Sous-type de propriété | Appartement |
| Style d’appartement | Maison unifamiliale |
| Classe d’immeuble | C |
| Taille du lot | 0,17 AC |
| Taille du bâtiment | 2 984 pi² |
| Occupation moyenne | 100% |
| Nombre d’étages | 2 |
| Année de construction | 1927 |
Commodités
Commodités des unités
- Climatisation
- Cuisine
- Réfrigérateur
- Four
- Fourchette
- Bain/Douche
Commodités du site
- Accès 24 heures
- CVCA contrôlé par le locataire
- Sans fumée
- Collecte d'ordures - sur rue
- Sans ascenseur
- Détecteur de fumée
Unité renseignements sur le mélange
| Description | Nombre d’unités | Loyer moyen/mois | pi² |
|---|---|---|---|
| 5+3 | 1 | - | 2 984 |
Impôts fonciers
| Numéro de lot | 03227901 | Évaluation des bâtiments | 196 531 $ CAD |
| Évaluation du terrain | 319 232 $ CAD | Évaluation totale | 515 763 $ CAD |
Impôts fonciers
Numéro de lot
03227901
Évaluation du terrain
319 232 $ CAD
Évaluation des bâtiments
196 531 $ CAD
Évaluation totale
515 763 $ CAD
1 de 29
Vidéos
Visite extérieure 3D Matterport
Visite 3D Matterport
Photos
Vue depuis la rue
Rue
Carte
