Votre courriel a été envoyé.
Certaines informations ont été traduites automatiquement.
Faits saillants
- 30' Frontage | Great Signage Opportunity
- Located in a High-Traffic Area
- Close to Major Traffic Transportation
- Surrounded by Major Businesses
- Any Uses Considered
- Great Exposure
Disponibilité de l’espace (1)
Afficher les taux de location en
- Espace
- Taille
- Terme
- Taux de location
- Type de loyer
| Espace | Taille | Terme | Taux de location | Type de loyer | ||
| 1er étage | 5 000 pi² | Négociable | 49,22 $ CAD/pi²/an 4,10 $ CAD/pi²/mois 246 101 $ CAD/an 20 508 $ CAD/mois | Brut modifié |
1er étage
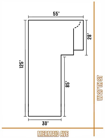
Presenting an exceptional commercial opportunity in the heart of Coney Island—2705 Mermaid Avenue offers a prime ground floor space for lease with an impressive 30-foot frontage, ideal for maximizing visibility and customer engagement. This highly exposed location provides a valuable signage opportunity and is surrounded by major businesses, ensuring a steady flow of foot and vehicular traffic throughout the day. Strategically positioned in a high-traffic corridor and close to major transportation routes, this property offers unmatched convenience and accessibility. With flexible zoning and ownership open to considering a wide range of uses, this space is perfectly suited for retail, office, or service-based businesses looking to establish a strong presence in a thriving Brooklyn neighborhood.
- Le taux inscrit peut ne pas comprendre certains services publics, les services de bâtiment et les dépenses immobilières.
- Nouvelle devantation de magasin, éclairage, portails, étagères.
- Surrounded by Major Businesses
- Great Exposure
- Located in a High-Traffic Area
- Any Uses Considered
- Close to Major Traffic Transportation
Types de loyers
Le type et le montant du loyer que le locataire (preneur) est tenu de payer au propriétaire (bailleur) sur la durée du bail sont négociés avant la signature du bail par les deux parties. Le type de loyer varie selon les services fournis. Par exemple, le prix d’un loyer hypernet est habituellement inférieur à celui d’un bail à service complet puisque le locataire est tenu d’assumer des dépenses additionnelles par rapport au loyer de base. Contactez le courtier inscripteur pour tout connaître sur les frais connexes et additionnels associés à chaque type de loyer.
1. Service complet: Un taux de location qui comprend des services standards liés à l’immeuble fournis par le propriétaire dans le cadre d’une location annuelle de base.
2. Loyer supernet: Le locataire paie seulement deux des frais de l’immeuble. Le propriétaire et le locataire déterminent ces frais spécifiques avant la signature du bail.
3. Loyer hypernet: Un bail en vertu duquel le locataire est responsable de tous les frais liés à sa part proportionnelle d’occupation de l’immeuble.
4. Brut modifié: Le loyer brut modifié désigne un type général de taux de location dans lequel le locataire est habituellement responsable de sa part proportionnelle d’un ou de plusieurs frais. C’est le propriétaire qui paie les frais restants. Considérez les structures tarifaires courantes suivantes applicables aux loyers bruts modifiés: 4. Plus les services: Un type de bail brut modifié suivant lequel le locataire est responsable de sa part proportionnelle des coûts des services publics, en plus du loyer. 4. Plus le nettoyage: Un type de bail brut modifié suivant lequel le locataire est responsable de sa part proportionnelle des coûts de nettoyage, en plus du loyer. 4. Plus l'électricité: Un type de bail brut modifié suivant lequel le locataire est responsable de sa part proportionnelle des coûts d’électricité, en plus du loyer. 4. Plus l’électricité et le nettoyage: Un type de bail brut modifié dans lequel le locataire est responsable de sa part proportionnelle des coûts d’électricité et de nettoyage, en plus du loyer. 4. Plus les services publics et le nettoyage: Un type de bail brut modifié dans lequel le locataire est responsable de sa part proportionnelle des coûts des services publics et de nettoyage, en plus du loyer. 4. Bail industriel brut: Un type de bail brut modifié dans lequel le locataire paie un ou plusieurs des frais, en plus du loyer. Le propriétaire et le locataire déterminent ces frais spécifiques avant la signature du bail.
5. L’électricité est à la charge du locataire: Le propriétaire paie pour tous les services et le locataire est responsable de sa propre utilisation de l’éclairage et des prises électriques dans l’espace qu’il occupe.
6. Négociable ou sur demande: Cette option est utilisée lorsque le contact de location ne précise pas le type de loyer ou de service.
7. À déterminer: À déterminer ; utilisé pour les immeubles dont le type de services ou de loyer n’est pas connu, souvent quand l’immeuble n’est pas encore construit.
Faits sur la propriété
| Superficie totale disponible | 5 000 pi² | Superficie commerciale brute | 13 940 pi² |
| Type de propriété | Commerce de détail | Année de construction | 1930 |
| Sous-type de propriété | Dépanneur |
| Superficie totale disponible | 5 000 pi² |
| Type de propriété | Commerce de détail |
| Sous-type de propriété | Dépanneur |
| Superficie commerciale brute | 13 940 pi² |
| Année de construction | 1930 |
À propos de la propriété
Découvrez une opportunité commerciale exceptionnelle au cœur de Coney Island—le 2705 Mermaid Avenue propose un espace au rez-de-chaussée à louer, doté d'une impressionnante façade de 30 pieds, idéale pour maximiser la visibilité et l'engagement des clients. Cet emplacement très exposé offre une opportunité précieuse pour l'affichage de votre enseigne et est entouré de grandes entreprises, garantissant un flux constant de piétons et de véhicules tout au long de la journée. Stratégiquement situé dans un corridor à fort achalandage et à proximité des principales voies de transport, cette propriété offre une accessibilité et une commodité inégalées. Avec un zonage flexible et une ouverture des propriétaires à envisager une large gamme d'utilisations, cet espace est parfaitement adapté aux commerces de détail, bureaux ou entreprises de services souhaitant établir une présence forte dans un quartier dynamique de Brooklyn.
- Affichage
Principaux détaillants à proximité
Présenté par
2705-2715 Mermaid Ave
Hmm, il semble y avoir eu une erreur lors de l’envoi de votre message. Veuillez réessayer.
Merci! Votre message a été envoyé.





