Votre courriel a été envoyé.
271-285 E Helen Rd - Courtyard Centre Unités de condo • Industriel • 4 314-5 192 pi² • À vendre 683 765 $-819 150 $ CAD par unité • Palatine, IL 60067



Certaines informations ont été traduites automatiquement.
Faits saillants de l'investissement
- Introducing a rare opportunity to own or lease two (2) industrial/flex condo units totaling 9,506 square feet
- Drive-In Doors: Two (2) total – one (1) per unit, each 14' in height
- Asset offers a versatile layout ideal for a variety of industrial, flex, and office uses.
Résumé de l'annonce
Introducing a rare opportunity to own or lease two (2) industrial/flex condo units totaling 9,506 square feet in a well-maintained industrial condominium building. Constructed in 1987 and zoned M (Manufacturing), this asset offers a versatile layout ideal for a variety of industrial, flex, and office uses. The units offer a well-balanced mix of warehouse, storage, and office space, making them suitable for: Light manufacturing or assembly Storage/distribution with office Service-based businesses Creative or showroom uses Owner-occupant or investor scenarios The property’s divisible floor plan and dual-entry configuration support a range of operational needs, while the existing condition allows for near-immediate occupancy or minimal buildout for custom use.
Salle de données Cliquez ici pour accéder à
Faits sur la propriété
Commodités
- Accès 24 heures
- Réception
- Espace d'entreposage
- Climatisation
- Détecteur de fumée
Services publics
- Gaz - Naturel
- Eau - Ville
- Égout - Ville
- Chauffage - Gaz
2 Unités disponibles
Unité 273
| Taille de l’unité | 5 192 pi² | Utilisation du condo | Industriel |
| Prix | 819 150 $ CAD | Type de vente | Investissement ou propriétaire utilisateur |
| Prix par pi² | 157,77 $ CAD |
| Taille de l’unité | 5 192 pi² |
| Prix | 819 150 $ CAD |
| Prix par pi² | 157,77 $ CAD |
| Utilisation du condo | Industriel |
| Type de vente | Investissement ou propriétaire utilisateur |
Description
Availability: For sale or lease – individually or combined
Total Size: 9,506 SF (divisible)
Unit 273:
5,192 SF
For Sale: $599,000
Real Estate Taxes: $26,820.96
Drive-In Doors: Two (2) total – one (1) per unit, each 14' in height
Office Buildout: Approx. 80% – easily reconfigurable for more open/flex use
Zoning: M – Manufacturing
Notes sur la vente
Introducing a rare opportunity to own or lease two (2) industrial/flex condo units totaling 9,506 square feet in a well-maintained industrial condominium building. Constructed in 1970 and zoned M (Manufacturing), this asset offers a versatile layout ideal for a variety of industrial, flex, and office uses.
The units offer a well-balanced mix of warehouse, storage, and office space, making them suitable for:
Light manufacturing or assembly
Storage/distribution with office
Service-based businesses
Creative or showroom uses
Owner-occupant or investor scenarios
The property’s divisible floor plan and dual-entry configuration support a range of operational needs, while the existing condition allows for near-immediate occupancy or minimal buildout for custom use.
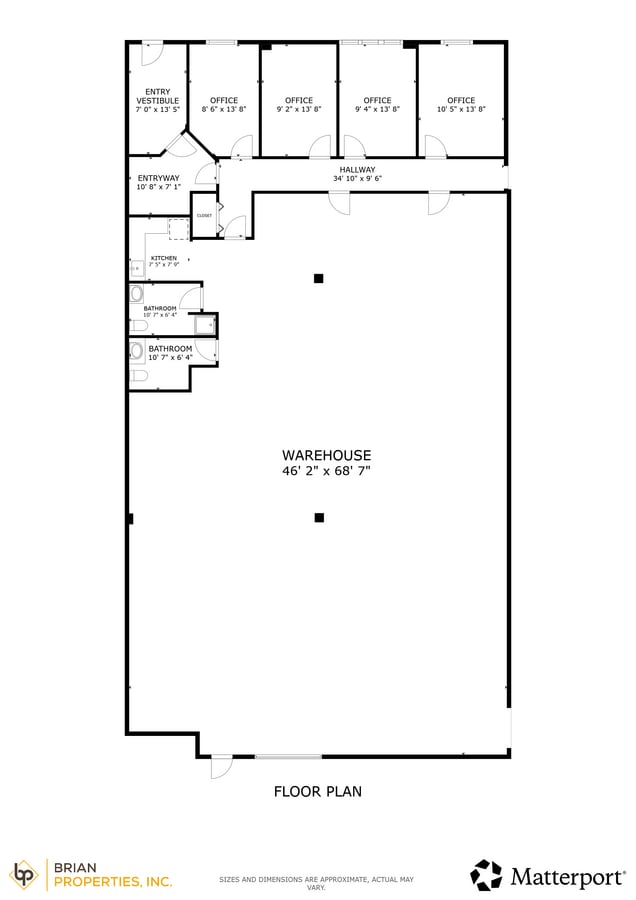
273 E Helen Rd Palatine IL 60067 - Floorplan - Portrait
273-E-Helen-Rd-Palatine-IL-60067-02122026_072732
273-E-Helen-Rd-Palatine-IL-60067-02122026_071904
273-E-Helen-Rd-Palatine-IL-60067-02122026_071803
273-E-Helen-Rd-Palatine-IL-60067-02122026_071742
273-E-Helen-Rd-Palatine-IL-60067-02122026_071721
273-E-Helen-Rd-Palatine-IL-60067-02122026_071706
273-E-Helen-Rd-Palatine-IL-60067-02122026_071639
273-E-Helen-Rd-Palatine-IL-60067-02122026_071620
273-E-Helen-Rd-Palatine-IL-60067-02122026_071605
273-E-Helen-Rd-Palatine-IL-60067-02122026_071540
273-E-Helen-Rd-Palatine-IL-60067-02122026_072751
Unité 277
| Taille de l’unité | 4 314 pi² | Utilisation du condo | Industriel |
| Prix | 683 765 $ CAD | Type de vente | Investissement ou propriétaire utilisateur |
| Prix par pi² | 158,50 $ CAD |
| Taille de l’unité | 4 314 pi² |
| Prix | 683 765 $ CAD |
| Prix par pi² | 158,50 $ CAD |
| Utilisation du condo | Industriel |
| Type de vente | Investissement ou propriétaire utilisateur |
Description
Availability: For sale or lease – individually or combined
Total Size: 9,506 SF (divisible)
Unit 277:
4,314 SF
For Sale: $500,000
Real Estate Taxes: $22,461.04
Drive-In Doors: One (1) total – one (1) per unit, each 14' in height
Office Buildout: Approx. 80% – easily reconfigurable for more open/flex use
Zoning: M – Manufacturing
Notes sur la vente
Introducing a rare opportunity to own or lease two (2) industrial/flex condo units totaling 9,506 square feet in a well-maintained industrial condominium building. Constructed in 1970 and zoned M (Manufacturing), this asset offers a versatile layout ideal for a variety of industrial, flex, and office uses.
The units offer a well-balanced mix of warehouse, storage, and office space, making them suitable for:
Light manufacturing or assembly
Storage/distribution with office
Service-based businesses
Creative or showroom uses
Owner-occupant or investor scenarios
The property’s divisible floor plan and dual-entry configuration support a range of operational needs, while the existing condition allows for near-immediate occupancy or minimal buildout for custom use.
277 E Helen Rd Palatine IL 60067 - Floorplan - Portrait
277-E-Helen-Rd-Palatine-IL-60067-02122026_070239
277-E-Helen-Rd-Palatine-IL-60067-02122026_070211
277-E-Helen-Rd-Palatine-IL-60067-02122026_070149
277-E-Helen-Rd-Palatine-IL-60067-02062026_184631
277-E-Helen-Rd-Palatine-IL-60067-02122026_070259
277-E-Helen-Rd-Palatine-IL-60067-Photo-11
277-E-Helen-Rd-Palatine-IL-60067-Photo-10
277-E-Helen-Rd-Palatine-IL-60067-Photo-9
277-E-Helen-Rd-Palatine-IL-60067-Photo-8
277-E-Helen-Rd-Palatine-IL-60067-Photo-1
277-E-Helen-Rd-Palatine-IL-60067-Photo-12
Présenté par
271-285 E Helen Rd - Courtyard Centre
Hmm, il semble y avoir eu une erreur lors de l’envoi de votre message. Veuillez réessayer.
Merci! Votre message a été envoyé.


