Se Connecter/S’inscrire
Votre courriel a été envoyé.
2718-2720 Atlantic Ave 18 845 pi² Vacant Bureau Immeuble Atlantic City, NJ 08401 1 033 125 $ CAD (54,82 $ CAD/pi²)



Certaines informations ont été traduites automatiquement.
Faits saillants de l'investissement
- Prime Residential Multifamily Conversion
- Parking for 15-20 Vehicles!
- Located Across From Public Safety Building Police Department
- Brand new HVAC
Résumé de l'annonce
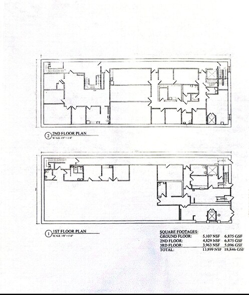
Great opportunity has come to the AC market! 2718-2720 Atlantic Avenue which is a three story commercial space office building located in the Opportunity Zone, boasting a little over 18,800 gross square feet along with a parking lot for 15-20 vehicles on South California Avenue. The property has a newer roof, brand new HVAC systems installed summer of 2025, elevator service to all floors, two stairwells and is currently vacant. This is a rare opportunity for a possible residential apartment conversion due to the size, parking and zoning/redevelopment. The building's efficient floorplate depth, elevator service and vertical circulation core support a double-loaded corridor layout, allowing for a possible16-22 unit multifamily conversion. Plenty of possibilities here, super easy to view the property!!
Faits sur la propriété
Type de vente
Investissement ou propriétaire utilisateur
Type de propriété
Taille du bâtiment
18 845 pi²
Classe d’immeuble
C
Année de construction
1960
Prix
1 033 125 $ CAD
Prix par pi²
54,82 $ CAD
Pourcentage loué
Vacant
Location
Multiples
Hauteur du bâtiment
3 étages
Superficie de plancher typique
4 700 pi²
Dalle à dalle
15’
Coefficient d’occupation des sols de l’immeuble
1,07
Taille du lot
0,41 AC
Zone de développement économique
Oui
Zonage
NC-2 - CRDA-Commercial Opportunity Zone
Stationnement
20 places (1,06 places par 1 000 pi² loué)
Commodités
- Système de sécurité
- Accessible aux fauteuils roulants
- Réception
- Espace d'entreposage
- Détecteur de fumée
1 1
Exceptionnellement praticable à pied
90/100
Très facile d’accès en voiture
80/100
Transports en commun relativement accessibles
50/100
Plutôt praticable en vélo
50/100
Impôts fonciers
| Numéro de lot | 02-00174-0000-00002 | Évaluation des bâtiments | 576 025 $ CAD |
| Évaluation du terrain | 239 233 $ CAD | Évaluation totale | 815 258 $ CAD |
Impôts fonciers
Numéro de lot
02-00174-0000-00002
Évaluation du terrain
239 233 $ CAD
Évaluation des bâtiments
576 025 $ CAD
Évaluation totale
815 258 $ CAD
1 de 26
Vidéos
Visite extérieure 3D Matterport
Visite 3D Matterport
Photos
Vue depuis la rue
Rue
Carte
1 de 1
Présenté par
2718-2720 Atlantic Ave
Vous êtes déjà membre? Connectez-vous
Hmm, il semble y avoir eu une erreur lors de l’envoi de votre message. Veuillez réessayer.
Merci! Votre message a été envoyé.
