Votre courriel a été envoyé.
Certaines informations ont été traduites automatiquement.
FAITS SAILLANTS
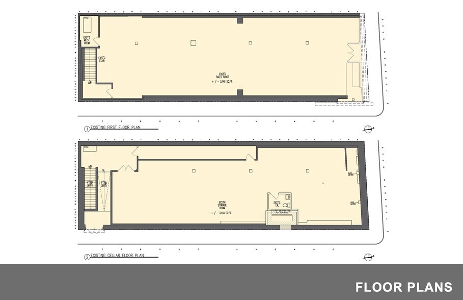
- 3,148 SF corner space in the heart of Fordham’s retail corridor, one of the busiest shopping districts in the Bronx.
- High foot traffic – One of NYC’s top retail destinations, with national tenants nearby.
- Strong co-tenancy – Steps from major brands and institutions, driving consistent demand.
- Premier corner frontage – Maximum exposure at a high-traffic intersection.
- Large basement – 3,148 SF of usable lower-level space.
DISPONIBILITÉ DE L’ESPACE (1)
Afficher les taux de location en
- ESPACE
- TAILLE
- TERME
- TAUX DE LOCATION
- TYPE DE LOYER
| Espace | Taille | Terme | Taux de location | Type de loyer | ||
| 1er étage | 3 148 pi² | Négociable | Sur demande Sur demande Sur demande Sur demande | À déterminer |
1er étage
Types de loyers
Le type et le montant du loyer que le locataire (preneur) est tenu de payer au propriétaire (bailleur) sur la durée du bail sont négociés avant la signature du bail par les deux parties. Le type de loyer varie selon les services fournis. Par exemple, le prix d’un loyer hypernet est habituellement inférieur à celui d’un bail à service complet puisque le locataire est tenu d’assumer des dépenses additionnelles par rapport au loyer de base. Contactez le courtier inscripteur pour tout connaître sur les frais connexes et additionnels associés à chaque type de loyer.
1. Service complet: Un taux de location qui comprend des services standards liés à l’immeuble fournis par le propriétaire dans le cadre d’une location annuelle de base.
2. Loyer supernet: Le locataire paie seulement deux des frais de l’immeuble. Le propriétaire et le locataire déterminent ces frais spécifiques avant la signature du bail.
3. Loyer hypernet: Un bail en vertu duquel le locataire est responsable de tous les frais liés à sa part proportionnelle d’occupation de l’immeuble.
4. Brut modifié: Le loyer brut modifié désigne un type général de taux de location dans lequel le locataire est habituellement responsable de sa part proportionnelle d’un ou de plusieurs frais. C’est le propriétaire qui paie les frais restants. Considérez les structures tarifaires courantes suivantes applicables aux loyers bruts modifiés: 4. Plus les services: Un type de bail brut modifié suivant lequel le locataire est responsable de sa part proportionnelle des coûts des services publics, en plus du loyer. 4. Plus le nettoyage: Un type de bail brut modifié suivant lequel le locataire est responsable de sa part proportionnelle des coûts de nettoyage, en plus du loyer. 4. Plus l'électricité: Un type de bail brut modifié suivant lequel le locataire est responsable de sa part proportionnelle des coûts d’électricité, en plus du loyer. 4. Plus l’électricité et le nettoyage: Un type de bail brut modifié dans lequel le locataire est responsable de sa part proportionnelle des coûts d’électricité et de nettoyage, en plus du loyer. 4. Plus les services publics et le nettoyage: Un type de bail brut modifié dans lequel le locataire est responsable de sa part proportionnelle des coûts des services publics et de nettoyage, en plus du loyer. 4. Bail industriel brut: Un type de bail brut modifié dans lequel le locataire paie un ou plusieurs des frais, en plus du loyer. Le propriétaire et le locataire déterminent ces frais spécifiques avant la signature du bail.
5. L’électricité est à la charge du locataire: Le propriétaire paie pour tous les services et le locataire est responsable de sa propre utilisation de l’éclairage et des prises électriques dans l’espace qu’il occupe.
6. Négociable ou sur demande: Cette option est utilisée lorsque le contact de location ne précise pas le type de loyer ou de service.
7. À déterminer: À déterminer ; utilisé pour les immeubles dont le type de services ou de loyer n’est pas connu, souvent quand l’immeuble n’est pas encore construit.
SÉLECTIONNER DES LOCATAIRES À 272 E FORDHAM RD, BRONX, NY 10458
- LOCATAIRE
- DESCRIPTION
- EMPLACEMENTS US
- PORTÉE
- Kids Foot Locker
- Chaussures
- 432
- International
| LOCATAIRE | DESCRIPTION | EMPLACEMENTS US | PORTÉE |
| Kids Foot Locker | Chaussures | 432 | International |
FAITS SUR LA PROPRIÉTÉ
| Superficie totale disponible | 3 148 pi² | Superficie commerciale brute | 6 296 pi² |
| Type de propriété | Commerce de détail | Année de construction | 1916 |
| Sous-type de propriété | Immeuble de commerce |
| Superficie totale disponible | 3 148 pi² |
| Type de propriété | Commerce de détail |
| Sous-type de propriété | Immeuble de commerce |
| Superficie commerciale brute | 6 296 pi² |
| Année de construction | 1916 |
À PROPOS DE LA PROPRIÉTÉ
Espace d'angle de 3 058 pi² situé au cœur du corridor commercial de Fordham, l'un des districts de shopping les plus fréquentés du Bronx. Cet emplacement très visible bénéficie d'un achalandage piétonnier exceptionnel, d'une forte co-location et d'un accès direct aux principaux centres de transit. **Façade d'angle de premier choix** – Visibilité maximale à une intersection très fréquentée. **Achalandage élevé** – L'un des principaux lieux de commerce de NYC, avec des locataires nationaux à proximité. **Grand sous-sol** – 3 148 pi² d'espace utilisable au niveau inférieur. **Forte co-location** – À quelques pas de grandes marques et institutions, générant une demande constante. **Accès au transport exceptionnel** – À quelques minutes de l'Université Fordham et de la station Metro-North. Une opportunité rare de sécuriser une présence phare dans un marché commercial éprouvé.
- Ligne d'autobus
- Métro
- Affichage
PRINCIPAUX DÉTAILLANTS À PROXIMITÉ
Présenté par
272 E Fordham Rd
Hmm, il semble y avoir eu une erreur lors de l’envoi de votre message. Veuillez réessayer.
Merci! Votre message a été envoyé.


