Votre courriel a été envoyé.
BTS 2735 N Telegraph Rd 20 000 pi² Vacant Commerce de détail Immeuble Monroe, MI 48162 1 248 261 $ CAD (62,41 $ CAD/pi²)

Certaines informations ont été traduites automatiquement.
FAITS SAILLANTS DE L'INVESTISSEMENT
- 1.61 acres for outdoor activities.
- Easy access to local amenities.
FAITS SUR LA PROPRIÉTÉ
COMMODITÉS
- Service au volant
DISPONIBILITÉ DES ESPACES
- ESPACE
- TAILLE
- UTILISATION DE L’ESPACE
- POSTE
- DISPONIBLE
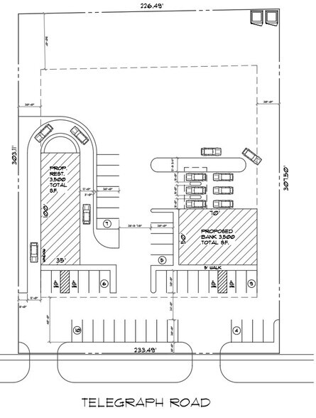
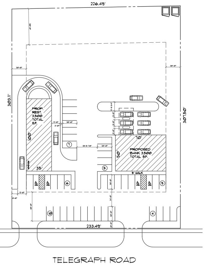
Opportunité de construction aussi selon les besoins. Ce terrain commercial a 233 pieds de façade sur le chemin N Telegraph. Il s'agit d'un terrain à surface plane avec tous les services publics disponibles sur place. Il s'agit d'un excellent emplacement à Frenchtown avec un zonage commercial à côté du quartier commerçant de Monroe, juste à côté du nouveau Super Walmart, du concessionnaire Ford, de Kohls, d'Aldi et plus encore, avec une grande visibilité et beaucoup de trafic quotidien. Proximité de l'I-275.
| Espace | Taille | Utilisation de l’espace | Poste | Disponible |
| 1er étage | 20 000 pi² | Restaurant | En ligne | Maintenant |
1er étage
| Taille |
| 20 000 pi² |
| Utilisation de l’espace |
| Restaurant |
| Poste |
| En ligne |
| Disponible |
| Maintenant |
1er étage
| Taille | 20 000 pi² |
| Utilisation de l’espace | Restaurant |
| Poste | En ligne |
| Disponible | Maintenant |
Opportunité de construction aussi selon les besoins. Ce terrain commercial a 233 pieds de façade sur le chemin N Telegraph. Il s'agit d'un terrain à surface plane avec tous les services publics disponibles sur place. Il s'agit d'un excellent emplacement à Frenchtown avec un zonage commercial à côté du quartier commerçant de Monroe, juste à côté du nouveau Super Walmart, du concessionnaire Ford, de Kohls, d'Aldi et plus encore, avec une grande visibilité et beaucoup de trafic quotidien. Proximité de l'I-275.
PRINCIPAUX DÉTAILLANTS À PROXIMITÉ
Impôts fonciers
| Numéro de lot | 07-020-013-00 | Évaluation des bâtiments | 108 581 $ CAD |
| Évaluation du terrain | 0 $ CAD | Évaluation totale | 108 581 $ CAD |
Impôts fonciers
Présenté par
Gaugi Properties
BTS | 2735 N Telegraph Rd
Hmm, il semble y avoir eu une erreur lors de l’envoi de votre message. Veuillez réessayer.
Merci! Votre message a été envoyé.
