Se Connecter/S’inscrire
Votre courriel a été envoyé.
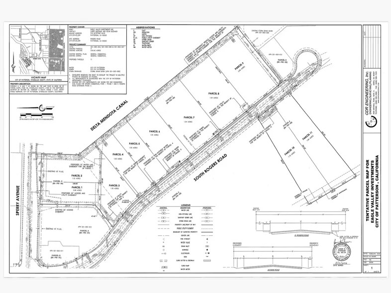
275 Rogers Rd
Patterson, CA 95363
Sperry Commercial Park Parcel 10 · Terrain À vendre
·
1,75 AC


Certaines informations ont été traduites automatiquement.
Résumé de l'annonce
Parcel 10 – Property Outline
Property
Parcel 10 – Sperry Commercial Park
Patterson, California
Parcel Size
±1.75 Acres
Property Type
Commercial Development Land
Location
Sperry Commercial Park
Patterson, Stanislaus County, California
Near Interstate 5 corridor
Access
Convenient access to Interstate 5
Frontage and access from Sperry Avenue corridor
Internal road access within Sperry Commercial Park
Traffic Drivers
Interstate 5 freight and truck traffic
Bay Area commuter traffic traveling toward Livermore and Pleasanton
Growing residential population in Patterson
Potential Uses
Quick-service restaurant (QSR)
Drive-through restaurant or coffee concept
Convenience retail
Travel services
Multi-tenant retail or service commercial development
Site Advantages
Larger parcel allowing flexible development layout
Located within Patterson’s developing highway commercial district
Exposure to interstate and regional traffic
Project Context
Part of Sperry Commercial Park commercial development
Retail corridor serving travelers, commuters, and the local community
Property
Parcel 10 – Sperry Commercial Park
Patterson, California
Parcel Size
±1.75 Acres
Property Type
Commercial Development Land
Location
Sperry Commercial Park
Patterson, Stanislaus County, California
Near Interstate 5 corridor
Access
Convenient access to Interstate 5
Frontage and access from Sperry Avenue corridor
Internal road access within Sperry Commercial Park
Traffic Drivers
Interstate 5 freight and truck traffic
Bay Area commuter traffic traveling toward Livermore and Pleasanton
Growing residential population in Patterson
Potential Uses
Quick-service restaurant (QSR)
Drive-through restaurant or coffee concept
Convenience retail
Travel services
Multi-tenant retail or service commercial development
Site Advantages
Larger parcel allowing flexible development layout
Located within Patterson’s developing highway commercial district
Exposure to interstate and regional traffic
Project Context
Part of Sperry Commercial Park commercial development
Retail corridor serving travelers, commuters, and the local community
Faits sur la propriété
| Type de vente | Investissement | Sous-type de propriété | Terrain commercial |
| Condition de vente | 1031 Échange | Utilisation proposée | Commercial |
| Nombre de lots | 1 | Taille totale du lot | 1,75 AC |
| Type de propriété | Terrain | ||
| Zonage | Commercial - General Commercial | ||
| Type de vente | Investissement |
| Condition de vente | 1031 Échange |
| Nombre de lots | 1 |
| Type de propriété | Terrain |
| Sous-type de propriété | Terrain commercial |
| Utilisation proposée | Commercial |
| Taille totale du lot | 1,75 AC |
| Zonage | Commercial - General Commercial |
1 Lot disponible
Lot 10
| Taille du lot | 1,75 AC |
| Taille du lot | 1,75 AC |
±1.75 acre commercial parcel at Sperry Commercial Park in Patterson, CA near Interstate 5. Located in a growing highway commercial corridor serving commuters, freight traffic, and local residents. Ideal for QSR, drive-thru, travel services, or retail
Impôts fonciers
| Numéro de lot | 021-93-04 | Évaluation des bâtiments | 0 $ CAD |
| Évaluation du terrain | 1 486 368 $ CAD | Évaluation totale | 1 486 368 $ CAD |
Impôts fonciers
Numéro de lot
021-93-04
Évaluation du terrain
1 486 368 $ CAD
Évaluation des bâtiments
0 $ CAD
Évaluation totale
1 486 368 $ CAD
1 de 4
Vidéos
Visite extérieure 3D Matterport
Visite 3D Matterport
Photos
Vue depuis la rue
Rue
Carte
