Votre courriel a été envoyé.
Certaines informations ont été traduites automatiquement.
Caractéristiques
Tous les espaces disponibles(1)
Afficher les taux de location en
- Espace
- Taille
- Terme
- Taux de location
- Utilisation de l’espace
- Aménagement
- Disponible
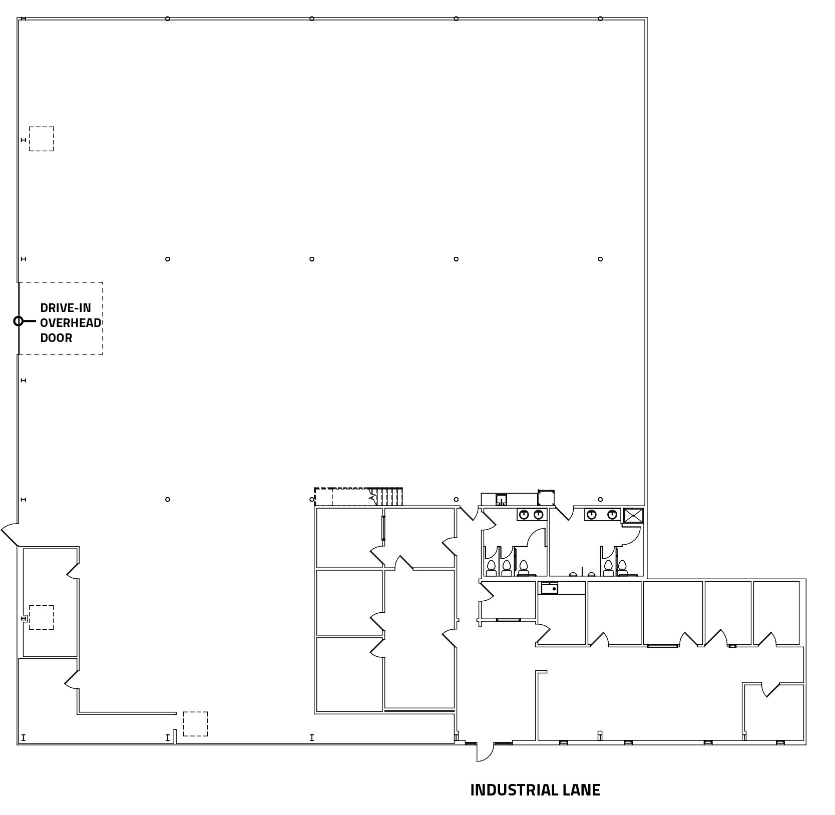
Welcome to 2750 Industrial Lane, Broomfield, CO 80020, a premier light industrial space for lease offering 13,397 square feet of versatile functionality. Strategically located with high visibility from US36 and easy access to North Metro Denver’s major arterials, this property features a 12’x14’ drive-in overhead door, a spacious warehouse, and an estimated 25% office space. With in-suite restrooms, mezzanine space (not included in the square footage), and I-2 zoning, this locally owned and managed property is ideal for businesses seeking convenience and connectivity, complemented by nearby off-street paved bike trails and the US36 Bikeway. - 13,397 SF light industrial space - Loading: 12’x14’ drive-in overhead door - Clear Height: 20-24 feet - Electrical Power: 200amps/3phase (TBV) - Fire Sprinklers: ESFR - Approximately 25% office space - Large open warehouse area - In-suite restrooms - Mezzanine space for additional storage or offices (not included in the square footage) - High visibility from US36 - Strategic access to North Metro Denver arterials - Proximity to off-street paved bike trail and US36 Bikeway - I-2 zoning for flexible use - Locally owned and managed
- Le taux de location ne comprend pas les services publics, les services de bâtiment ou les dépenses immobilières.
- 1 accès plain-pied
| Espace | Taille | Terme | Taux de location | Utilisation de l’espace | Aménagement | Disponible |
| 1er étage - 2750A | 13 397 pi² | Négociable | 11,24 $ CAD/pi²/an 0,94 $ CAD/pi²/mois 150 553 $ CAD/an 12 546 $ CAD/mois | Industriel | construction partielle | Maintenant |
1er étage - 2750A
| Taille |
| 13 397 pi² |
| Terme |
| Négociable |
| Taux de location |
| 11,24 $ CAD/pi²/an 0,94 $ CAD/pi²/mois 150 553 $ CAD/an 12 546 $ CAD/mois |
| Utilisation de l’espace |
| Industriel |
| Aménagement |
| construction partielle |
| Disponible |
| Maintenant |
1er étage - 2750A
| Taille | 13 397 pi² |
| Terme | Négociable |
| Taux de location | 11,24 $ CAD/pi²/an |
| Utilisation de l’espace | Industriel |
| Aménagement | construction partielle |
| Disponible | Maintenant |
Welcome to 2750 Industrial Lane, Broomfield, CO 80020, a premier light industrial space for lease offering 13,397 square feet of versatile functionality. Strategically located with high visibility from US36 and easy access to North Metro Denver’s major arterials, this property features a 12’x14’ drive-in overhead door, a spacious warehouse, and an estimated 25% office space. With in-suite restrooms, mezzanine space (not included in the square footage), and I-2 zoning, this locally owned and managed property is ideal for businesses seeking convenience and connectivity, complemented by nearby off-street paved bike trails and the US36 Bikeway. - 13,397 SF light industrial space - Loading: 12’x14’ drive-in overhead door - Clear Height: 20-24 feet - Electrical Power: 200amps/3phase (TBV) - Fire Sprinklers: ESFR - Approximately 25% office space - Large open warehouse area - In-suite restrooms - Mezzanine space for additional storage or offices (not included in the square footage) - High visibility from US36 - Strategic access to North Metro Denver arterials - Proximity to off-street paved bike trail and US36 Bikeway - I-2 zoning for flexible use - Locally owned and managed
- Le taux de location ne comprend pas les services publics, les services de bâtiment ou les dépenses immobilières.
- 1 accès plain-pied
Aperçu de la propriété
L'espace est doté d'une entrée et d'une porte de quai haute. Nouvellement rénové Nouvel éclairage à DEL Évier de véglateur 208v triphasé. 480v triphasé peut relativement facilement être amené dans l'espace. Il est en construction Il renvoie à l'US 36 avec quelques affiches pour nous 36.
Faits sur la propriété
Présenté par
2750-2790 Industrial Ln
Hmm, il semble y avoir eu une erreur lors de l’envoi de votre message. Veuillez réessayer.
Merci! Votre message a été envoyé.






