Votre courriel a été envoyé.
Building 2 27800 Medical Center Rd 1 187–40 586 pi² d'espace disponible • Bureau/Médical • Mission Viejo, CA 92691


Certaines informations ont été traduites automatiquement.
Faits saillants
- Located on the Providence Mission Hospital campus, offering immediate access to hospital services and strong referral networks.
- Convenient access to I-5 and SR-73, serving Mission Viejo, Laguna Niguel, Aliso Viejo, and surrounding communities.
Tous les espaces disponibles(12)
Afficher les taux de location en
- Espace
- Taille
- Terme
- Taux de location
- Utilisation de l’espace
- Aménagement
- Disponible
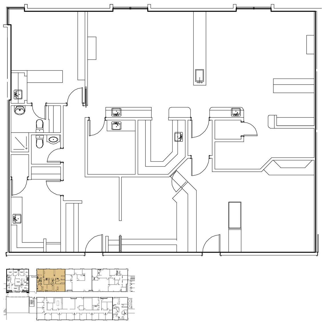
BUILDING 2 Suite 126 Spec Suite • Space Available: 2,850 SF - 7,124 SF • Lease Rate: Call broker for details • Lease Type: Call broker for details • Suite Description: 15 Exam Rooms. 5 Doctor’s Offices. 3 Nurse’s Stations. Lab. Breakroom. 4 In-Suite Restrooms. Procedure Room. 2 Soiled Holding Closets. 2 Clean Supply Closets. Waiting Room. Reception/Admin. Floor Plan: https://medwestrealty.com/wp-content/uploads/2025/02/MW_Mission-Medical_27800-Medical-Center-Dr_Ste-126.png Virtual Tour: https://view.beyondview.com/aYfgCRVfqXxzHyUckKjM/gallery/0,0,0,0,0.00 Beyond View: https://view.beyondview.com/aYfgCRVfqXxzHyUckKjM/home
- Disposition du plan d’étage ouverte en général
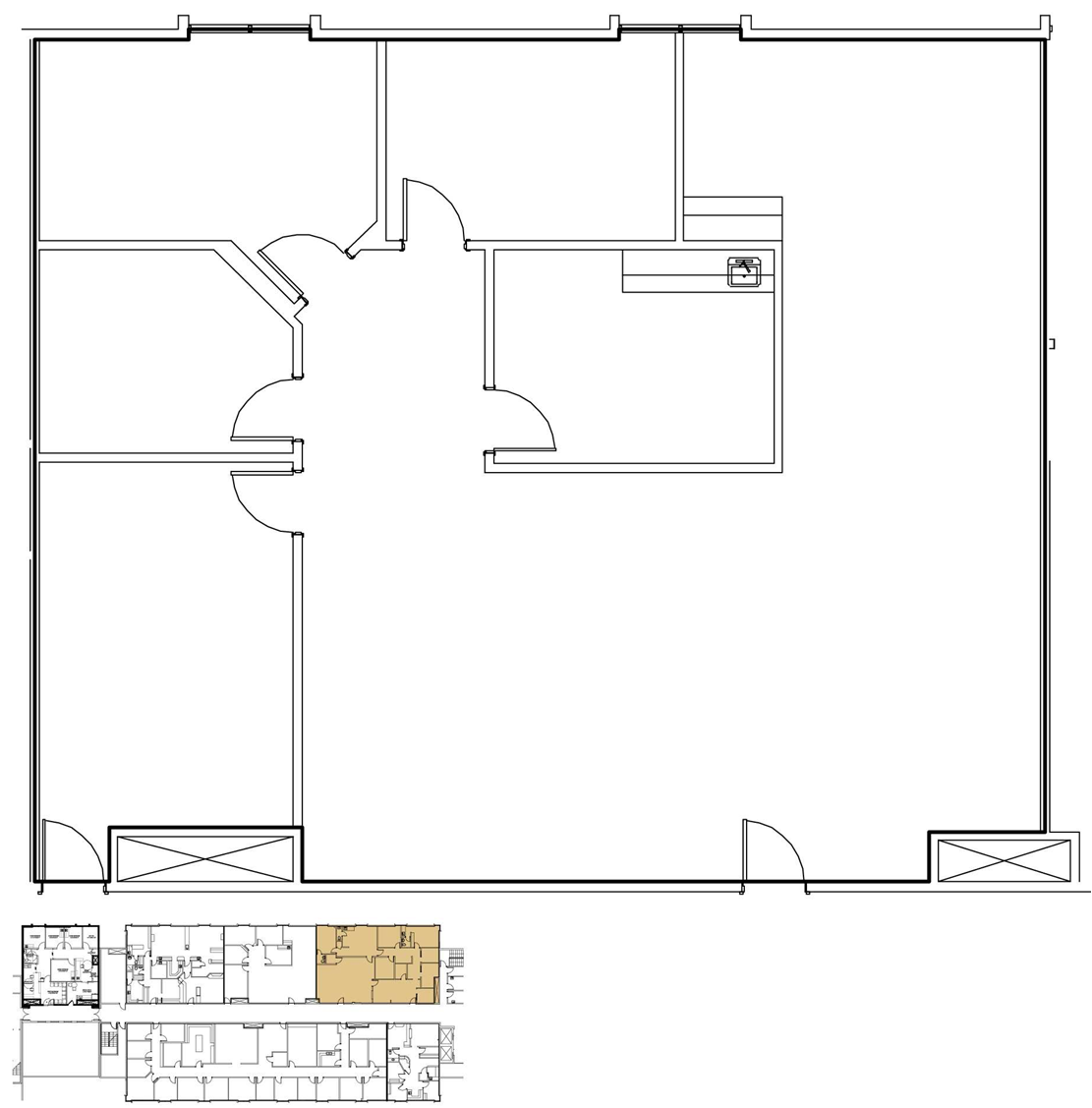
BUILDING 2 Suite 130-138 • Space Available: 5000 SF - 7,160 SF • Lease Rate: Call broker for details • Lease Type: Call broker for details • Suite Description: Call For Details Floor Plan: https://medwestrealty.com/wp-content/uploads/2025/02/27800-MOB-2-Ste-130-138-7160-RSF.jpg
- Partiellement construit comme Espace médical standard
- Disposition du plan d’étage ouverte en général
BUILDING 2 Suite 222 (Contiguous up to 7,109 RSF) • Space Available: 3,221 SF • Lease Rate: Call broker for details • Lease Type: Call broker for details • Suite Description: Contiguous with Suites 226 & 230 up to 7,109 RSF. Floor Plan: https://medwestrealty.com/wp-content/uploads/2025/02/27800-MOB-2-Ste-222-3221-RSF.jpg
- Entièrement construit comme Espace médical standard
- Peut être associé à un ou plusieurs espaces supplémentaires pour obtenir jusqu’à 7 109 pi² d’espace adjacent.
- Disposition du plan d’étage ouverte en général
BUILDING 2 Suite 226 (Contiguous up to 7,109 RSF) • Space Available: 2,259 SF • Lease Rate: Call broker for details • Lease Type: Call broker for details • Suite Description: Contiguous with Suites 222 & 230 up to 7,109 RSF. Waiting Room. Reception/Admin. 2 Private Offices. 5 Exam Rooms. 2 In-Suite Restrooms. Staff Office. Floor Plan: https://medwestrealty.com/wp-content/uploads/2025/02/27800-MOB-2-Ste-226-2259-RSF.jpg
- Entièrement construit comme Espace médical standard
- Peut être associé à un ou plusieurs espaces supplémentaires pour obtenir jusqu’à 7 109 pi² d’espace adjacent.
- Disposition du plan d’étage ouverte en général
BUILDING 2 Suite 230 (Contiguous up to 7,109 RSF) • Space Available: 1,629 SF • Lease Rate: Call broker for details • Lease Type: Call broker for details • Suite Description: Contiguous with Suites 222 & 226 up to 7,109 RSF. Waiting Room. Reception/Admin. 4 In-Suite Restrooms. 5 Exam Rooms. 1 Private Office. Storage. Lab. Floor Plan: https://medwestrealty.com/wp-content/uploads/2025/02/27800-MOB-2-Ste-230-1629-RSF.jpg
- Entièrement construit comme Espace médical standard
- Peut être associé à un ou plusieurs espaces supplémentaires pour obtenir jusqu’à 7 109 pi² d’espace adjacent.
- Disposition du plan d’étage ouverte en général
BUILDING 2 Suite 238 (Contiguous up to 9,222 RSF) • Space Available: 1,755 SF • Lease Rate: Call broker for details • Lease Type: Call broker for details • Suite Description: Contiguous with Suite 240/244 up to 9,222 RSF. Floor Plan: https://medwestrealty.com/wp-content/uploads/2025/02/27800-MOB-2-Ste-238-1755-RSF.jpg
- Entièrement construit comme Espace médical standard
- Peut être associé à un ou plusieurs espaces supplémentaires pour obtenir jusqu’à 9 222 pi² d’espace adjacent.
- Disposition du plan d’étage ouverte en général
BUILDING 2 Suite 240/244 (Contiguous up to 9,222 RSF) • Space Available: 7,467 SF • Lease Rate: Call broker for details • Lease Type: Call broker for details • Suite Description: Contiguous with Suite 238 up to 9,222 RSF. Floor Plan: https://medwestrealty.com/wp-content/uploads/2025/02/27800-MOB-2-Ste-240-244-7467-RSF.jpg
- Entièrement construit comme Espace médical standard
- Peut être associé à un ou plusieurs espaces supplémentaires pour obtenir jusqu’à 9 222 pi² d’espace adjacent.
- Disposition du plan d’étage ouverte en général
BUILDING 2 Suite 322 • Space Available: 1,187 SF • Lease Rate: Call broker for details • Lease Type: Call broker for details • Suite Description: Call For Details Floor Plan: https://medwestrealty.com/wp-content/uploads/2025/02/27800-MOB-2-Ste-322-1187-RSF.jpg
- Entièrement construit comme Espace médical standard
- Disposition du plan d’étage ouverte en général
BUILDING 2 Suite 328 Spec Suite • Space Available: 1,691 SF • Lease Rate: Call broker for details • Lease Type: Call broker for details • Suite Description: Spec Suite. Waiting Room /Reception. 4 Exam Rooms. Nurse’s Station. Office. Breakroom. In-Suite Restroom. Floor Plan: https://medwestrealty.com/wp-content/uploads/2025/02/MOB-2-Suite-328-1691-SF.jpg Virtual Tour: https://my.matterport.com/show/?m=bfJrWnLTsFT
- Disposition du plan d’étage ouverte en général
BUILDING 2 Suite 332 (Contiguous up to 7,093 RSF) • Space Available: 2,239 SF • Lease Rate: Call broker for details • Lease Type: Call broker for details • Suite Description: Contiguous with Suites 334 & 340-342 up to 7,093 RSF. Floor Plan: https://medwestrealty.com/wp-content/uploads/2025/02/MW_Mission-Medical_27800-Medical-Center-Dr_Ste-322.png
- Entièrement construit comme Espace médical standard
- Peut être associé à un ou plusieurs espaces supplémentaires pour obtenir jusqu’à 7 093 pi² d’espace adjacent.
- Disposition du plan d’étage ouverte en général
BUILDING 2 Suite 334 (Contiguous up to 7,093 RSF) • Space Available: 2,077 SF • Lease Rate: Call broker for details • Lease Type: Call broker for details • Suite Description: Contiguous with Suites 332 & 340-342 up to 7,093 RSF. Floor Plan: https://medwestrealty.com/wp-content/uploads/2025/02/27800-MOB-2-Ste-334-2077-RSF.jpg
- Entièrement construit comme Espace médical standard
- Peut être associé à un ou plusieurs espaces supplémentaires pour obtenir jusqu’à 7 093 pi² d’espace adjacent.
- Disposition du plan d’étage ouverte en général
BUILDING 2 Suite 340-342 (Contiguous up to 7,093 RSF) • Space Available: 2,777 SF • Lease Rate: Call broker for details • Lease Type: Call broker for details • Suite Description: Contiguous with Suites 332 & 334 up to 7,093 RSF. Floor Plan: https://medwestrealty.com/wp-content/uploads/2025/02/MW_Mission-Medical_27800-Medical-Center-Dr_Ste-340-342.png
- Entièrement construit comme Espace médical standard
- Peut être associé à un ou plusieurs espaces supplémentaires pour obtenir jusqu’à 7 093 pi² d’espace adjacent.
- Disposition du plan d’étage ouverte en général
| Espace | Taille | Terme | Taux de location | Utilisation de l’espace | Aménagement | Disponible |
| 1er étage, ste 126 | 2 850 à 7 124 pi² | Négociable | Sur demande Sur demande Sur demande Sur demande | Bureau/Médical | selon spécifications | Maintenant |
| 1er étage, ste 130 - 138 | 5 000 à 7 160 pi² | Négociable | Sur demande Sur demande Sur demande Sur demande | Bureau/Médical | construction partielle | Maintenant |
| 2e étage, ste 222 | 3 221 pi² | Négociable | Sur demande Sur demande Sur demande Sur demande | Bureau/Médical | construction complète | Maintenant |
| 2e étage, ste 226 | 2 259 pi² | Négociable | Sur demande Sur demande Sur demande Sur demande | Bureau/Médical | construction complète | Maintenant |
| 2e étage, ste 230 | 1 629 pi² | Négociable | Sur demande Sur demande Sur demande Sur demande | Bureau/Médical | construction complète | Maintenant |
| 2e étage, ste 238 | 1 755 pi² | Négociable | Sur demande Sur demande Sur demande Sur demande | Bureau/Médical | construction complète | Maintenant |
| 2e étage, ste 240-244 | 7 467 pi² | Négociable | Sur demande Sur demande Sur demande Sur demande | Bureau/Médical | construction complète | Maintenant |
| 3e étage, ste 322 | 1 187 pi² | Négociable | Sur demande Sur demande Sur demande Sur demande | Bureau/Médical | construction complète | Maintenant |
| 3e étage, ste 328 | 1 691 pi² | Négociable | Sur demande Sur demande Sur demande Sur demande | Bureau/Médical | selon spécifications | Maintenant |
| 3e étage, ste 332 | 2 239 pi² | Négociable | Sur demande Sur demande Sur demande Sur demande | Bureau/Médical | construction complète | Maintenant |
| 3e étage, ste 334 | 2 077 pi² | Négociable | Sur demande Sur demande Sur demande Sur demande | Bureau/Médical | construction complète | Maintenant |
| 3e étage, ste 340-342 | 2 777 pi² | Négociable | Sur demande Sur demande Sur demande Sur demande | Bureau/Médical | construction complète | Maintenant |
1er étage, ste 126
| Taille |
| 2 850 à 7 124 pi² |
| Terme |
| Négociable |
| Taux de location |
| Sur demande Sur demande Sur demande Sur demande |
| Utilisation de l’espace |
| Bureau/Médical |
| Aménagement |
| selon spécifications |
| Disponible |
| Maintenant |
1er étage, ste 130 - 138
| Taille |
| 5 000 à 7 160 pi² |
| Terme |
| Négociable |
| Taux de location |
| Sur demande Sur demande Sur demande Sur demande |
| Utilisation de l’espace |
| Bureau/Médical |
| Aménagement |
| construction partielle |
| Disponible |
| Maintenant |
2e étage, ste 222
| Taille |
| 3 221 pi² |
| Terme |
| Négociable |
| Taux de location |
| Sur demande Sur demande Sur demande Sur demande |
| Utilisation de l’espace |
| Bureau/Médical |
| Aménagement |
| construction complète |
| Disponible |
| Maintenant |
2e étage, ste 226
| Taille |
| 2 259 pi² |
| Terme |
| Négociable |
| Taux de location |
| Sur demande Sur demande Sur demande Sur demande |
| Utilisation de l’espace |
| Bureau/Médical |
| Aménagement |
| construction complète |
| Disponible |
| Maintenant |
2e étage, ste 230
| Taille |
| 1 629 pi² |
| Terme |
| Négociable |
| Taux de location |
| Sur demande Sur demande Sur demande Sur demande |
| Utilisation de l’espace |
| Bureau/Médical |
| Aménagement |
| construction complète |
| Disponible |
| Maintenant |
2e étage, ste 238
| Taille |
| 1 755 pi² |
| Terme |
| Négociable |
| Taux de location |
| Sur demande Sur demande Sur demande Sur demande |
| Utilisation de l’espace |
| Bureau/Médical |
| Aménagement |
| construction complète |
| Disponible |
| Maintenant |
2e étage, ste 240-244
| Taille |
| 7 467 pi² |
| Terme |
| Négociable |
| Taux de location |
| Sur demande Sur demande Sur demande Sur demande |
| Utilisation de l’espace |
| Bureau/Médical |
| Aménagement |
| construction complète |
| Disponible |
| Maintenant |
3e étage, ste 322
| Taille |
| 1 187 pi² |
| Terme |
| Négociable |
| Taux de location |
| Sur demande Sur demande Sur demande Sur demande |
| Utilisation de l’espace |
| Bureau/Médical |
| Aménagement |
| construction complète |
| Disponible |
| Maintenant |
3e étage, ste 328
| Taille |
| 1 691 pi² |
| Terme |
| Négociable |
| Taux de location |
| Sur demande Sur demande Sur demande Sur demande |
| Utilisation de l’espace |
| Bureau/Médical |
| Aménagement |
| selon spécifications |
| Disponible |
| Maintenant |
3e étage, ste 332
| Taille |
| 2 239 pi² |
| Terme |
| Négociable |
| Taux de location |
| Sur demande Sur demande Sur demande Sur demande |
| Utilisation de l’espace |
| Bureau/Médical |
| Aménagement |
| construction complète |
| Disponible |
| Maintenant |
3e étage, ste 334
| Taille |
| 2 077 pi² |
| Terme |
| Négociable |
| Taux de location |
| Sur demande Sur demande Sur demande Sur demande |
| Utilisation de l’espace |
| Bureau/Médical |
| Aménagement |
| construction complète |
| Disponible |
| Maintenant |
3e étage, ste 340-342
| Taille |
| 2 777 pi² |
| Terme |
| Négociable |
| Taux de location |
| Sur demande Sur demande Sur demande Sur demande |
| Utilisation de l’espace |
| Bureau/Médical |
| Aménagement |
| construction complète |
| Disponible |
| Maintenant |
1er étage, ste 126
| Taille | 2 850 à 7 124 pi² |
| Terme | Négociable |
| Taux de location | Sur demande |
| Utilisation de l’espace | Bureau/Médical |
| Aménagement | selon spécifications |
| Disponible | Maintenant |
BUILDING 2 Suite 126 Spec Suite • Space Available: 2,850 SF - 7,124 SF • Lease Rate: Call broker for details • Lease Type: Call broker for details • Suite Description: 15 Exam Rooms. 5 Doctor’s Offices. 3 Nurse’s Stations. Lab. Breakroom. 4 In-Suite Restrooms. Procedure Room. 2 Soiled Holding Closets. 2 Clean Supply Closets. Waiting Room. Reception/Admin. Floor Plan: https://medwestrealty.com/wp-content/uploads/2025/02/MW_Mission-Medical_27800-Medical-Center-Dr_Ste-126.png Virtual Tour: https://view.beyondview.com/aYfgCRVfqXxzHyUckKjM/gallery/0,0,0,0,0.00 Beyond View: https://view.beyondview.com/aYfgCRVfqXxzHyUckKjM/home
- Disposition du plan d’étage ouverte en général
1er étage, ste 130 - 138
| Taille | 5 000 à 7 160 pi² |
| Terme | Négociable |
| Taux de location | Sur demande |
| Utilisation de l’espace | Bureau/Médical |
| Aménagement | construction partielle |
| Disponible | Maintenant |
BUILDING 2 Suite 130-138 • Space Available: 5000 SF - 7,160 SF • Lease Rate: Call broker for details • Lease Type: Call broker for details • Suite Description: Call For Details Floor Plan: https://medwestrealty.com/wp-content/uploads/2025/02/27800-MOB-2-Ste-130-138-7160-RSF.jpg
- Partiellement construit comme Espace médical standard
- Disposition du plan d’étage ouverte en général
2e étage, ste 222
| Taille | 3 221 pi² |
| Terme | Négociable |
| Taux de location | Sur demande |
| Utilisation de l’espace | Bureau/Médical |
| Aménagement | construction complète |
| Disponible | Maintenant |
BUILDING 2 Suite 222 (Contiguous up to 7,109 RSF) • Space Available: 3,221 SF • Lease Rate: Call broker for details • Lease Type: Call broker for details • Suite Description: Contiguous with Suites 226 & 230 up to 7,109 RSF. Floor Plan: https://medwestrealty.com/wp-content/uploads/2025/02/27800-MOB-2-Ste-222-3221-RSF.jpg
- Entièrement construit comme Espace médical standard
- Disposition du plan d’étage ouverte en général
- Peut être associé à un ou plusieurs espaces supplémentaires pour obtenir jusqu’à 7 109 pi² d’espace adjacent.
2e étage, ste 226
| Taille | 2 259 pi² |
| Terme | Négociable |
| Taux de location | Sur demande |
| Utilisation de l’espace | Bureau/Médical |
| Aménagement | construction complète |
| Disponible | Maintenant |
BUILDING 2 Suite 226 (Contiguous up to 7,109 RSF) • Space Available: 2,259 SF • Lease Rate: Call broker for details • Lease Type: Call broker for details • Suite Description: Contiguous with Suites 222 & 230 up to 7,109 RSF. Waiting Room. Reception/Admin. 2 Private Offices. 5 Exam Rooms. 2 In-Suite Restrooms. Staff Office. Floor Plan: https://medwestrealty.com/wp-content/uploads/2025/02/27800-MOB-2-Ste-226-2259-RSF.jpg
- Entièrement construit comme Espace médical standard
- Disposition du plan d’étage ouverte en général
- Peut être associé à un ou plusieurs espaces supplémentaires pour obtenir jusqu’à 7 109 pi² d’espace adjacent.
2e étage, ste 230
| Taille | 1 629 pi² |
| Terme | Négociable |
| Taux de location | Sur demande |
| Utilisation de l’espace | Bureau/Médical |
| Aménagement | construction complète |
| Disponible | Maintenant |
BUILDING 2 Suite 230 (Contiguous up to 7,109 RSF) • Space Available: 1,629 SF • Lease Rate: Call broker for details • Lease Type: Call broker for details • Suite Description: Contiguous with Suites 222 & 226 up to 7,109 RSF. Waiting Room. Reception/Admin. 4 In-Suite Restrooms. 5 Exam Rooms. 1 Private Office. Storage. Lab. Floor Plan: https://medwestrealty.com/wp-content/uploads/2025/02/27800-MOB-2-Ste-230-1629-RSF.jpg
- Entièrement construit comme Espace médical standard
- Disposition du plan d’étage ouverte en général
- Peut être associé à un ou plusieurs espaces supplémentaires pour obtenir jusqu’à 7 109 pi² d’espace adjacent.
2e étage, ste 238
| Taille | 1 755 pi² |
| Terme | Négociable |
| Taux de location | Sur demande |
| Utilisation de l’espace | Bureau/Médical |
| Aménagement | construction complète |
| Disponible | Maintenant |
BUILDING 2 Suite 238 (Contiguous up to 9,222 RSF) • Space Available: 1,755 SF • Lease Rate: Call broker for details • Lease Type: Call broker for details • Suite Description: Contiguous with Suite 240/244 up to 9,222 RSF. Floor Plan: https://medwestrealty.com/wp-content/uploads/2025/02/27800-MOB-2-Ste-238-1755-RSF.jpg
- Entièrement construit comme Espace médical standard
- Disposition du plan d’étage ouverte en général
- Peut être associé à un ou plusieurs espaces supplémentaires pour obtenir jusqu’à 9 222 pi² d’espace adjacent.
2e étage, ste 240-244
| Taille | 7 467 pi² |
| Terme | Négociable |
| Taux de location | Sur demande |
| Utilisation de l’espace | Bureau/Médical |
| Aménagement | construction complète |
| Disponible | Maintenant |
BUILDING 2 Suite 240/244 (Contiguous up to 9,222 RSF) • Space Available: 7,467 SF • Lease Rate: Call broker for details • Lease Type: Call broker for details • Suite Description: Contiguous with Suite 238 up to 9,222 RSF. Floor Plan: https://medwestrealty.com/wp-content/uploads/2025/02/27800-MOB-2-Ste-240-244-7467-RSF.jpg
- Entièrement construit comme Espace médical standard
- Disposition du plan d’étage ouverte en général
- Peut être associé à un ou plusieurs espaces supplémentaires pour obtenir jusqu’à 9 222 pi² d’espace adjacent.
3e étage, ste 322
| Taille | 1 187 pi² |
| Terme | Négociable |
| Taux de location | Sur demande |
| Utilisation de l’espace | Bureau/Médical |
| Aménagement | construction complète |
| Disponible | Maintenant |
BUILDING 2 Suite 322 • Space Available: 1,187 SF • Lease Rate: Call broker for details • Lease Type: Call broker for details • Suite Description: Call For Details Floor Plan: https://medwestrealty.com/wp-content/uploads/2025/02/27800-MOB-2-Ste-322-1187-RSF.jpg
- Entièrement construit comme Espace médical standard
- Disposition du plan d’étage ouverte en général
3e étage, ste 328
| Taille | 1 691 pi² |
| Terme | Négociable |
| Taux de location | Sur demande |
| Utilisation de l’espace | Bureau/Médical |
| Aménagement | selon spécifications |
| Disponible | Maintenant |
BUILDING 2 Suite 328 Spec Suite • Space Available: 1,691 SF • Lease Rate: Call broker for details • Lease Type: Call broker for details • Suite Description: Spec Suite. Waiting Room /Reception. 4 Exam Rooms. Nurse’s Station. Office. Breakroom. In-Suite Restroom. Floor Plan: https://medwestrealty.com/wp-content/uploads/2025/02/MOB-2-Suite-328-1691-SF.jpg Virtual Tour: https://my.matterport.com/show/?m=bfJrWnLTsFT
- Disposition du plan d’étage ouverte en général
3e étage, ste 332
| Taille | 2 239 pi² |
| Terme | Négociable |
| Taux de location | Sur demande |
| Utilisation de l’espace | Bureau/Médical |
| Aménagement | construction complète |
| Disponible | Maintenant |
BUILDING 2 Suite 332 (Contiguous up to 7,093 RSF) • Space Available: 2,239 SF • Lease Rate: Call broker for details • Lease Type: Call broker for details • Suite Description: Contiguous with Suites 334 & 340-342 up to 7,093 RSF. Floor Plan: https://medwestrealty.com/wp-content/uploads/2025/02/MW_Mission-Medical_27800-Medical-Center-Dr_Ste-322.png
- Entièrement construit comme Espace médical standard
- Disposition du plan d’étage ouverte en général
- Peut être associé à un ou plusieurs espaces supplémentaires pour obtenir jusqu’à 7 093 pi² d’espace adjacent.
3e étage, ste 334
| Taille | 2 077 pi² |
| Terme | Négociable |
| Taux de location | Sur demande |
| Utilisation de l’espace | Bureau/Médical |
| Aménagement | construction complète |
| Disponible | Maintenant |
BUILDING 2 Suite 334 (Contiguous up to 7,093 RSF) • Space Available: 2,077 SF • Lease Rate: Call broker for details • Lease Type: Call broker for details • Suite Description: Contiguous with Suites 332 & 340-342 up to 7,093 RSF. Floor Plan: https://medwestrealty.com/wp-content/uploads/2025/02/27800-MOB-2-Ste-334-2077-RSF.jpg
- Entièrement construit comme Espace médical standard
- Disposition du plan d’étage ouverte en général
- Peut être associé à un ou plusieurs espaces supplémentaires pour obtenir jusqu’à 7 093 pi² d’espace adjacent.
3e étage, ste 340-342
| Taille | 2 777 pi² |
| Terme | Négociable |
| Taux de location | Sur demande |
| Utilisation de l’espace | Bureau/Médical |
| Aménagement | construction complète |
| Disponible | Maintenant |
BUILDING 2 Suite 340-342 (Contiguous up to 7,093 RSF) • Space Available: 2,777 SF • Lease Rate: Call broker for details • Lease Type: Call broker for details • Suite Description: Contiguous with Suites 332 & 334 up to 7,093 RSF. Floor Plan: https://medwestrealty.com/wp-content/uploads/2025/02/MW_Mission-Medical_27800-Medical-Center-Dr_Ste-340-342.png
- Entièrement construit comme Espace médical standard
- Disposition du plan d’étage ouverte en général
- Peut être associé à un ou plusieurs espaces supplémentaires pour obtenir jusqu’à 7 093 pi² d’espace adjacent.
Aperçu de la propriété
Mission Medical-Upper Campus: Building 1 & 2 27800 Medical Center Road, Mission Viejo, CA 92691 Mission Medical is ideally situated atop the Providence Mission Hospital campus. This medical office building features convenient surface parking, outdoor break areas, and newly remodeled common areas, enhancing both accessibility and comfort for tenants and patients alike. The building features recent common area renovations for an enhanced patient and provider experience. With immediate access to I-5 and SR 73, the property ensures seamless connectivity for patients traveling from Mission Viejo, Laguna Niguel, Aliso Viejo, and surrounding communities. Located in a highly affluent area with a strong patient base, it presents an excellent opportunity for healthcare providers seeking to establish or expand their presence in one of South Orange County’s most desirable medical office markets. ------------------------ Property Features: PROMINENT LOCATION & ACCESSIBILITY • Minutes from I-5 and SR 73 • On campus and walking distance to Providence Mission Hospital and CHOC at Mission Viejo • Proximity to retail amenities including the Shops at Mission Viejo IDEAL MARKET AND SITE LOCATION • The proximity to major throughfares enables this location to conveniently serve: • 643,000 patients within a 15 minute drive time • 307,000 patients within a 5 mile radius BUILDING HIGHLIGHTS • MOBs 1 & 2 total 104,828 SF – connected 3 story medical outpatient buildings • Rare opportunity for ground floor and large user opportunities in the market • Recent common area renovations • Strong tenant mix including on site pharmacy and lab • Turnkey and spec suites available • Surface and structured parking • Under new ownership and professional management with HEALTHCARE REALTY
- Gestionnaire d'immeuble sur place
Faits sur la propriété
Présenté par
Building 2 | 27800 Medical Center Rd
Hmm, il semble y avoir eu une erreur lors de l’envoi de votre message. Veuillez réessayer.
Merci! Votre message a été envoyé.
























