Se Connecter/S’inscrire
Votre courriel a été envoyé.
28 Church Street 28 Church St 2 576 pi² 100% Loué Bureau Immeuble Alfred, NY 14802 204 921 $ CAD (79,55 $ CAD/pi²)



Certaines informations ont été traduites automatiquement.
Faits saillants de l'investissement
- Grande façade sur le chemin Church
- À distance de marche de l'Université Alfred.
Résumé de l'annonce
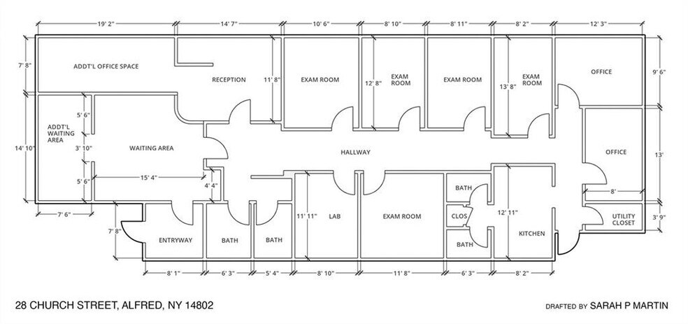
Situé au cœur du village d'Alfred, dans l'État de New York, le 28 Church est un cabinet médical professionnel depuis les années 1990. Cette propriété polyvalente offre un potentiel exceptionnel pour diverses utilisations, grâce à son emplacement privilégié et à son aménagement bien conçu. Le bâtiment comprend une grande salle d'attente, un bureau de réceptionniste dédié et de multiples espaces fonctionnels, dont cinq salles d'examen, un laboratoire, deux salles de bains pour les clients, deux salles de bains pour le personnel, un coin cuisine, deux bureaux et une buanderie. Équipée d'un chauffage central à air chaud et à air chaud, la propriété bénéficie également de raccordements publics à l'eau et aux égouts. La face arrière du toit a été mise à jour en 2012. Zonée B2 dans le village d'Alfred, cette propriété est disposée à des possibilités infinies, qu'il s'agisse d'un cabinet médical ou d'une adaptation à d'autres fins professionnelles ou communautaires. Il y a actuellement un bail actif sur la propriété. Le plan d'étage du bâtiment se trouve sous l'onglet Liste des pièces jointes.
Faits sur la propriété
Type de vente
Investissement ou propriétaire utilisateur
Type de propriété
Bureau
Sous-type de propriété
Taille du bâtiment
2 576 pi²
Classe d’immeuble
C
Année de construction
1989
Prix
204 921 $ CAD
Prix par pi²
79,55 $ CAD
Pourcentage loué
100%
Location
Multiples
Hauteur du bâtiment
1 étage
Superficie de plancher typique
2 576 pi²
Coefficient d’occupation des sols de l’immeuble
0,22
Taille du lot
0,27 AC
Zone de développement économique
Oui
Zonage
B2 - Business District
Stationnement
12 places (4,66 places par 1 000 pi² loué)
Commodités
- Réception
1 1
Impôts fonciers
| Numéro de lot | 022001-164-006-0001-011-000-0000 | Évaluation des bâtiments | 202 077 $ CAD |
| Évaluation du terrain | 5 455 $ CAD | Évaluation totale | 207 532 $ CAD |
Impôts fonciers
Numéro de lot
022001-164-006-0001-011-000-0000
Évaluation du terrain
5 455 $ CAD
Évaluation des bâtiments
202 077 $ CAD
Évaluation totale
207 532 $ CAD
1 de 20
Vidéos
Visite extérieure 3D Matterport
Visite 3D Matterport
Photos
Vue depuis la rue
Rue
Carte
1 de 1
Présenté par
28 Church Street | 28 Church St
Vous êtes déjà membre? Connectez-vous
Hmm, il semble y avoir eu une erreur lors de l’envoi de votre message. Veuillez réessayer.
Merci! Votre message a été envoyé.
