Votre courriel a été envoyé.
#7 - Blue Grouse Commercial Center 283 Snowy Mountain Cir 1 506–4 371 pi² d'espace disponible • Commerce de détail • Big Sky, MT 59716



Certaines informations ont été traduites automatiquement.
FAITS SAILLANTS
- Workforce housing available for center tenants.
- Nearby retailers include: Backcountry Safaris, Caliber Coffee Roasters, Gallatin Alpine Sports, Big Sky Print & Ship, & Santosha Wellness Center.
- Just 50 miles from the entrance to Yellowstone National Park
DISPONIBILITÉ DES ESPACES (2)
Afficher les taux de location en
- ESPACE
- TAILLE
- TERME
- TAUX DE LOCATION
- TYPE DE LOYER
| Espace | Taille | Terme | Taux de location | Type de loyer | ||
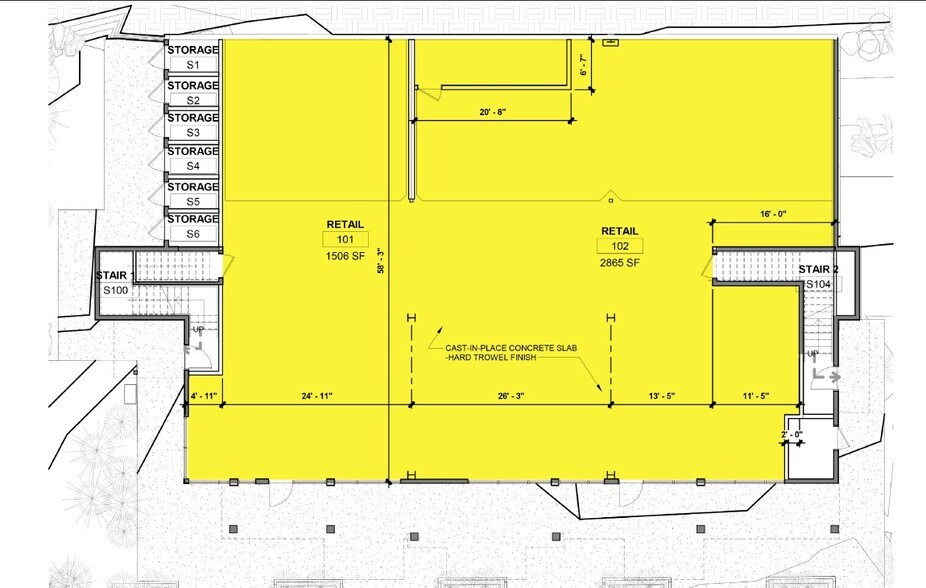
| 1er étage, ste Retail 101 | 1 506 pi² | Négociable | Sur demande Sur demande Sur demande Sur demande | À déterminer | ||
| 1er étage, ste Retail 102 | 2 865 pi² | Négociable | Sur demande Sur demande Sur demande Sur demande | À déterminer |
1er étage, ste Retail 101
Located on Snowy Mountain Circle in the heart of Big Sky, this commercial building offers a flexible layout ideal for a wide range of users—including retail, office, wellness, or medical concepts. Whether you’re a growing brand, professional service provider, or specialty operator, this adaptable building can be tailored to suit your needs. The retail units feature an open floor plan, high ceilings, and large windows that bring in natural light. It can be demised to accommodate multiple configurations, making it a great option for tenants seeking efficiency and customization. As an added benefit, workforce housing is available for tenant employees, while inventory lasts—an increasingly rare advantage in the Big Sky market.
- Partiellement construit comme Espace de commerce de détail standard
- Espace en excellent état
- Peut être associé à un ou plusieurs espaces supplémentaires pour obtenir jusqu’à 4 371 pi² d’espace adjacent.
- Climatisation centrale
- Espace en coin
- Entreposage sécurisé
- Storage units available
- New construction, open layout
- Adaptable retail or office space
1er étage, ste Retail 102
Located on Snowy Mountain Circle in the heart of Big Sky, this commercial building offers a flexible layout ideal for a wide range of users—including retail, office, wellness, or medical concepts. Whether you’re a growing brand, professional service provider, or specialty operator, this adaptable building can be tailored to suit your needs. The retail units feature an open floor plan, high ceilings, and large windows that bring in natural light. It can be demised to accommodate multiple configurations, making it a great option for tenants seeking efficiency and customization. As an added benefit, workforce housing is available for tenant employees, while inventory lasts—an increasingly rare advantage in the Big Sky market.
- Partiellement construit comme Espace de commerce de détail standard
- Espace en excellent état
- Peut être associé à un ou plusieurs espaces supplémentaires pour obtenir jusqu’à 4 371 pi² d’espace adjacent.
- Climatisation centrale
- Espace en coin
- Entreposage sécurisé
- Storage units available
- New construction, open layout
- Adaptable retail or office space
Types de loyers
Le type et le montant du loyer que le locataire (preneur) est tenu de payer au propriétaire (bailleur) sur la durée du bail sont négociés avant la signature du bail par les deux parties. Le type de loyer varie selon les services fournis. Par exemple, le prix d’un loyer hypernet est habituellement inférieur à celui d’un bail à service complet puisque le locataire est tenu d’assumer des dépenses additionnelles par rapport au loyer de base. Contactez le courtier inscripteur pour tout connaître sur les frais connexes et additionnels associés à chaque type de loyer.
1. Service complet: Un taux de location qui comprend des services standards liés à l’immeuble fournis par le propriétaire dans le cadre d’une location annuelle de base.
2. Loyer supernet: Le locataire paie seulement deux des frais de l’immeuble. Le propriétaire et le locataire déterminent ces frais spécifiques avant la signature du bail.
3. Loyer hypernet: Un bail en vertu duquel le locataire est responsable de tous les frais liés à sa part proportionnelle d’occupation de l’immeuble.
4. Brut modifié: Le loyer brut modifié désigne un type général de taux de location dans lequel le locataire est habituellement responsable de sa part proportionnelle d’un ou de plusieurs frais. C’est le propriétaire qui paie les frais restants. Considérez les structures tarifaires courantes suivantes applicables aux loyers bruts modifiés: 4. Plus les services: Un type de bail brut modifié suivant lequel le locataire est responsable de sa part proportionnelle des coûts des services publics, en plus du loyer. 4. Plus le nettoyage: Un type de bail brut modifié suivant lequel le locataire est responsable de sa part proportionnelle des coûts de nettoyage, en plus du loyer. 4. Plus l'électricité: Un type de bail brut modifié suivant lequel le locataire est responsable de sa part proportionnelle des coûts d’électricité, en plus du loyer. 4. Plus l’électricité et le nettoyage: Un type de bail brut modifié dans lequel le locataire est responsable de sa part proportionnelle des coûts d’électricité et de nettoyage, en plus du loyer. 4. Plus les services publics et le nettoyage: Un type de bail brut modifié dans lequel le locataire est responsable de sa part proportionnelle des coûts des services publics et de nettoyage, en plus du loyer. 4. Bail industriel brut: Un type de bail brut modifié dans lequel le locataire paie un ou plusieurs des frais, en plus du loyer. Le propriétaire et le locataire déterminent ces frais spécifiques avant la signature du bail.
5. L’électricité est à la charge du locataire: Le propriétaire paie pour tous les services et le locataire est responsable de sa propre utilisation de l’éclairage et des prises électriques dans l’espace qu’il occupe.
6. Négociable ou sur demande: Cette option est utilisée lorsque le contact de location ne précise pas le type de loyer ou de service.
7. À déterminer: À déterminer ; utilisé pour les immeubles dont le type de services ou de loyer n’est pas connu, souvent quand l’immeuble n’est pas encore construit.
FAITS SUR LA PROPRIÉTÉ
| Superficie totale disponible | 4 371 pi² | Superficie commerciale brute | 10 200 pi² |
| Type de propriété | Commerce de détail | Année de construction | 2025 |
| Sous-type de propriété | Bien à usage mixte | Ratio de stationnement | 1,57/1 000 pi² |
| Superficie totale disponible | 4 371 pi² |
| Type de propriété | Commerce de détail |
| Sous-type de propriété | Bien à usage mixte |
| Superficie commerciale brute | 10 200 pi² |
| Année de construction | 2025 |
| Ratio de stationnement | 1,57/1 000 pi² |
À PROPOS DE LA PROPRIÉTÉ
Located on Snowy Mountain Circle in the heart of Big Sky, this commercial building offers a flexible layout ideal for a wide range of users—including retail, office, wellness, or medical concepts. Whether you’re a growing brand, professional service provider, or specialty operator, this adaptable building can be tailored to suit your needs. The retail units feature an open floor plan, high ceilings, and large windows that bring in natural light.
- Lot de coin
- Affichage
- Espace d'entreposage
- Climatisation
Présenté par
#7 - Blue Grouse Commercial Center | 283 Snowy Mountain Cir
Hmm, il semble y avoir eu une erreur lors de l’envoi de votre message. Veuillez réessayer.
Merci! Votre message a été envoyé.



