Se Connecter/S’inscrire
Votre courriel a été envoyé.
285 Venture St 7 958 pi² Industriel Immeuble San Marcos, CA 92078 3 712 392 $ CAD (466,50 $ CAD/pi²)



Certaines informations ont été traduites automatiquement.
Résumé de l'annonce
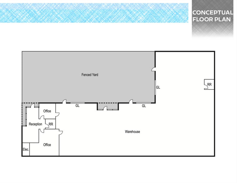
285 Venture Street offers an exceptional opportunity to acquire a well-positioned industrial building in the thriving San Marcos market. Spanning approximately 7,958 square feet, this property is designed for manufacturing and distribution users seeking heavy power and functional layout. The building features 800 amps of 3-phase power distributed throughout the warehouse, three grade-level loading doors, and a secure fenced yard for added operational flexibility.
The interior includes ±1,000 square feet of air-conditioned office space and a ±2,600 square foot bonus mezzanine, providing additional storage or workspace options. With 16-foot clear height, insulated ceilings, and multiple skylights, the warehouse ensures efficient operations and natural light. Zoned Industrial (I), the property supports a wide range of industrial uses.
Strategically located near Highway 78, the site offers excellent connectivity to major transportation routes and is in close proximity to CSU San Marcos and the North City development, enhancing access to labor and amenities. Offered at $2,700,000, this asset represents a strong opportunity for owner-users or investors seeking a functional industrial facility in a high-demand corridor.
The interior includes ±1,000 square feet of air-conditioned office space and a ±2,600 square foot bonus mezzanine, providing additional storage or workspace options. With 16-foot clear height, insulated ceilings, and multiple skylights, the warehouse ensures efficient operations and natural light. Zoned Industrial (I), the property supports a wide range of industrial uses.
Strategically located near Highway 78, the site offers excellent connectivity to major transportation routes and is in close proximity to CSU San Marcos and the North City development, enhancing access to labor and amenities. Offered at $2,700,000, this asset represents a strong opportunity for owner-users or investors seeking a functional industrial facility in a high-demand corridor.
Faits sur la propriété
| Prix | 3 712 392 $ CAD | Aire du bâtiment louable | 7 958 pi² |
| Prix par pi² | 466,50 $ CAD | Nombre d’étages | 1 |
| Type de vente | Propriétaire utilisateur | Année de construction | 1981 |
| Type de propriété | Industriel | Location | Unique |
| Sous-type de propriété | Manufacture | Ratio de stationnement | 1,51/1 000 pi² |
| Classe d’immeuble | C | Effacer hauteur du plafond | 16’ |
| Taille du lot | 0,36 AC | Nbre d’entrées dans les portes/au niveau du sol | 3 |
| Zonage | I | ||
| Prix | 3 712 392 $ CAD |
| Prix par pi² | 466,50 $ CAD |
| Type de vente | Propriétaire utilisateur |
| Type de propriété | Industriel |
| Sous-type de propriété | Manufacture |
| Classe d’immeuble | C |
| Taille du lot | 0,36 AC |
| Aire du bâtiment louable | 7 958 pi² |
| Nombre d’étages | 1 |
| Année de construction | 1981 |
| Location | Unique |
| Ratio de stationnement | 1,51/1 000 pi² |
| Effacer hauteur du plafond | 16’ |
| Nbre d’entrées dans les portes/au niveau du sol | 3 |
| Zonage | I |
Commodités
- Terrain clôturé
Services publics
- Eau - Ville
- Égout - Ville
1 1
Assez practicable à pied
40/100
Exceptionnellement facile d'accès en voiture
100/100
Bons transports en commun
70/100
Plutôt praticable en vélo
50/100
Impôts fonciers
| Numéro de lot | 220-201-80 | Évaluation des bâtiments | 1 064 491 $ CAD |
| Évaluation du terrain | 732 448 $ CAD | Évaluation totale | 1 796 939 $ CAD |
Impôts fonciers
Numéro de lot
220-201-80
Évaluation du terrain
732 448 $ CAD
Évaluation des bâtiments
1 064 491 $ CAD
Évaluation totale
1 796 939 $ CAD
1 de 12
Vidéos
Visite extérieure 3D Matterport
Visite 3D Matterport
Photos
Vue depuis la rue
Rue
Carte
1 de 1
Présenté par
285 Venture St
Vous êtes déjà membre? Connectez-vous
Hmm, il semble y avoir eu une erreur lors de l’envoi de votre message. Veuillez réessayer.
Merci! Votre message a été envoyé.
