Votre courriel a été envoyé.
MJM Plaza 2886 Tamiami Trl 3 276–4 652 pi² d'espace disponible • Bureau/Commerce de détail • Port Charlotte, FL 33952



Certaines informations ont été traduites automatiquement.
Tous les espaces disponibles(1)
Afficher les taux de location en
- Espace
- Taille
- Terme
- Taux de location
- Utilisation de l’espace
- État
- Disponible
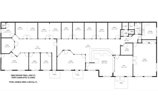
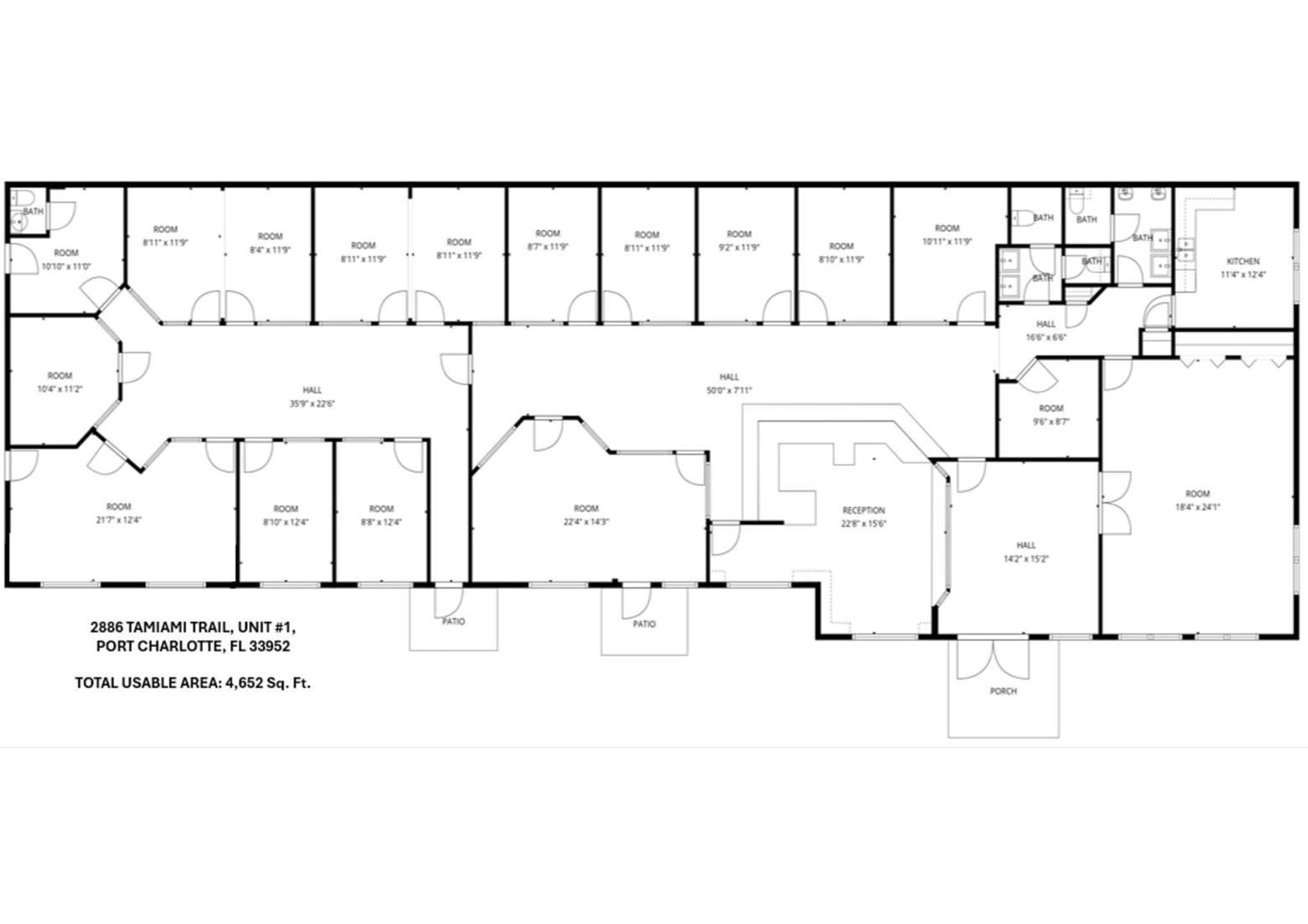
Suite #1 spans 4,652 square feet and is designed with a functional office layout. This spacious suite features a welcoming lobby/waiting room, a dedicated receptionist desk area, 10+ executive offices, two bathrooms, a kitchenette, and a private conference room, making it ideal for professional offices or service-based businesses needing a client-focused environment.
- Le taux inscrit peut ne pas comprendre certains services publics, les services de bâtiment et les dépenses immobilières.
- 1 salle de conférence
- Cuisine
- 13 bureaux privés
- Aire de réception
- Salle de bains privée
| Espace | Taille | Terme | Taux de location | Utilisation de l’espace | État | Disponible |
| 1er étage, ste #1 | 3 276 à 4 652 pi² | Négociable | 20,51 $ CAD/pi²/an 1,71 $ CAD/pi²/mois 95 405 $ CAD/an 7 950 $ CAD/mois | Bureau/Commerce de détail | construction complète | Maintenant |
1er étage, ste #1
| Taille |
| 3 276 à 4 652 pi² |
| Terme |
| Négociable |
| Taux de location |
| 20,51 $ CAD/pi²/an 1,71 $ CAD/pi²/mois 95 405 $ CAD/an 7 950 $ CAD/mois |
| Utilisation de l’espace |
| Bureau/Commerce de détail |
| État |
| construction complète |
| Disponible |
| Maintenant |
1er étage, ste #1
| Taille | 3 276 à 4 652 pi² |
| Terme | Négociable |
| Taux de location | 20,51 $ CAD/pi²/an |
| Utilisation de l’espace | Bureau/Commerce de détail |
| État | construction complète |
| Disponible | Maintenant |
Suite #1 spans 4,652 square feet and is designed with a functional office layout. This spacious suite features a welcoming lobby/waiting room, a dedicated receptionist desk area, 10+ executive offices, two bathrooms, a kitchenette, and a private conference room, making it ideal for professional offices or service-based businesses needing a client-focused environment.
- Le taux inscrit peut ne pas comprendre certains services publics, les services de bâtiment et les dépenses immobilières.
- 13 bureaux privés
- 1 salle de conférence
- Aire de réception
- Cuisine
- Salle de bains privée
Aperçu de la propriété
Cette propriété commerciale de premier plan s'étend sur 1,18 acre avec un grand stationnement sur place et comprend 14 277 pieds carrés d'espaces commerciaux et de bureaux flexibles répartis entre deux immeubles bien entretenus. Positionné directement sur le sentier Tamiami (US-41), l'une des artères les plus fréquentées et les plus importantes de Port Charlotte, ce site offre une excellente visibilité et une entrée et une sortie pratiques pour faciliter l'accès aux clients. À l'heure actuelle, cette propriété offre deux options de location contiguës dans un emplacement privilégié de Port Charlotte, qui peuvent être louées séparément ou combinées pour un total de 5 649 pieds carrés. La suite #1 s'étend sur 4 652 pieds carrés et est conçue avec un aménagement fonctionnel des bureaux. Cette suite spacieuse dispose d'un hall d'accueil/salle d'attente accueillant, d'un bureau réservé aux réceptionnistes, de deux salles de bains, d'une kitchenette et d'une salle de conférence privée, ce qui la rend idéale pour les bureaux professionnels ou les entreprises de services ayant besoin d'un environnement axé sur le client. La Suite #2 est un espace polyvalent de 997 pieds carrés avec un aménagement grand ouvert, parfait pour les opérations de vente au détail, de bureau ou de service nécessitant une flexibilité dans la conception. La suite comprend un petit bureau à l'arrière et une salle de bain, offrant des équipements essentiels tout en permettant un plan d'étage adaptable pour répondre à divers besoins professionnels.
- Affichage
Faits sur la propriété
Présenté par
MJM Plaza | 2886 Tamiami Trl
Hmm, il semble y avoir eu une erreur lors de l’envoi de votre message. Veuillez réessayer.
Merci! Votre message a été envoyé.



