Votre courriel a été envoyé.
Allied House 29-39 London Rd 2 104 pi² d'espace disponible • Commerce de détail • Twickenham TW1 3SZ


Certaines informations ont été traduites automatiquement.
Faits saillants
- Prominent High Street location
- Good public transport and road links
- Neighboured by mixture of retailers
Tous les espaces disponibles(1)
Afficher les taux de location en
- Espace
- Taille
- Terme
- Taux de location
- Utilisation de l’espace
- Aménagement
- Disponible
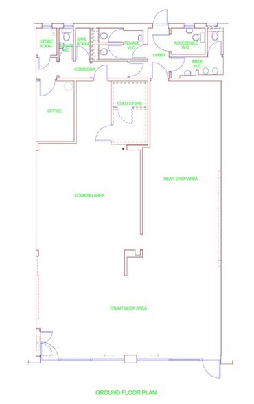
The unit is arranged over ground floor and is part of a terrace consisting of a double retail unit with offices and residential above. The property is in shell condition and has rear access.
- Classe d’utilisation : E
- Entreposage sécurisé
- Installations WC abandonnées
- Office and cold store
- Situé en ligne avec d’autres commerces de détail
- Cote de rendement énergétique - B
- Double fronted unit
- Rear access
| Espace | Taille | Terme | Taux de location | Utilisation de l’espace | Aménagement | Disponible |
| RDC, ste 33-35 | 2 104 pi² | Négociable | 70,44 $ CAD/pi²/an 5,87 $ CAD/pi²/mois 148 208 $ CAD/an 12 351 $ CAD/mois | Commerce de détail | espace cloisonné | Maintenant |
RDC, ste 33-35
| Taille |
| 2 104 pi² |
| Terme |
| Négociable |
| Taux de location |
| 70,44 $ CAD/pi²/an 5,87 $ CAD/pi²/mois 148 208 $ CAD/an 12 351 $ CAD/mois |
| Utilisation de l’espace |
| Commerce de détail |
| Aménagement |
| espace cloisonné |
| Disponible |
| Maintenant |
RDC, ste 33-35
| Taille | 2 104 pi² |
| Terme | Négociable |
| Taux de location | 148 208 $ CAD/an |
| Utilisation de l’espace | Commerce de détail |
| Aménagement | espace cloisonné |
| Disponible | Maintenant |
The unit is arranged over ground floor and is part of a terrace consisting of a double retail unit with offices and residential above. The property is in shell condition and has rear access.
- Classe d’utilisation : E
- Situé en ligne avec d’autres commerces de détail
- Entreposage sécurisé
- Cote de rendement énergétique - B
- Installations WC abandonnées
- Double fronted unit
- Office and cold store
- Rear access
Sélectionner des locataires
- Étage
- Nom du locataire
- Secteur
- 2ᵉ
- Guardian
- -
- REZ-DE-CHAUSSÉE
- Subway
- Hébergement et services alimentaires
- REZ-DE-CHAUSSÉE
- The Press Room
- Détaillant
Faits sur la propriété
Aperçu de la propriété
The property is located in the centre of Twickenham on London Road (A310) close to the junction with Holly Road. Numerous bus routes are available close by and Twickenham station is a two minute walk providing frequent rail services to London Waterloo and Richmond ( which has access to the District Line and Overground).
- Ligne d'autobus
- Affichage
- Éclairage accentué
- Cote de rendement énergétique - D
- Climatisation
- Système de plancher surélevé
Principaux détaillants à proximité
Présenté par
Allied House | 29-39 London Rd
Hmm, il semble y avoir eu une erreur lors de l’envoi de votre message. Veuillez réessayer.
Merci! Votre message a été envoyé.
