Votre courriel a été envoyé.
Certaines informations ont été traduites automatiquement.
Tous les espaces disponibles(1)
Afficher les taux de location en
- Espace
- Taille
- Terme
- Taux de location
- Utilisation de l’espace
- État
- Disponible
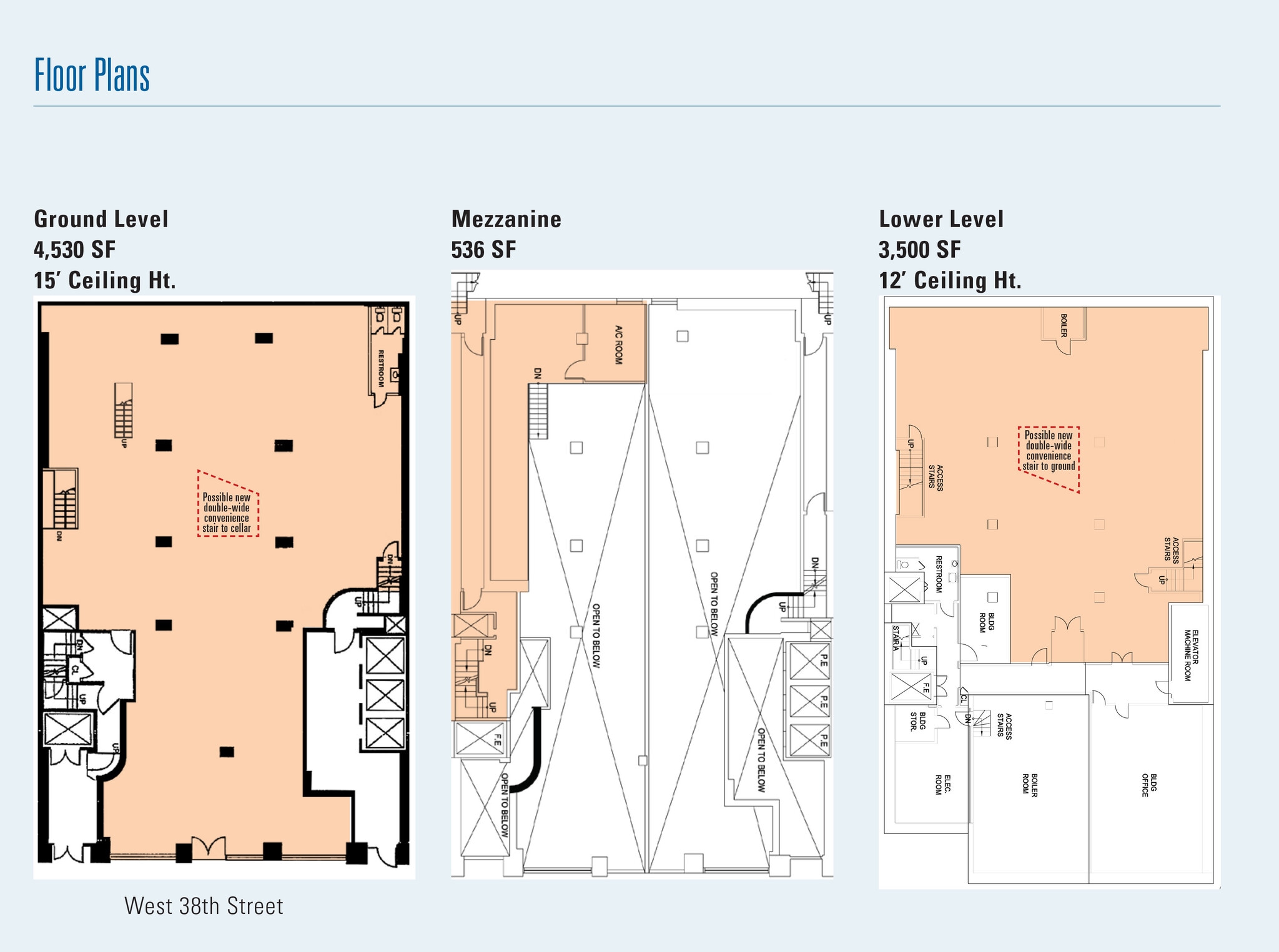
Steps from Bryant Park - Close to Major Midtown Transit Hubs - Plus 536 SF of mezzanine space and 3,500 SF of lower level space - Frontage: 58' along W 38th St - Ceiling Heights: Ground - 15' / Lower Level - 12 - All uses considered - currently Cooper Electric Supply Co. - Venting possible - food use considered - Possible new double-wide stair - Close to Times Square, Broadway’s Theatre District, and the Herald Square shopping corridor - Centrally located between Midtown’s major transit hubs providing walking distance access to 19 express and local subway lines as well as Grand Central Madison and Grand Central Terminal’s rail lines and Port Authority Bus Terminal
- Situé en ligne avec d’autres commerces de détail
- Close to Grand Central Madison, Port Authority Bus
- Close to Broadway's theatre district
- Close to multiple express & local subways
- Close to Herald Sq shopping corridor, Times Sq
| Espace | Taille | Terme | Taux de location | Utilisation de l’espace | État | Disponible |
| RDC | 4 530 pi² | Négociable | Sur demande Sur demande Sur demande Sur demande | Commerce de détail | - | 2026-05-15 |
RDC
| Taille |
| 4 530 pi² |
| Terme |
| Négociable |
| Taux de location |
| Sur demande Sur demande Sur demande Sur demande |
| Utilisation de l’espace |
| Commerce de détail |
| État |
| - |
| Disponible |
| 2026-05-15 |
RDC
| Taille | 4 530 pi² |
| Terme | Négociable |
| Taux de location | Sur demande |
| Utilisation de l’espace | Commerce de détail |
| État | - |
| Disponible | 2026-05-15 |
Steps from Bryant Park - Close to Major Midtown Transit Hubs - Plus 536 SF of mezzanine space and 3,500 SF of lower level space - Frontage: 58' along W 38th St - Ceiling Heights: Ground - 15' / Lower Level - 12 - All uses considered - currently Cooper Electric Supply Co. - Venting possible - food use considered - Possible new double-wide stair - Close to Times Square, Broadway’s Theatre District, and the Herald Square shopping corridor - Centrally located between Midtown’s major transit hubs providing walking distance access to 19 express and local subway lines as well as Grand Central Madison and Grand Central Terminal’s rail lines and Port Authority Bus Terminal
- Situé en ligne avec d’autres commerces de détail
- Close to multiple express & local subways
- Close to Grand Central Madison, Port Authority Bus
- Close to Herald Sq shopping corridor, Times Sq
- Close to Broadway's theatre district
Sélectionner des locataires
- Étage
- Nom du locataire
- Secteur
- 6ᵉ
- Activecare Physical Therapy
- Soins de santé et assistance sociale
- 14ᵉ
- anat
- Services professionnels, scientifiques et techniques
- REZ-DE-CHAUSSÉE
- Cooper Electric Supply
- Grossiste
- 15ᵉ
- CVE North America
- Services publics
- 3ᵉ
- Illuminico
- Grossiste
- 5ᵉ
- ME Engineers
- Services professionnels, scientifiques et techniques
- 2ᵉ
- Onia
- Fabrication
- 10ᵉ
- Redeemer Counseling
- Soins de santé et assistance sociale
- 8ᵉ
- Resolution Real Estate Partners
- Immobilier
- 7ᵉ
- Votum Enterprises
- Grossiste
Faits sur la propriété
Caractéristiques et commodités
- Accès 24 heures
- Certifié Energy Star
Principaux détaillants à proximité
Présenté par
29 W 38th St
Hmm, il semble y avoir eu une erreur lors de l’envoi de votre message. Veuillez réessayer.
Merci! Votre message a été envoyé.





