Se Connecter/S’inscrire
Votre courriel a été envoyé.
2900 E La Jolla St 41 790 pi² Industriel Immeuble Anaheim, CA 92806 18 561 959 $ CAD (444,17 $ CAD/pi²)



Certaines informations ont été traduites automatiquement.
Faits saillants de l'investissement
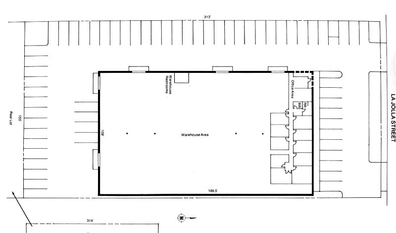
- Combined building area of approximately 41,790 square feet situated on ±2.22 acres with fenced yard space
- Includes ±4,472 square feet of office space supporting administrative functions and production needs
- Provides 89 parking spaces with a ratio of 2.1 per 1,000 square feet to accommodate employees and visitors
- Offers 12 grade-level loading doors, 18’ to 21’ clear height, and ±37,318 square feet of warehouse space for optimized operations
- Equipped with 800 amps, 208-480 volt power and a fire sprinkler system for safety and reliability
- Strategically located in East Anaheim with immediate access to Riverside (91), Orange (57), and Costa Mesa (55) freeways
Résumé de l'annonce
Call to show.
Faits sur la propriété
| Prix | 18 561 959 $ CAD | Aire du bâtiment louable | 41 790 pi² |
| Prix par pi² | 444,17 $ CAD | Nombre d’étages | 1 |
| Type de vente | Investissement ou propriétaire utilisateur | Année de construction | 1974 |
| Type de propriété | Industriel | Location | Unique |
| Sous-type de propriété | Entrepôt | Ratio de stationnement | 1,1/1 000 pi² |
| Classe d’immeuble | C | Effacer hauteur du plafond | 18’ |
| Taille du lot | 2,23 AC | Nbre d’entrées dans les portes/au niveau du sol | 5 |
| Zonage | Sp-94-1 | ||
| Prix | 18 561 959 $ CAD |
| Prix par pi² | 444,17 $ CAD |
| Type de vente | Investissement ou propriétaire utilisateur |
| Type de propriété | Industriel |
| Sous-type de propriété | Entrepôt |
| Classe d’immeuble | C |
| Taille du lot | 2,23 AC |
| Aire du bâtiment louable | 41 790 pi² |
| Nombre d’étages | 1 |
| Année de construction | 1974 |
| Location | Unique |
| Ratio de stationnement | 1,1/1 000 pi² |
| Effacer hauteur du plafond | 18’ |
| Nbre d’entrées dans les portes/au niveau du sol | 5 |
| Zonage | Sp-94-1 |
Commodités
- Terrain clôturé
1 1
Assez practicable à pied
50/100
Exceptionnellement facile d'accès en voiture
100/100
Transports en commun très limités
10/100
Moyennement praticable en vélo
60/100
Impôts fonciers
| Numéro de lot | 344-241-07 | Évaluation des bâtiments | 3 518 045 $ CAD |
| Évaluation du terrain | 871 584 $ CAD | Évaluation totale | 4 389 630 $ CAD |
Impôts fonciers
Numéro de lot
344-241-07
Évaluation du terrain
871 584 $ CAD
Évaluation des bâtiments
3 518 045 $ CAD
Évaluation totale
4 389 630 $ CAD
1 de 6
Vidéos
Visite extérieure 3D Matterport
Visite 3D Matterport
Photos
Vue depuis la rue
Rue
Carte
1 de 1
Présenté par
2900 E La Jolla St
Vous êtes déjà membre? Connectez-vous
Hmm, il semble y avoir eu une erreur lors de l’envoi de votre message. Veuillez réessayer.
Merci! Votre message a été envoyé.
