Votre courriel a été envoyé.
2959 Central Ave Lot • Terrain commercial • 0,06 Acres • 498 020 $ CAD • Saint Petersburg, FL 33713

Certaines informations ont été traduites automatiquement.
FAITS SAILLANTS DE L'INVESTISSEMENT
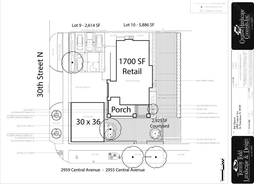
- On-Site Parking: The site has 5 parking spaces, plus 9 existing spaces on Central Avenue and Shared access to the Courtyard and Porch.
- BOLD CORNER LOCATION: Lot Transformation: A 3,000 SF Lot 9 at Central Ave & 30th St will host a new 1,080 SF with rooftop seating.
RÉSUMÉ DE L'ANNONCE
FAITS SUR LA PROPRIÉTÉ
1 LOT DISPONIBLE
Lot 9
| Prix | 498 020 $ CAD | Taille du lot | 0,06 AC |
| Prix par AC | 8 300 339,70 $ CAD |
| Prix | 498 020 $ CAD |
| Prix par AC | 8 300 339,70 $ CAD |
| Taille du lot | 0,06 AC |
Corner of Central Avenue and 30th Street N. Lot 9: build up to 2 stories (next to the sidewalk), with parking and an adjacent Courtyard. Grand Central District, the Historic Kenwood Neighborhood. With full access to 2,925 SF Courtyard and porch.
DESCRIPTION
The Out Parcel is part of The Craftsman House Historic Restoration and is centrally located on Central Avenue, St. Petersburg, known for its bustling atmosphere and eclectic mix of shops, cafes, and cultural destinations. As part of the Grand Central District, the Historic Kenwood Neighborhood, as well as the Warehouse Arts District, it is surrounded by a thriving community of residents and businesses. Central Avenue attracts a steady flow of foot traffic and loyal patrons
Impôts fonciers
| Numéro de lot | 23-31-16-35118-020-0090 | Évaluation des bâtiments | 208 654 $ CAD |
| Évaluation du terrain | 912 690 $ CAD | Évaluation totale | 1 121 344 $ CAD |
Impôts fonciers
Présenté par
2959 Central Ave
Hmm, il semble y avoir eu une erreur lors de l’envoi de votre message. Veuillez réessayer.
Merci! Votre message a été envoyé.
