Se Connecter/S’inscrire
Votre courriel a été envoyé.
Certaines informations ont été traduites automatiquement.
Caractéristiques
Baies d’entrée
3
Places de stationnement standard
20
Tous les espaces disponibles(1)
Afficher les taux de location en
- Espace
- Taille
- Terme
- Taux de location
- Utilisation de l’espace
- Aménagement
- Disponible
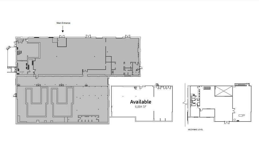
Space has a 10 x 10 drive in door
- 1 accès plain-pied
| Espace | Taille | Terme | Taux de location | Utilisation de l’espace | Aménagement | Disponible |
| 1er étage | 6 884 pi² | Négociable | Sur demande Sur demande Sur demande Sur demande | Industriel | - | Maintenant |
1er étage
| Taille |
| 6 884 pi² |
| Terme |
| Négociable |
| Taux de location |
| Sur demande Sur demande Sur demande Sur demande |
| Utilisation de l’espace |
| Industriel |
| Aménagement |
| - |
| Disponible |
| Maintenant |
1er étage
| Taille | 6 884 pi² |
| Terme | Négociable |
| Taux de location | Sur demande |
| Utilisation de l’espace | Industriel |
| Aménagement | - |
| Disponible | Maintenant |
Space has a 10 x 10 drive in door
- 1 accès plain-pied
Faits sur la propriété
Taille du bâtiment
29 000 pi²
Taille du lot
1,81 AC
Année de construction
1899
Construction
Maçonnerie
Zonage
C - Entrepôt
1 1
Moyennement praticable à pied
70/100
Exceptionnellement facile d’accès en voiture
90/100
Transports en commun relativement accessibles
50/100
Moyennement praticable en vélo
60/100
1 de 4
Vidéos
Visite extérieure 3D Matterport
Visite 3D Matterport
Photos
Vue depuis la rue
Rue
Carte
1 de 1
Présenté par
296 Freeport St
Vous êtes déjà membre? Connectez-vous
Hmm, il semble y avoir eu une erreur lors de l’envoi de votre message. Veuillez réessayer.
Merci! Votre message a été envoyé.



