Votre courriel a été envoyé.
3 Catherine St 958 pi² d'espace disponible • Bureau • Hyde SK14 2BE



Certaines informations ont été traduites automatiquement.
Faits saillants
- Convenient Hyde location
- Private car park for staff and visitors
- Easy access to public transport
Tous les espaces disponibles(1)
Afficher les taux de location en
- Espace
- Taille
- Terme
- Taux de location
- Utilisation de l’espace
- Aménagement
- Disponible
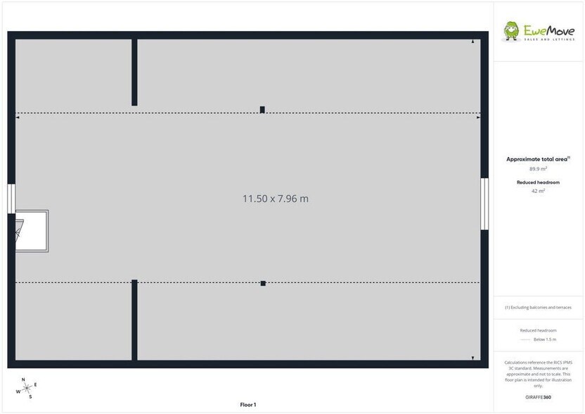
The office space is positioned on the upper floor and offers a large, open-plan layout that provides excellent flexibility for a variety of professional or commercial occupiers. The generous floor area allows for multiple workstations, meeting areas, or partitioned offices depending on individual requirements. With its open and versatile design, the space can be easily configured to suit start-ups, established businesses, or satellite offices.
- Classe d’utilisation : E
- Cote de rendement énergétique - D
- Offering flexible working space
- Disposition du plan d’étage ouverte en général
- Spacious upstairs office accommodation
- Potential for partitioning into private offices
| Espace | Taille | Terme | Taux de location | Utilisation de l’espace | Aménagement | Disponible |
| 1er étage | 958 pi² | Négociable | Sur demande Sur demande Sur demande Sur demande | Bureau | - | Maintenant |
1er étage
| Taille |
| 958 pi² |
| Terme |
| Négociable |
| Taux de location |
| Sur demande Sur demande Sur demande Sur demande |
| Utilisation de l’espace |
| Bureau |
| Aménagement |
| - |
| Disponible |
| Maintenant |
1er étage
| Taille | 958 pi² |
| Terme | Négociable |
| Taux de location | Sur demande |
| Utilisation de l’espace | Bureau |
| Aménagement | - |
| Disponible | Maintenant |
The office space is positioned on the upper floor and offers a large, open-plan layout that provides excellent flexibility for a variety of professional or commercial occupiers. The generous floor area allows for multiple workstations, meeting areas, or partitioned offices depending on individual requirements. With its open and versatile design, the space can be easily configured to suit start-ups, established businesses, or satellite offices.
- Classe d’utilisation : E
- Disposition du plan d’étage ouverte en général
- Cote de rendement énergétique - D
- Spacious upstairs office accommodation
- Offering flexible working space
- Potential for partitioning into private offices
Aperçu de la propriété
The property further benefits from a private car park, providing convenient off-road parking for staff and visitors, which is a valuable feature for a commercial premises in this location. Catherine Street is well located within Hyde, offering convenient access to local amenities, shops, and services. The property benefits from good transport links, with Hyde town centre, train stations, and bus routes within easy reach, as well as straightforward access to the wider motorway network for commuting to Manchester and surrounding areas.
Faits sur la propriété
Présenté par
Ewemove Sales & Lettings
3 Catherine St
Hmm, il semble y avoir eu une erreur lors de l’envoi de votre message. Veuillez réessayer.
Merci! Votre message a été envoyé.
