Votre courriel a été envoyé.
Building 3, Foundation Park 3 Roxborough Way 8 696–35 469 pi² d'espace disponible • Bureau • Maidenhead SL6 3UG



Certaines informations ont été traduites automatiquement.
Faits saillants
- Parc d'affaires de premier plan
- Stationnement
- Excellentes liaisons de transport
Tous les espaces disponibles(4)
Afficher les taux de location en
- Espace
- Taille
- Terme
- Taux de location
- Utilisation de l’espace
- Aménagement
- Disponible
Building 3 provides a two-storey contemporary office building. The building provides flexible space allowing use for either office or research & development space. The majority of Foundation Park is currently fitted out and occupied as office space.
- Classe d’utilisation : E
- Disposition du plan d’étage ouverte en général
- Peut être associé à un ou plusieurs espaces supplémentaires pour obtenir jusqu’à 35 469 pi² d’espace adjacent.
- Stationnement pour 124 véhicules
- Lumière naturelle
- Entièrement construit comme Bureau standard
- Convient pour 23 à 72 personnes
- Lumière naturelle
- Excellentes liaisons de transport
Building 3 provides a two-storey contemporary office building. The building provides flexible space allowing use for either office or research & development space. The majority of Foundation Park is currently fitted out and occupied as office space.
- Classe d’utilisation : E
- Disposition du plan d’étage ouverte en général
- Peut être associé à un ou plusieurs espaces supplémentaires pour obtenir jusqu’à 35 469 pi² d’espace adjacent.
- Stationnement pour 124 véhicules
- Lumière naturelle
- Entièrement construit comme Bureau standard
- Convient pour 22 à 70 personnes
- Lumière naturelle
- Excellentes liaisons de transport
Building 3 provides a two-storey contemporary office building. The building provides flexible space allowing use for either office or research & development space. The majority of Foundation Park is currently fitted out and occupied as office space.
- Classe d’utilisation : E
- Disposition du plan d’étage ouverte en général
- Peut être associé à un ou plusieurs espaces supplémentaires pour obtenir jusqu’à 35 469 pi² d’espace adjacent.
- Stationnement pour 124 véhicules
- Lumière naturelle
- Entièrement construit comme Bureau standard
- Convient pour 23 à 72 personnes
- Lumière naturelle
- Excellentes liaisons de transport
Building 3 provides a two-storey contemporary office building. The building provides flexible space allowing use for either office or research & development space. The majority of Foundation Park is currently fitted out and occupied as office space.
- Classe d’utilisation : E
- Disposition du plan d’étage ouverte en général
- Peut être associé à un ou plusieurs espaces supplémentaires pour obtenir jusqu’à 35 469 pi² d’espace adjacent.
- Stationnement pour 124 véhicules
- Lumière naturelle
- Entièrement construit comme Bureau standard
- Convient pour 23 à 72 personnes
- Lumière naturelle
- Excellentes liaisons de transport
| Espace | Taille | Terme | Taux de location | Utilisation de l’espace | Aménagement | Disponible |
| RDC, ste A | 8 910 pi² | Négociable | 53,11 $ CAD/pi²/an 4,43 $ CAD/pi²/mois 473 241 $ CAD/an 39 437 $ CAD/mois | Bureau | construction complète | 30 jours |
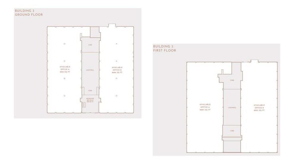
| RDC, ste B | 8 696 pi² | Négociable | 53,11 $ CAD/pi²/an 4,43 $ CAD/pi²/mois 461 875 $ CAD/an 38 490 $ CAD/mois | Bureau | construction complète | 30 jours |
| 1er étage, ste A | 8 910 pi² | Négociable | 53,11 $ CAD/pi²/an 4,43 $ CAD/pi²/mois 473 241 $ CAD/an 39 437 $ CAD/mois | Bureau | construction complète | 30 jours |
| 1er étage, ste B | 8 953 pi² | Négociable | 53,11 $ CAD/pi²/an 4,43 $ CAD/pi²/mois 475 525 $ CAD/an 39 627 $ CAD/mois | Bureau | construction complète | 30 jours |
RDC, ste A
| Taille |
| 8 910 pi² |
| Terme |
| Négociable |
| Taux de location |
| 53,11 $ CAD/pi²/an 4,43 $ CAD/pi²/mois 473 241 $ CAD/an 39 437 $ CAD/mois |
| Utilisation de l’espace |
| Bureau |
| Aménagement |
| construction complète |
| Disponible |
| 30 jours |
RDC, ste B
| Taille |
| 8 696 pi² |
| Terme |
| Négociable |
| Taux de location |
| 53,11 $ CAD/pi²/an 4,43 $ CAD/pi²/mois 461 875 $ CAD/an 38 490 $ CAD/mois |
| Utilisation de l’espace |
| Bureau |
| Aménagement |
| construction complète |
| Disponible |
| 30 jours |
1er étage, ste A
| Taille |
| 8 910 pi² |
| Terme |
| Négociable |
| Taux de location |
| 53,11 $ CAD/pi²/an 4,43 $ CAD/pi²/mois 473 241 $ CAD/an 39 437 $ CAD/mois |
| Utilisation de l’espace |
| Bureau |
| Aménagement |
| construction complète |
| Disponible |
| 30 jours |
1er étage, ste B
| Taille |
| 8 953 pi² |
| Terme |
| Négociable |
| Taux de location |
| 53,11 $ CAD/pi²/an 4,43 $ CAD/pi²/mois 475 525 $ CAD/an 39 627 $ CAD/mois |
| Utilisation de l’espace |
| Bureau |
| Aménagement |
| construction complète |
| Disponible |
| 30 jours |
RDC, ste A
| Taille | 8 910 pi² |
| Terme | Négociable |
| Taux de location | 53,11 $ CAD/pi²/an |
| Utilisation de l’espace | Bureau |
| Aménagement | construction complète |
| Disponible | 30 jours |
Building 3 provides a two-storey contemporary office building. The building provides flexible space allowing use for either office or research & development space. The majority of Foundation Park is currently fitted out and occupied as office space.
- Classe d’utilisation : E
- Entièrement construit comme Bureau standard
- Disposition du plan d’étage ouverte en général
- Convient pour 23 à 72 personnes
- Peut être associé à un ou plusieurs espaces supplémentaires pour obtenir jusqu’à 35 469 pi² d’espace adjacent.
- Lumière naturelle
- Stationnement pour 124 véhicules
- Excellentes liaisons de transport
- Lumière naturelle
RDC, ste B
| Taille | 8 696 pi² |
| Terme | Négociable |
| Taux de location | 53,11 $ CAD/pi²/an |
| Utilisation de l’espace | Bureau |
| Aménagement | construction complète |
| Disponible | 30 jours |
Building 3 provides a two-storey contemporary office building. The building provides flexible space allowing use for either office or research & development space. The majority of Foundation Park is currently fitted out and occupied as office space.
- Classe d’utilisation : E
- Entièrement construit comme Bureau standard
- Disposition du plan d’étage ouverte en général
- Convient pour 22 à 70 personnes
- Peut être associé à un ou plusieurs espaces supplémentaires pour obtenir jusqu’à 35 469 pi² d’espace adjacent.
- Lumière naturelle
- Stationnement pour 124 véhicules
- Excellentes liaisons de transport
- Lumière naturelle
1er étage, ste A
| Taille | 8 910 pi² |
| Terme | Négociable |
| Taux de location | 53,11 $ CAD/pi²/an |
| Utilisation de l’espace | Bureau |
| Aménagement | construction complète |
| Disponible | 30 jours |
Building 3 provides a two-storey contemporary office building. The building provides flexible space allowing use for either office or research & development space. The majority of Foundation Park is currently fitted out and occupied as office space.
- Classe d’utilisation : E
- Entièrement construit comme Bureau standard
- Disposition du plan d’étage ouverte en général
- Convient pour 23 à 72 personnes
- Peut être associé à un ou plusieurs espaces supplémentaires pour obtenir jusqu’à 35 469 pi² d’espace adjacent.
- Lumière naturelle
- Stationnement pour 124 véhicules
- Excellentes liaisons de transport
- Lumière naturelle
1er étage, ste B
| Taille | 8 953 pi² |
| Terme | Négociable |
| Taux de location | 53,11 $ CAD/pi²/an |
| Utilisation de l’espace | Bureau |
| Aménagement | construction complète |
| Disponible | 30 jours |
Building 3 provides a two-storey contemporary office building. The building provides flexible space allowing use for either office or research & development space. The majority of Foundation Park is currently fitted out and occupied as office space.
- Classe d’utilisation : E
- Entièrement construit comme Bureau standard
- Disposition du plan d’étage ouverte en général
- Convient pour 23 à 72 personnes
- Peut être associé à un ou plusieurs espaces supplémentaires pour obtenir jusqu’à 35 469 pi² d’espace adjacent.
- Lumière naturelle
- Stationnement pour 124 véhicules
- Excellentes liaisons de transport
- Lumière naturelle
Aperçu de la propriété
Ces bâtiments offrent deux étages contemporains édifices à bureaux construits à partir de cadres d'acier un mélange de briques et de blocs avec un toit en pente.
- Accès contrôlé
- Système de sécurité
- Accessible aux fauteuils roulants
- Espace d'entreposage
- Climatisation
- Agents de sécurité sur place
Faits sur la propriété
Présenté par
Building 3, Foundation Park | 3 Roxborough Way
Hmm, il semble y avoir eu une erreur lors de l’envoi de votre message. Veuillez réessayer.
Merci! Votre message a été envoyé.
