Votre courriel a été envoyé.
Malley Farms Business Centre 30 Centre Rd 4 800–28 800 pi² d'espace disponible • 4 étoiles • Somersworth, NH 03878



Certaines informations ont été traduites automatiquement.
Faits saillants
- Prime flex, warehouse, and industrial space with the ideal location, infrastructure, and amenities to cater to diverse business needs.
- Highly accessible location with excellent regional connectivity via Routes 9 and 236 for shipping and receiving.
- 30 Centre Road features an 18-foot clear height, six exterior dock doors, one drive-in bay, and one leveler for a logistical advantage.
- Access to a dense workforce and consumer base with over 138,000 residents in the area that was responsible for over $1.8 billion in spending in 2024.
Caractéristiques
Tous les espaces disponibles(6)
Afficher les taux de location en
- Espace
- Taille
- Terme
- Taux de location
- Utilisation de l’espace
- Aménagement
- Disponible
- Le taux de location ne comprend pas les services publics, les services de bâtiment ou les dépenses immobilières.
- Le taux de location ne comprend pas les services publics, les services de bâtiment ou les dépenses immobilières.
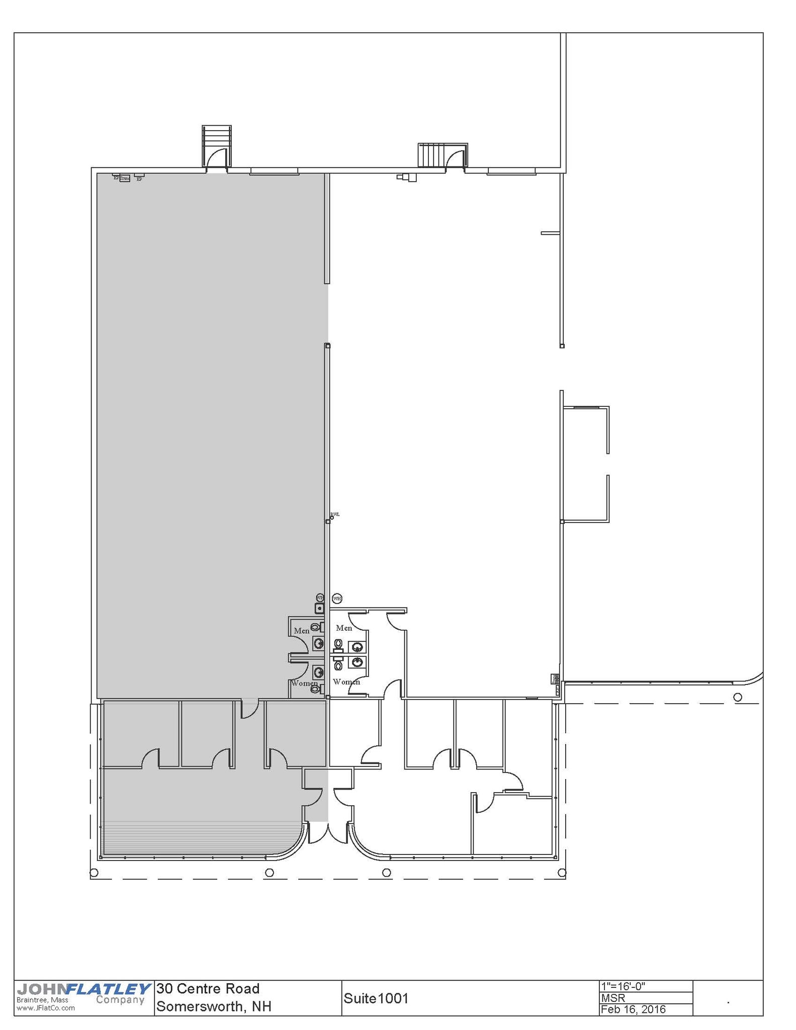
Two contiguous spaces, each measuring 4,800 square feet, are available, which can be combined for a total of 9,600 square feet. The building features an 18-foot clear height, six exterior dock doors, one drive-in bay measuring 8 feet wide by 10 feet high, and one leveler. Tenants benefit from paved and lighted parking spaces, air-conditioned offices, natural gas heat, and exterior LED lighting.
- Le taux de location ne comprend pas les services publics, les services de bâtiment ou les dépenses immobilières.
- Peut être associé à un ou plusieurs espaces supplémentaires pour obtenir jusqu’à 9 600 pi² d’espace adjacent.
- Salle de bains privée
- Salles de conférence
- 18-ft clear height, 6 dock doors
- Espace en excellent état
- Air central et chauffage
- Connectivité Wi-Fi
- Two spaces, combine for 9,600 sq. ft.
- Air-conditioned offices, ample parking
- Le taux de location ne comprend pas les services publics, les services de bâtiment ou les dépenses immobilières.
- Peut être associé à un ou plusieurs espaces supplémentaires pour obtenir jusqu’à 9 600 pi² d’espace adjacent.
Two contiguous spaces, each measuring 4,800 square feet, are available, which can be combined for a total of 9,600 square feet. The building features an 18-foot clear height, six exterior dock doors, one drive-in bay measuring 8 feet wide by 10 feet high, and one leveler. Tenants benefit from paved and lighted parking spaces, air-conditioned offices, natural gas heat, and exterior LED lighting.
- Le taux de location ne comprend pas les services publics, les services de bâtiment ou les dépenses immobilières.
- Peut être associé à un ou plusieurs espaces supplémentaires pour obtenir jusqu’à 9 600 pi² d’espace adjacent.
- Salle de bains privée
- Salles de conférence
- 18-ft clear height, 6 dock doors
- Espace en excellent état
- Air central et chauffage
- Connectivité Wi-Fi
- Two spaces, combine for 9,600 sq. ft.
- Air-conditioned offices, ample parking
- Le taux de location ne comprend pas les services publics, les services de bâtiment ou les dépenses immobilières.
- Peut être associé à un ou plusieurs espaces supplémentaires pour obtenir jusqu’à 9 600 pi² d’espace adjacent.
| Espace | Taille | Terme | Taux de location | Utilisation de l’espace | Aménagement | Disponible |
| 1er étage - 1001 | 4 800 pi² | Négociable | 19,29 $ CAD/pi²/an 1,61 $ CAD/pi²/mois 92 568 $ CAD/an 7 714 $ CAD/mois | Industriel | - | 2026-06-01 |
| 1er étage - 1001 | 4 800 pi² | Négociable | 19,29 $ CAD/pi²/an 1,61 $ CAD/pi²/mois 92 568 $ CAD/an 7 714 $ CAD/mois | Flex | - | 2026-06-01 |
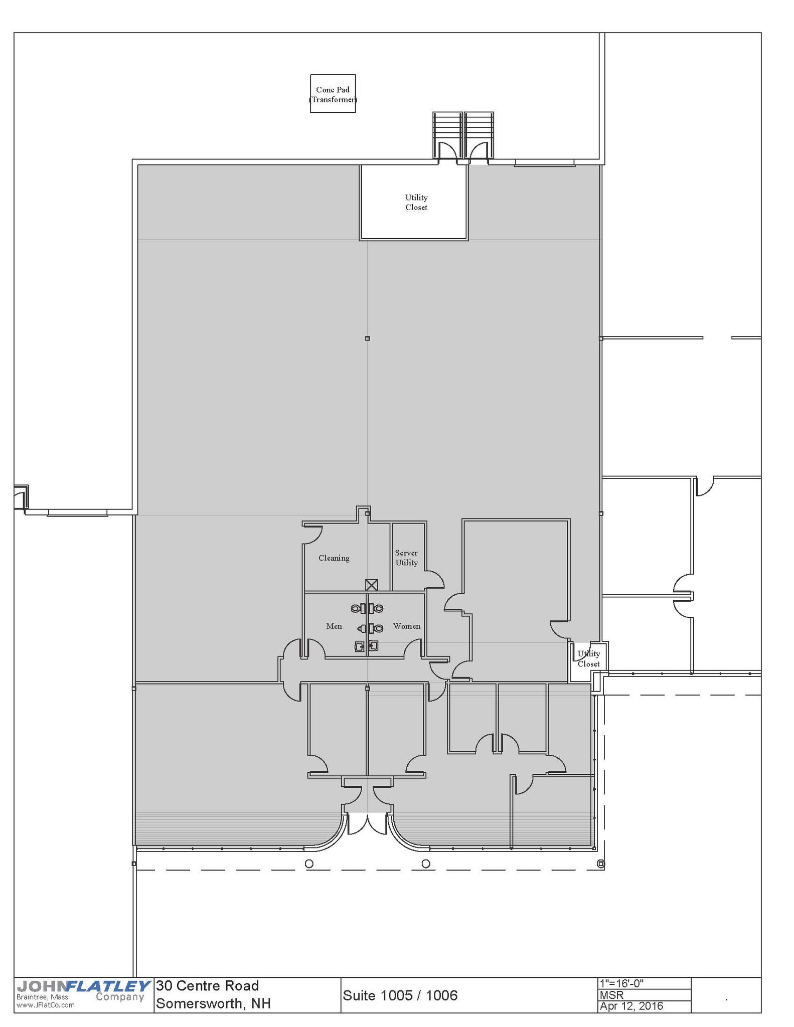
| 1er étage - 1005 | 4 800 pi² | Négociable | 19,29 $ CAD/pi²/an 1,61 $ CAD/pi²/mois 92 568 $ CAD/an 7 714 $ CAD/mois | Flex | construction complète | Maintenant |
| 1er étage - 1005 | 4 800 pi² | Négociable | 19,29 $ CAD/pi²/an 1,61 $ CAD/pi²/mois 92 568 $ CAD/an 7 714 $ CAD/mois | Industriel | - | Maintenant |
| 1er étage - 1006 | 4 800 pi² | Négociable | 19,29 $ CAD/pi²/an 1,61 $ CAD/pi²/mois 92 568 $ CAD/an 7 714 $ CAD/mois | Flex | construction complète | Maintenant |
| 1er étage - 1006 | 4 800 pi² | Négociable | 19,29 $ CAD/pi²/an 1,61 $ CAD/pi²/mois 92 568 $ CAD/an 7 714 $ CAD/mois | Industriel | - | Maintenant |
1er étage - 1001
| Taille |
| 4 800 pi² |
| Terme |
| Négociable |
| Taux de location |
| 19,29 $ CAD/pi²/an 1,61 $ CAD/pi²/mois 92 568 $ CAD/an 7 714 $ CAD/mois |
| Utilisation de l’espace |
| Industriel |
| Aménagement |
| - |
| Disponible |
| 2026-06-01 |
1er étage - 1001
| Taille |
| 4 800 pi² |
| Terme |
| Négociable |
| Taux de location |
| 19,29 $ CAD/pi²/an 1,61 $ CAD/pi²/mois 92 568 $ CAD/an 7 714 $ CAD/mois |
| Utilisation de l’espace |
| Flex |
| Aménagement |
| - |
| Disponible |
| 2026-06-01 |
1er étage - 1005
| Taille |
| 4 800 pi² |
| Terme |
| Négociable |
| Taux de location |
| 19,29 $ CAD/pi²/an 1,61 $ CAD/pi²/mois 92 568 $ CAD/an 7 714 $ CAD/mois |
| Utilisation de l’espace |
| Flex |
| Aménagement |
| construction complète |
| Disponible |
| Maintenant |
1er étage - 1005
| Taille |
| 4 800 pi² |
| Terme |
| Négociable |
| Taux de location |
| 19,29 $ CAD/pi²/an 1,61 $ CAD/pi²/mois 92 568 $ CAD/an 7 714 $ CAD/mois |
| Utilisation de l’espace |
| Industriel |
| Aménagement |
| - |
| Disponible |
| Maintenant |
1er étage - 1006
| Taille |
| 4 800 pi² |
| Terme |
| Négociable |
| Taux de location |
| 19,29 $ CAD/pi²/an 1,61 $ CAD/pi²/mois 92 568 $ CAD/an 7 714 $ CAD/mois |
| Utilisation de l’espace |
| Flex |
| Aménagement |
| construction complète |
| Disponible |
| Maintenant |
1er étage - 1006
| Taille |
| 4 800 pi² |
| Terme |
| Négociable |
| Taux de location |
| 19,29 $ CAD/pi²/an 1,61 $ CAD/pi²/mois 92 568 $ CAD/an 7 714 $ CAD/mois |
| Utilisation de l’espace |
| Industriel |
| Aménagement |
| - |
| Disponible |
| Maintenant |
1er étage - 1001
| Taille | 4 800 pi² |
| Terme | Négociable |
| Taux de location | 19,29 $ CAD/pi²/an |
| Utilisation de l’espace | Industriel |
| Aménagement | - |
| Disponible | 2026-06-01 |
- Le taux de location ne comprend pas les services publics, les services de bâtiment ou les dépenses immobilières.
1er étage - 1001
| Taille | 4 800 pi² |
| Terme | Négociable |
| Taux de location | 19,29 $ CAD/pi²/an |
| Utilisation de l’espace | Flex |
| Aménagement | - |
| Disponible | 2026-06-01 |
- Le taux de location ne comprend pas les services publics, les services de bâtiment ou les dépenses immobilières.
1er étage - 1005
| Taille | 4 800 pi² |
| Terme | Négociable |
| Taux de location | 19,29 $ CAD/pi²/an |
| Utilisation de l’espace | Flex |
| Aménagement | construction complète |
| Disponible | Maintenant |
Two contiguous spaces, each measuring 4,800 square feet, are available, which can be combined for a total of 9,600 square feet. The building features an 18-foot clear height, six exterior dock doors, one drive-in bay measuring 8 feet wide by 10 feet high, and one leveler. Tenants benefit from paved and lighted parking spaces, air-conditioned offices, natural gas heat, and exterior LED lighting.
- Le taux de location ne comprend pas les services publics, les services de bâtiment ou les dépenses immobilières.
- Espace en excellent état
- Peut être associé à un ou plusieurs espaces supplémentaires pour obtenir jusqu’à 9 600 pi² d’espace adjacent.
- Air central et chauffage
- Salle de bains privée
- Connectivité Wi-Fi
- Salles de conférence
- Two spaces, combine for 9,600 sq. ft.
- 18-ft clear height, 6 dock doors
- Air-conditioned offices, ample parking
1er étage - 1005
| Taille | 4 800 pi² |
| Terme | Négociable |
| Taux de location | 19,29 $ CAD/pi²/an |
| Utilisation de l’espace | Industriel |
| Aménagement | - |
| Disponible | Maintenant |
- Le taux de location ne comprend pas les services publics, les services de bâtiment ou les dépenses immobilières.
- Peut être associé à un ou plusieurs espaces supplémentaires pour obtenir jusqu’à 9 600 pi² d’espace adjacent.
1er étage - 1006
| Taille | 4 800 pi² |
| Terme | Négociable |
| Taux de location | 19,29 $ CAD/pi²/an |
| Utilisation de l’espace | Flex |
| Aménagement | construction complète |
| Disponible | Maintenant |
Two contiguous spaces, each measuring 4,800 square feet, are available, which can be combined for a total of 9,600 square feet. The building features an 18-foot clear height, six exterior dock doors, one drive-in bay measuring 8 feet wide by 10 feet high, and one leveler. Tenants benefit from paved and lighted parking spaces, air-conditioned offices, natural gas heat, and exterior LED lighting.
- Le taux de location ne comprend pas les services publics, les services de bâtiment ou les dépenses immobilières.
- Espace en excellent état
- Peut être associé à un ou plusieurs espaces supplémentaires pour obtenir jusqu’à 9 600 pi² d’espace adjacent.
- Air central et chauffage
- Salle de bains privée
- Connectivité Wi-Fi
- Salles de conférence
- Two spaces, combine for 9,600 sq. ft.
- 18-ft clear height, 6 dock doors
- Air-conditioned offices, ample parking
1er étage - 1006
| Taille | 4 800 pi² |
| Terme | Négociable |
| Taux de location | 19,29 $ CAD/pi²/an |
| Utilisation de l’espace | Industriel |
| Aménagement | - |
| Disponible | Maintenant |
- Le taux de location ne comprend pas les services publics, les services de bâtiment ou les dépenses immobilières.
- Peut être associé à un ou plusieurs espaces supplémentaires pour obtenir jusqu’à 9 600 pi² d’espace adjacent.
Aperçu de la propriété
Malley Farms Business Centre, located at 30 Centre Road in Somersworth, offers prime flex, warehouse, and industrial space for lease. This single-story, 48,000-square-foot commercial property, offers the ideal location, infrastructure, and amenities to cater to diverse business needs. Malley Farms is strategically located just north of Portsmouth, off the Spaulding Turnpike, with excellent regional connectivity via Route 9 and Route 236. The property is only six minutes from Dover, twenty minutes from historic Portsmouth, and a little over an hour from Boston, making it ideal for companies seeking a logistical advantage in the Seacoast region. The surrounding community of more than 138,000 residents generates over $1.8 billion in annual consumer spending, offering strong market potential. This property is well-suited for high-bay industrial, warehouse, or manufacturing use. Tenants enjoy a natural setting with open fields and wooded views, multiple tailboard loading docks and man-doors, and ample free parking. Join a thriving tenant mix and position your business for success in one of New Hampshire’s most accessible and desirable commercial locations.
Faits sur la propriété
Sélectionner des locataires
- Étage
- Nom du locataire
- Secteur
- 1ᵉʳ
- Long Home
- Construction
Données démographiques
Accessibilité régionale
Présenté par
Malley Farms Business Centre | 30 Centre Rd
Hmm, il semble y avoir eu une erreur lors de l’envoi de votre message. Veuillez réessayer.
Merci! Votre message a été envoyé.













