Votre courriel a été envoyé.
30 Windsormere Way 2 442 pi² d'espace disponible • Bureau • Oviedo, FL 32765



Certaines informations ont été traduites automatiquement.
Tous les espaces disponibles(1)
Afficher les taux de location en
- Espace
- Taille
- Terme
- Taux de location
- Utilisation de l’espace
- Aménagement
- Disponible
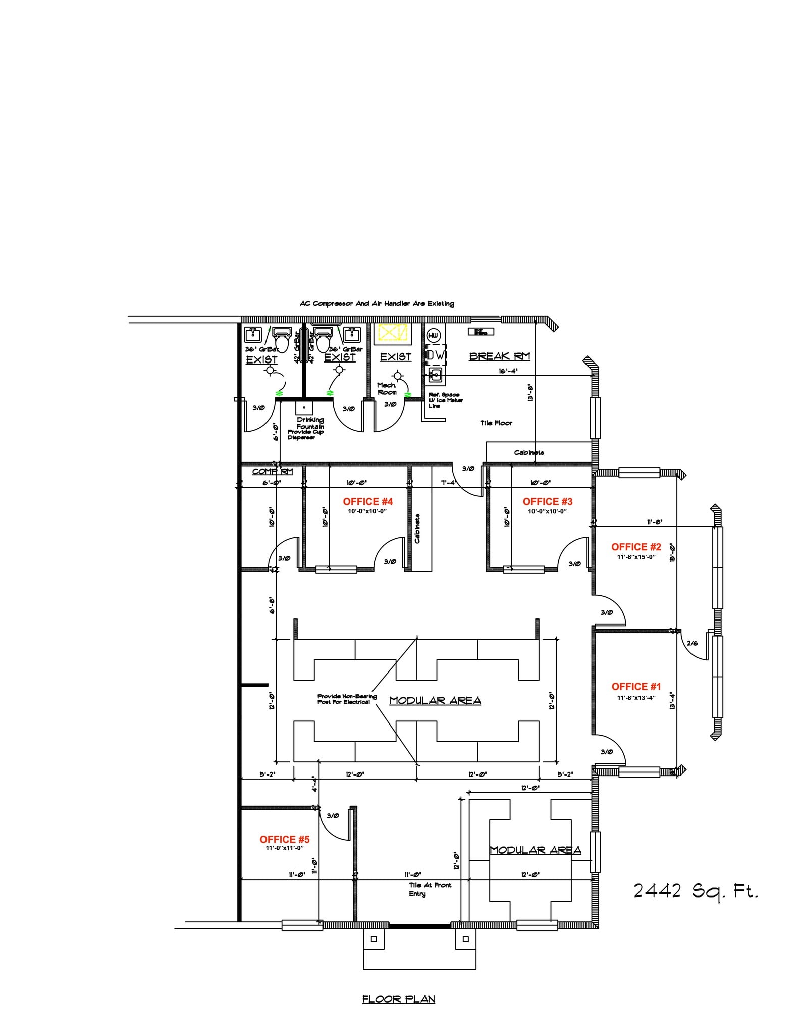
Suite 300 is a well-configured 2,442 SF professional office suite located within an established medical and professional office park in Oviedo. Previously occupied by a landscape architecture firm, the space features a flexible and functional layout that includes five private offices, a large open bullpen area, a dedicated conference room wired for a ceiling-mounted projector, a full break room with cabinetry and natural light, and a built-out IT/server room with structured cabling and dedicated power. The suite also offers two ADA-compliant restrooms, storage areas, and abundant natural light throughout. Its efficient floor plan provides a welcoming entry that flows into open workspace, while private offices are positioned along the perimeter for quiet use and practical separation. This configuration is ideal for professional service firms such as real estate, title, insurance, financial, legal, consulting, design, engineering, and other office-based companies seeking a turnkey, move-in-ready environment. Conveniently located minutes from Oviedo Medical Center with easy access to SR-417, Mitchell Hammock Road, and Alafaya Trail, the suite is situated within a quiet, well-maintained office park surrounded by established professional tenants.
- Le taux inscrit peut ne pas comprendre certains services publics, les services de bâtiment et les dépenses immobilières.
- Disposition du plan d’étage ouverte en général
- 1 salle de conférence
- Espace en excellent état
- Aire de réception
- Salle de bains privée
- Système de sécurité
- Entreposage sécurisé
- Éclairage d’urgence
- Détecteur de fumée
- Private offices & Bullpen Areas
- Conference room wired for ceiling projector
- Full break room/ Kitchen
- Entièrement construit comme Bureau standard
- 4 bureaux privés
- 2 postes de travail
- Climatisation centrale
- Salle d’impression/Photocopie
- Complètement tapissé
- Espace en coin
- Lumière naturelle
- Plan ouvert
- Accessible aux fauteuils roulants
- Ample on-site parking
- Dedicated IT / Server room
- Two ADA-compliant restrooms
| Espace | Taille | Terme | Taux de location | Utilisation de l’espace | Aménagement | Disponible |
| 1er étage, ste 300 | 2 442 pi² | Négociable | 34,45 $ CAD/pi²/an 2,87 $ CAD/pi²/mois 84 126 $ CAD/an 7 010 $ CAD/mois | Bureau | construction complète | Maintenant |
1er étage, ste 300
| Taille |
| 2 442 pi² |
| Terme |
| Négociable |
| Taux de location |
| 34,45 $ CAD/pi²/an 2,87 $ CAD/pi²/mois 84 126 $ CAD/an 7 010 $ CAD/mois |
| Utilisation de l’espace |
| Bureau |
| Aménagement |
| construction complète |
| Disponible |
| Maintenant |
1er étage, ste 300
| Taille | 2 442 pi² |
| Terme | Négociable |
| Taux de location | 34,45 $ CAD/pi²/an |
| Utilisation de l’espace | Bureau |
| Aménagement | construction complète |
| Disponible | Maintenant |
Suite 300 is a well-configured 2,442 SF professional office suite located within an established medical and professional office park in Oviedo. Previously occupied by a landscape architecture firm, the space features a flexible and functional layout that includes five private offices, a large open bullpen area, a dedicated conference room wired for a ceiling-mounted projector, a full break room with cabinetry and natural light, and a built-out IT/server room with structured cabling and dedicated power. The suite also offers two ADA-compliant restrooms, storage areas, and abundant natural light throughout. Its efficient floor plan provides a welcoming entry that flows into open workspace, while private offices are positioned along the perimeter for quiet use and practical separation. This configuration is ideal for professional service firms such as real estate, title, insurance, financial, legal, consulting, design, engineering, and other office-based companies seeking a turnkey, move-in-ready environment. Conveniently located minutes from Oviedo Medical Center with easy access to SR-417, Mitchell Hammock Road, and Alafaya Trail, the suite is situated within a quiet, well-maintained office park surrounded by established professional tenants.
- Le taux inscrit peut ne pas comprendre certains services publics, les services de bâtiment et les dépenses immobilières.
- Entièrement construit comme Bureau standard
- Disposition du plan d’étage ouverte en général
- 4 bureaux privés
- 1 salle de conférence
- 2 postes de travail
- Espace en excellent état
- Climatisation centrale
- Aire de réception
- Salle d’impression/Photocopie
- Salle de bains privée
- Complètement tapissé
- Système de sécurité
- Espace en coin
- Entreposage sécurisé
- Lumière naturelle
- Éclairage d’urgence
- Plan ouvert
- Détecteur de fumée
- Accessible aux fauteuils roulants
- Private offices & Bullpen Areas
- Ample on-site parking
- Conference room wired for ceiling projector
- Dedicated IT / Server room
- Full break room/ Kitchen
- Two ADA-compliant restrooms
Caractéristiques et commodités
- Affichage
Faits sur la propriété
Sélectionner des locataires
- Étage
- Nom du locataire
- Secteur
- 1ᵉʳ
- Dycus Family Medicine Pa
- Soins de santé et assistance sociale
- 1ᵉʳ
- Metabolic Center For Wellness
- Soins de santé et assistance sociale
Présenté par
ZIMMER LAND COMPANY
30 Windsormere Way
Hmm, il semble y avoir eu une erreur lors de l’envoi de votre message. Veuillez réessayer.
Merci! Votre message a été envoyé.



