Votre courriel a été envoyé.
Certaines informations ont été traduites automatiquement.
Faits saillants du parc
- Quatre bâtiments en béton aux accents calcaires
- Stationnement couvert exécutif
- Proximité des centres de conditionnement physique
- Portes en placage cerisier à noyau massif et éclairage parabolique 2'x4'
- Portes vitrées doubles en acier
- Comptes de circulation intense de jour
Faits sur le parc
| Superficie totale disponible | 23 282 pi² | Type de parc | Parc de bureaux |
| Max. contigu | 5 984 pi² |
| Superficie totale disponible | 23 282 pi² |
| Max. contigu | 5 984 pi² |
| Type de parc | Parc de bureaux |
Tous les espaces disponibles(4)
Afficher les taux de location en
- Espace
- Taille
- Terme
- Taux de location
- Utilisation de l’espace
- Aménagement
- Disponible
- Le taux de location ne comprend pas les services publics, les services de bâtiment ou les dépenses immobilières.
- Disposition du plan d’étage ouverte
- 7 bureaux privés
- Climatisation centrale
- Cuisine
- Entièrement construit comme Bureau standard
- Convient pour 19 à 61 personnes
- Espace en excellent état
- Aire de réception
- Plan ouvert
| Espace | Taille | Terme | Taux de location | Utilisation de l’espace | Aménagement | Disponible |
| 1er étage, ste 240 | 7 508 pi² | Négociable | 27,55 $ CAD/pi²/an 2,30 $ CAD/pi²/mois 206 845 $ CAD/an 17 237 $ CAD/mois | Bureau | construction complète | Maintenant |
300 E Sonterra Blvd - 1er étage - ste 240
- Espace
- Taille
- Terme
- Taux de location
- Utilisation de l’espace
- Aménagement
- Disponible
- Le taux de location ne comprend pas les services publics, les services de bâtiment ou les dépenses immobilières.
- Disposition du plan d’étage ouverte en général
- 12 bureaux privés
- Espace en excellent état
- Aire de réception
- Plan ouvert
- Entièrement construit comme Bureau standard
- Convient pour 25 à 79 personnes
- Salles de conférence
- Climatisation centrale
- Cuisine
| Espace | Taille | Terme | Taux de location | Utilisation de l’espace | Aménagement | Disponible |
| 1er étage, ste 350 | 9 790 pi² | Négociable | 27,55 $ CAD/pi²/an 2,30 $ CAD/pi²/mois 269 715 $ CAD/an 22 476 $ CAD/mois | Bureau | construction complète | Maintenant |
300 E Sonterra Blvd - 1er étage - ste 350
- Espace
- Taille
- Terme
- Taux de location
- Utilisation de l’espace
- Aménagement
- Disponible
- Le taux de location ne comprend pas les services publics, les services de bâtiment ou les dépenses immobilières.
- Disposition du plan d’étage ouverte en général
- Espace en excellent état
- Partiellement construit comme Bureau standard
- Convient pour 12 à 38 personnes
- Peut être associé à un ou plusieurs espaces supplémentaires pour obtenir jusqu’à 5 984 pi² d’espace adjacent.
- Le taux de location ne comprend pas les services publics, les services de bâtiment ou les dépenses immobilières.
- Disposition du plan d’étage ouverte en général
- 3 bureaux privés
- Peut être associé à un ou plusieurs espaces supplémentaires pour obtenir jusqu’à 5 984 pi² d’espace adjacent.
- Aire de réception
- Entièrement construit comme Bureau standard
- Convient pour 4 à 11 personnes
- Espace en excellent état
- Climatisation centrale
| Espace | Taille | Terme | Taux de location | Utilisation de l’espace | Aménagement | Disponible |
| 2e étage, ste 1260 | 4 730 pi² | Négociable | 27,55 $ CAD/pi²/an 2,30 $ CAD/pi²/mois 130 312 $ CAD/an 10 859 $ CAD/mois | Bureau | construction partielle | Maintenant |
| 2e étage, ste 1270 | 1 254 pi² | Négociable | 27,55 $ CAD/pi²/an 2,30 $ CAD/pi²/mois 34 548 $ CAD/an 2 879 $ CAD/mois | Bureau | construction complète | Maintenant |
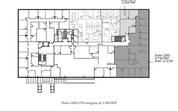
300 E Sonterra Blvd - 2e étage - ste 1260
300 E Sonterra Blvd - 2e étage - ste 1270
300 E Sonterra Blvd - 1er étage - ste 240
| Taille | 7 508 pi² |
| Terme | Négociable |
| Taux de location | 27,55 $ CAD/pi²/an |
| Utilisation de l’espace | Bureau |
| Aménagement | construction complète |
| Disponible | Maintenant |
- Le taux de location ne comprend pas les services publics, les services de bâtiment ou les dépenses immobilières.
- Entièrement construit comme Bureau standard
- Disposition du plan d’étage ouverte
- Convient pour 19 à 61 personnes
- 7 bureaux privés
- Espace en excellent état
- Climatisation centrale
- Aire de réception
- Cuisine
- Plan ouvert
300 E Sonterra Blvd - 1er étage - ste 350
| Taille | 9 790 pi² |
| Terme | Négociable |
| Taux de location | 27,55 $ CAD/pi²/an |
| Utilisation de l’espace | Bureau |
| Aménagement | construction complète |
| Disponible | Maintenant |
- Le taux de location ne comprend pas les services publics, les services de bâtiment ou les dépenses immobilières.
- Entièrement construit comme Bureau standard
- Disposition du plan d’étage ouverte en général
- Convient pour 25 à 79 personnes
- 12 bureaux privés
- Salles de conférence
- Espace en excellent état
- Climatisation centrale
- Aire de réception
- Cuisine
- Plan ouvert
300 E Sonterra Blvd - 2e étage - ste 1260
| Taille | 4 730 pi² |
| Terme | Négociable |
| Taux de location | 27,55 $ CAD/pi²/an |
| Utilisation de l’espace | Bureau |
| Aménagement | construction partielle |
| Disponible | Maintenant |
- Le taux de location ne comprend pas les services publics, les services de bâtiment ou les dépenses immobilières.
- Partiellement construit comme Bureau standard
- Disposition du plan d’étage ouverte en général
- Convient pour 12 à 38 personnes
- Espace en excellent état
- Peut être associé à un ou plusieurs espaces supplémentaires pour obtenir jusqu’à 5 984 pi² d’espace adjacent.
300 E Sonterra Blvd - 2e étage - ste 1270
| Taille | 1 254 pi² |
| Terme | Négociable |
| Taux de location | 27,55 $ CAD/pi²/an |
| Utilisation de l’espace | Bureau |
| Aménagement | construction complète |
| Disponible | Maintenant |
- Le taux de location ne comprend pas les services publics, les services de bâtiment ou les dépenses immobilières.
- Entièrement construit comme Bureau standard
- Disposition du plan d’étage ouverte en général
- Convient pour 4 à 11 personnes
- 3 bureaux privés
- Espace en excellent état
- Peut être associé à un ou plusieurs espaces supplémentaires pour obtenir jusqu’à 5 984 pi² d’espace adjacent.
- Climatisation centrale
- Aire de réception
Aperçu du parc
Les Communes du parc Concord se composent de 108 116 pieds carrés répartis entre quatre bâtiments de catégorie A. La propriété est idéalement située sur le boulevard E. Sonterra, juste au nord-ouest de l'échangeur de la boucle 1604 et de l'autoroute 281 avec de multiples points d'accès d'entrée/sortie. Nichée dans Stone Oak, l'un des quartiers les plus prospères et à la croissance la plus rapide de San Antonio, la propriété se trouve à quelques minutes d'hôtels, de commerces de détail, de divertissement et de nombreux restaurants à proximité.
Présenté par
Commons at Concord Park | San Antonio, TX 78258
Hmm, il semble y avoir eu une erreur lors de l’envoi de votre message. Veuillez réessayer.
Merci! Votre message a été envoyé.












