Se Connecter/S’inscrire
Votre courriel a été envoyé.
300 E Washington St 6 949 pi² Commerce de détail Immeuble Slinger, WI 53086 1 319 660 $ CAD (189,91 $ CAD/pi²)



Certaines informations ont été traduites automatiquement.
Faits saillants de l'investissement
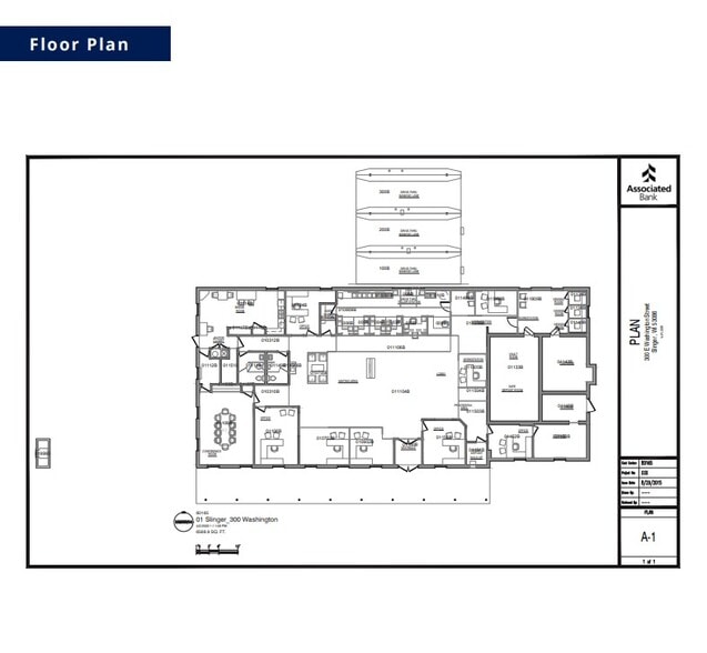
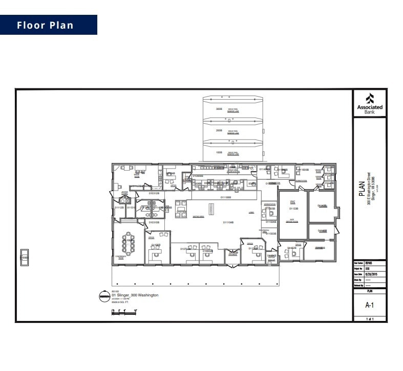
- Former freestanding bank branch with drive-thru.
- Large parcel with ample parking (+/- 55 stalls).
- Close proximity to Slinger High School (1,000+ students).
- Located in high growth and high income Slinger market.
- Access from both Washington St & Slinger Ave.
- Located near lots of local and national retailers.
Résumé de l'annonce
Retail/Office Building with Drive-Thru Opportunity
This 6,949 SF freestanding building, situated on a 2.65-acre parcel, offers exceptional visibility and functionality in the thriving Slinger market. Zoned B3 Commercial, the property features a former bank branch layout with an existing drive-thru, making it ideal for retail or office use. The single-story building, built in 1976, provides ample parking with approximately 55 stalls and convenient access from both Washington Street and Slinger Avenue. Located near Slinger High School (1,000+ students) and surrounded by national and local retailers, the site benefits from strong traffic counts—21,200 vehicles per day on E Commerce Blvd. Flexible sale or lease options are available, with lease rates ranging from $16.00–$20.00 PSF Gross and a sale price of $949,000.
This 6,949 SF freestanding building, situated on a 2.65-acre parcel, offers exceptional visibility and functionality in the thriving Slinger market. Zoned B3 Commercial, the property features a former bank branch layout with an existing drive-thru, making it ideal for retail or office use. The single-story building, built in 1976, provides ample parking with approximately 55 stalls and convenient access from both Washington Street and Slinger Avenue. Located near Slinger High School (1,000+ students) and surrounded by national and local retailers, the site benefits from strong traffic counts—21,200 vehicles per day on E Commerce Blvd. Flexible sale or lease options are available, with lease rates ranging from $16.00–$20.00 PSF Gross and a sale price of $949,000.
Faits sur la propriété
Type de vente
Investissement ou propriétaire utilisateur
Type de propriété
Commerce de détail
Sous-type de propriété
Banque
Taille du bâtiment
6 949 pi²
Classe d’immeuble
B
Année de construction
1976
Prix
1 319 660 $ CAD
Prix par pi²
189,91 $ CAD
Location
Unique
Hauteur du bâtiment
1 étage
Coefficient d’occupation des sols de l’immeuble
0,06
Taille du lot
2,65 AC
Zonage
B3 - Commercial
Stationnement
81 places (11,66 places par 1 000 pi² loué)
Façade
Commodités
- Enseigne sur pylône
- Affichage
Disponibilité des espaces
- Espace
- Taille
- Utilisation de l’espace
- Poste
- Disponible
Ancienne succursale bancaire autonome avec service au volant. Taux de location : 16,00 $ - 20,00 $ PSF brut
| Espace | Taille | Utilisation de l’espace | Poste | Disponible |
| 1er étage | 6 949 pi² | Commerce de détail | Parcelle de terrain vacant | 30 jours |
1er étage
| Taille |
| 6 949 pi² |
| Utilisation de l’espace |
| Commerce de détail |
| Poste |
| Parcelle de terrain vacant |
| Disponible |
| 30 jours |
1 de 1
Vidéos
Visite extérieure 3D Matterport
Visite 3D Matterport
Photos
Vue depuis la rue
Rue
Carte
1er étage
| Taille | 6 949 pi² |
| Utilisation de l’espace | Commerce de détail |
| Poste | Parcelle de terrain vacant |
| Disponible | 30 jours |
Ancienne succursale bancaire autonome avec service au volant. Taux de location : 16,00 $ - 20,00 $ PSF brut
Plutôt praticable à pied
30/100
Exceptionnellement facile d’accès en voiture
100/100
Assez praticable en vélo
30/100
Principaux détaillants à proximité
Impôts fonciers
| Numéro de lot | V5-031800A | Évaluation des bâtiments | 337 013 $ CAD |
| Évaluation du terrain | 486 182 $ CAD | Évaluation totale | 823 195 $ CAD |
Impôts fonciers
Numéro de lot
V5-031800A
Évaluation du terrain
486 182 $ CAD
Évaluation des bâtiments
337 013 $ CAD
Évaluation totale
823 195 $ CAD
1 de 4
Vidéos
Visite extérieure 3D Matterport
Visite 3D Matterport
Photos
Vue depuis la rue
Rue
Carte
Présenté par
300 E Washington St
Vous êtes déjà membre? Connectez-vous
Hmm, il semble y avoir eu une erreur lors de l’envoi de votre message. Veuillez réessayer.
Merci! Votre message a été envoyé.



