Votre courriel a été envoyé.
Certaines informations ont été traduites automatiquement.
Faits saillants
- Renovated interiors with maintenance-free siding.
- Located near Route 202 and US Business 30.
- Competitive lease rate with abundant parking.
- Flexible TC zoning for office or medical use.
- Surrounded by restaurants, banks, and retail.
Tous les espaces disponibles(1)
Afficher les taux de location en
- Espace
- Taille
- Terme
- Taux de location
- Utilisation de l’espace
- État
- Disponible
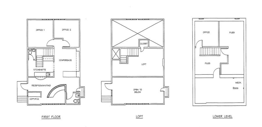
This 2,350 SF office condominium is located within the Exton Office Court, a well-positioned business community in the heart of Exton, PA. Zoned for Town Center Mixed Use (TC), the property accommodates a wide range of professional and medical office uses, offering flexibility for diverse business needs. The building features recent interior renovations, creating a modern and functional workspace complemented by an open, spacious layout. The property benefits from new maintenance-free siding and abundant on-site parking, ensuring convenience for employees and visitors. Its location along North Pottstown Pike provides excellent visibility and accessibility, with direct proximity to major routes including US Business 30 and Route 202. The surrounding area offers a robust mix of retail, dining, and hospitality options, including Whole Foods, Target, Panera, and numerous national and local brands, enhancing convenience for tenants and clients alike. Situated in a thriving commercial corridor, this office space combines accessibility, functionality, and a strong local business environment, making it an attractive option for companies seeking a well-connected and professionally maintained location.
- Taux de location inscrit plus part proportionnelle des coûts de la consommation électrique
- Disposition du plan d’étage ouverte en général
- 3 bureaux privés
- Aire de réception
- Entièrement construit comme Bureau standard
- Convient pour 6 à 19 personnes
- 1 salle de conférence
- Ample on-site parking for staff and visitors.
| Espace | Taille | Terme | Taux de location | Utilisation de l’espace | État | Disponible |
| 1er étage, ste 120 | 2 350 pi² | Négociable | 23,31 $ CAD/pi²/an 1,94 $ CAD/pi²/mois 54 773 $ CAD/an 4 564 $ CAD/mois | Bureau | construction complète | Maintenant |
1er étage, ste 120
| Taille |
| 2 350 pi² |
| Terme |
| Négociable |
| Taux de location |
| 23,31 $ CAD/pi²/an 1,94 $ CAD/pi²/mois 54 773 $ CAD/an 4 564 $ CAD/mois |
| Utilisation de l’espace |
| Bureau |
| État |
| construction complète |
| Disponible |
| Maintenant |
1er étage, ste 120
| Taille | 2 350 pi² |
| Terme | Négociable |
| Taux de location | 23,31 $ CAD/pi²/an |
| Utilisation de l’espace | Bureau |
| État | construction complète |
| Disponible | Maintenant |
This 2,350 SF office condominium is located within the Exton Office Court, a well-positioned business community in the heart of Exton, PA. Zoned for Town Center Mixed Use (TC), the property accommodates a wide range of professional and medical office uses, offering flexibility for diverse business needs. The building features recent interior renovations, creating a modern and functional workspace complemented by an open, spacious layout. The property benefits from new maintenance-free siding and abundant on-site parking, ensuring convenience for employees and visitors. Its location along North Pottstown Pike provides excellent visibility and accessibility, with direct proximity to major routes including US Business 30 and Route 202. The surrounding area offers a robust mix of retail, dining, and hospitality options, including Whole Foods, Target, Panera, and numerous national and local brands, enhancing convenience for tenants and clients alike. Situated in a thriving commercial corridor, this office space combines accessibility, functionality, and a strong local business environment, making it an attractive option for companies seeking a well-connected and professionally maintained location.
- Taux de location inscrit plus part proportionnelle des coûts de la consommation électrique
- Entièrement construit comme Bureau standard
- Disposition du plan d’étage ouverte en général
- Convient pour 6 à 19 personnes
- 3 bureaux privés
- 1 salle de conférence
- Aire de réception
- Ample on-site parking for staff and visitors.
Aperçu de la propriété
The property is a 2,350 SF office condominium located at 300 N Pottstown Pike, Suite 240, Exton, PA, within the Exton Office Court development. It is zoned for Town Center Mixed Use (TC), allowing for a variety of office and medical uses. The building has undergone recent interior renovations and features maintenance-free siding. The site offers on-site parking and is positioned near major transportation routes including US Business 30 and Route 202. The surrounding area includes retail centers, restaurants, banks, and hotels, providing convenient access to services and amenities.
- Puits de lumière
- Espace d'entreposage
- Hauts plafonds
- Climatisation
Faits sur la propriété
Sélectionner des locataires
- Étage
- Nom du locataire
- Secteur
- 1ᵉʳ
- Advocates Outreach, Inc.
- -
- 1ᵉʳ
- Cellucci Foran Insurance, Inc.
- -
- 1ᵉʳ
- Dr. John R. DiMedio
- -
- 1ᵉʳ
- First Choice Real Estate Services, L.L.C.
- -
- 1ᵉʳ
- Law Office of Jamie R. Hall
- -
- 1ᵉʳ
- Pagnotta Engineering, Inc.
- -
- 1ᵉʳ
- Pastperfect Museum Software, Inc
- Information
- 1ᵉʳ
- Premiere Assoc. Group LLC
- -
- 1ᵉʳ
- State Farm Insurance
- Finance et assurances
- 1ᵉʳ
- Systech Design
- Grossiste
Présenté par
300 N Pottstown Pike
Hmm, il semble y avoir eu une erreur lors de l’envoi de votre message. Veuillez réessayer.
Merci! Votre message a été envoyé.





