Votre courriel a été envoyé.
Turnkey Office & Wellness Spaces 300 Ohio St 1 250 pi² d'espace disponible • Bureau • Medina, NY 14103



Certaines informations ont été traduites automatiquement.
TOUS LES ESPACES DISPONIBLES(1)
Afficher les taux de location en
- ESPACE
- TAILLE
- TERME
- TAUX DE LOCATION
- UTILISATION DE L’ESPACE
- ÉTAT
- DISPONIBLE
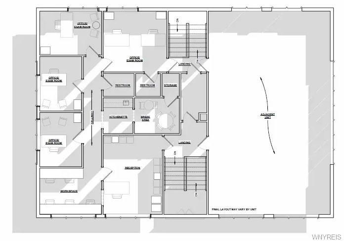
Welcome to Vitality Village premier office and wellness building located in historic Medina New York. Unlock the potential of your business with our state-of-the-art commercial workspace units. Designed to inspire and facilitate growth, these spaces serve as a foundation for professionals dedicated to enhancing the health and well-being of our community and or your top notch business. Each unit is crafted with functionality and flexibility in mind, ensuring that you have the perfect backdrop to offer your services. Each unit consists of a reception area, common workspace, a breakroom with kitchenette, 1 large exam room or private office space, 2 small and 1 medium patient exam or additional office space for your medical practice or growing business. Once completed this building will be newly renovated and ready to house your business or medical practice. View the attached floor plan and pictures to see if the layout meets your company or medical practice needs. Medina is centrally located between Buffalo and Rochester and is near the NYS Thruway for easy travel access. Rent is $2995.00 per month.
- Le taux de location ne comprend pas les services publics, les services de bâtiment ou les dépenses immobilières.
- Convient pour 4 à 10 personnes
| Espace | Taille | Terme | Taux de location | Utilisation de l’espace | État | Disponible |
| 1er étage, ste 1 | 1 250 pi² | 3-5 ans | Sur demande Sur demande Sur demande Sur demande | Bureau | - | Maintenant |
1er étage, ste 1
| Taille |
| 1 250 pi² |
| Terme |
| 3-5 ans |
| Taux de location |
| Sur demande Sur demande Sur demande Sur demande |
| Utilisation de l’espace |
| Bureau |
| État |
| - |
| Disponible |
| Maintenant |
1er étage, ste 1
| Taille | 1 250 pi² |
| Terme | 3-5 ans |
| Taux de location | Sur demande |
| Utilisation de l’espace | Bureau |
| État | - |
| Disponible | Maintenant |
Welcome to Vitality Village premier office and wellness building located in historic Medina New York. Unlock the potential of your business with our state-of-the-art commercial workspace units. Designed to inspire and facilitate growth, these spaces serve as a foundation for professionals dedicated to enhancing the health and well-being of our community and or your top notch business. Each unit is crafted with functionality and flexibility in mind, ensuring that you have the perfect backdrop to offer your services. Each unit consists of a reception area, common workspace, a breakroom with kitchenette, 1 large exam room or private office space, 2 small and 1 medium patient exam or additional office space for your medical practice or growing business. Once completed this building will be newly renovated and ready to house your business or medical practice. View the attached floor plan and pictures to see if the layout meets your company or medical practice needs. Medina is centrally located between Buffalo and Rochester and is near the NYS Thruway for easy travel access. Rent is $2995.00 per month.
- Le taux de location ne comprend pas les services publics, les services de bâtiment ou les dépenses immobilières.
- Convient pour 4 à 10 personnes
APERÇU DE LA PROPRIÉTÉ
Bienvenue à Vitality Village, un immeuble de bureaux et de bien-être de premier plan situé dans la ville historique de Medina, New York. Libérez le potentiel de votre entreprise grâce à nos unités de travail commerciales à la fine pointe de la technologie. Conçus pour inspirer et favoriser la croissance, ces espaces servent de base aux professionnels dédiés à améliorer la santé et le bien-être de notre communauté ou à développer votre entreprise de haut niveau. Chaque unité est pensée pour allier fonctionnalité et flexibilité, vous offrant le cadre idéal pour proposer vos services. Chaque unité comprend une zone de réception, un espace de travail commun, une salle de pause avec kitchenette, une grande salle d'examen ou bureau privé, ainsi que deux petites et une moyenne salle d'examen pour patients ou espaces de bureau supplémentaires pour votre pratique médicale ou entreprise en pleine expansion. Une fois les travaux terminés, ce bâtiment sera entièrement rénové et prêt à accueillir votre entreprise ou cabinet médical. Consultez le plan d'étage et les photos ci-joints pour vérifier si la disposition répond aux besoins de votre entreprise ou pratique médicale. Medina est idéalement située entre Buffalo et Rochester, à proximité de l'autoroute NYS Thruway, offrant un accès facile pour les déplacements. Le prix mensuel est de 2995,00 $. Pour plus d'informations, veuillez contacter Renee Shuner au 585-993-2274 ou par courriel à rschuner@zambitorealtors.com.
FAITS SUR LA PROPRIÉTÉ
Présenté par
Research In Progress
Turnkey Office & Wellness Spaces | 300 Ohio St
Hmm, il semble y avoir eu une erreur lors de l’envoi de votre message. Veuillez réessayer.
Merci! Votre message a été envoyé.



