Votre courriel a été envoyé.
3008-3014 Fulton St 15 341 pi² 77% Loué Commerce de détail Immeuble Brooklyn, NY 11208 11 025 120 $ CAD (718,67 $ CAD/pi²)



Certaines informations ont été traduites automatiquement.
Faits saillants de l'investissement
- Perfect for Mixed Use
- Flexible Zoning
- Development Opportunity
Résumé de l'annonce
Tirer parti de la croissance et de la connectivité de la région pour créer un projet hors du commun adapté à cette communauté dynamique et en plein essor. Ne manquez pas cette rare occasion de donner vie à votre vision dans l'un des endroits les plus prometteurs de Brooklyn !
Faits sur la propriété
Commodités
- Train de banlieue
- Lot de coin
- Terrain clôturé
- Métro
- Affichage
Disponibilité des espaces
- Espace
- Taille
- Utilisation de l’espace
- Poste
- Disponible
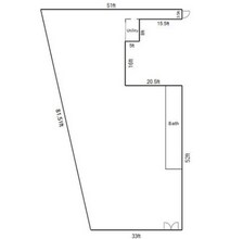
3014 Fulton Street : 3 500 pi² À LOUER Kalmon Dolgin Affiliates est ravi de proposer à la location un espace de 3 500 pi² sur Fulton St. à Cypress Hills, Brooklyn. Fulton St. est une artère principale locale et l'une des routes majeures pour les camions à Brooklyn. Idéal pour un commerce de détail, un centre de fitness, un restaurant ou un cabinet médical. Points forts de la propriété : PLAFONDS DE 12' SYSTÈME D'EXTINCTION AUTOMATIQUE (SPRINKLER) TOILETTES SÉPARÉES HOMMES & FEMMES ZONAGE C2-4 SECTEUR CYPRESS HILLS À PROXIMITÉ DU LIRR, DES LIGNES DE MÉTRO J & M, À 15 MINUTES DE JFK ET DU CENTRE-VILLE DE BROOKLYN
| Espace | Taille | Utilisation de l’espace | Poste | Disponible |
| 1er étage | 3 500 pi² | Commerce de détail | En ligne | Maintenant |
1er étage
| Taille |
| 3 500 pi² |
| Utilisation de l’espace |
| Commerce de détail |
| Poste |
| En ligne |
| Disponible |
| Maintenant |
1er étage
| Taille | 3 500 pi² |
| Utilisation de l’espace | Commerce de détail |
| Poste | En ligne |
| Disponible | Maintenant |
3014 Fulton Street : 3 500 pi² À LOUER Kalmon Dolgin Affiliates est ravi de proposer à la location un espace de 3 500 pi² sur Fulton St. à Cypress Hills, Brooklyn. Fulton St. est une artère principale locale et l'une des routes majeures pour les camions à Brooklyn. Idéal pour un commerce de détail, un centre de fitness, un restaurant ou un cabinet médical. Points forts de la propriété : PLAFONDS DE 12' SYSTÈME D'EXTINCTION AUTOMATIQUE (SPRINKLER) TOILETTES SÉPARÉES HOMMES & FEMMES ZONAGE C2-4 SECTEUR CYPRESS HILLS À PROXIMITÉ DU LIRR, DES LIGNES DE MÉTRO J & M, À 15 MINUTES DE JFK ET DU CENTRE-VILLE DE BROOKLYN
Principaux détaillants à proximité
Impôts fonciers
| Numéro de lot | 03956-0043 | Évaluation des bâtiments | 923 423 $ CAD |
| Évaluation du terrain | 167 444 $ CAD | Évaluation totale | 1 090 867 $ CAD |
Impôts fonciers
Présenté par
3008-3014 Fulton St
Hmm, il semble y avoir eu une erreur lors de l’envoi de votre message. Veuillez réessayer.
Merci! Votre message a été envoyé.




