Se Connecter/S’inscrire
Votre courriel a été envoyé.
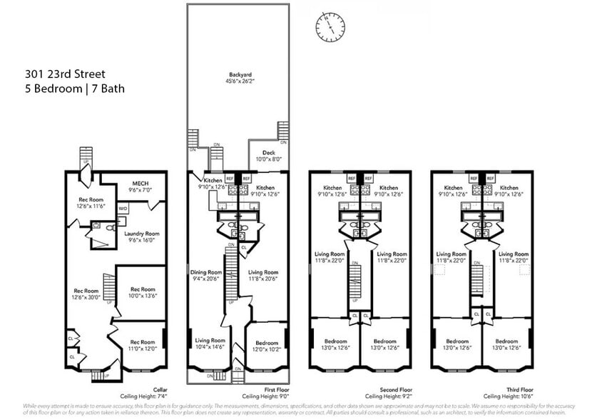
301 23rd St 6 Unité Immeuble d’appartements 4 667 520 $ CAD (777 920 $ CAD/Unité) Brooklyn, NY 11215



Certaines informations ont été traduites automatiquement.
Faits saillants de l'investissement
- flexibility for owner's duplex with additional private access to basement from street
- Highly sought after residential area of Brooklyn next to Historic acreage.
- Full back yard garden and patio area
Résumé de l'annonce
Property available for end user or 1031 Exchange. Contact for RR and building expenses.
As a 1031 the property will have one vacant unit in this otherwise fully-rented property. Six units total in well-maintained building, each unit has a renovated kitchen and bathroom. Building carries low annual taxes and expenses, yet provides a strong. All units are RS, but at competitive rental prices for the neighborhood. The full floor cellar has updated mechanicals and gas boiler.
As a owner occupied purchase the first floor unit is configured as a duplex, move in ready with additional access to entire lower level. With the existing separate entrance, the LL could be configured for whole building use to access laundry.
Property Information
Neighborhood – Brooklyn, Greenwood Heights
Near Historic – Greenwood Cemetery
Block & Lot – 00900-0067
Lot Dimensions – 26.17 ft x 100.17 ft
Lot Sq Ft – 2,621
Residential Sq Ft – 3,900
Average Residential Unit Size – approx. 650 sq ft
Building Class – Five to Six Families (C2)
Residential Sq Ft – 3,900
Building Dimensions – 26 ft x 50 ft
Buildings on Lot – 1
Stories – 3
Roof Height – 36 ft
Proximity – Semi-attached
Building Material – C block + brick Grade C
Structure Type – Walk-up apartments
As a 1031 the property will have one vacant unit in this otherwise fully-rented property. Six units total in well-maintained building, each unit has a renovated kitchen and bathroom. Building carries low annual taxes and expenses, yet provides a strong. All units are RS, but at competitive rental prices for the neighborhood. The full floor cellar has updated mechanicals and gas boiler.
As a owner occupied purchase the first floor unit is configured as a duplex, move in ready with additional access to entire lower level. With the existing separate entrance, the LL could be configured for whole building use to access laundry.
Property Information
Neighborhood – Brooklyn, Greenwood Heights
Near Historic – Greenwood Cemetery
Block & Lot – 00900-0067
Lot Dimensions – 26.17 ft x 100.17 ft
Lot Sq Ft – 2,621
Residential Sq Ft – 3,900
Average Residential Unit Size – approx. 650 sq ft
Building Class – Five to Six Families (C2)
Residential Sq Ft – 3,900
Building Dimensions – 26 ft x 50 ft
Buildings on Lot – 1
Stories – 3
Roof Height – 36 ft
Proximity – Semi-attached
Building Material – C block + brick Grade C
Structure Type – Walk-up apartments
Faits sur la propriété
Commodités
Commodités des unités
- Planchers de bois franc
- Jardin
- Porche
1 1
Exceptionnellement praticable à pied
100/100
Assez facile d’accès en voiture
50/100
Transports en commun exceptionnels
90/100
Moyennement praticable en vélo
60/100
Impôts fonciers
| Numéro de lot | 00900-0067 | Évaluation des bâtiments | 655 582 $ CAD |
| Évaluation du terrain | 7 415 $ CAD | Évaluation totale | 662 997 $ CAD |
Impôts fonciers
Numéro de lot
00900-0067
Évaluation du terrain
7 415 $ CAD
Évaluation des bâtiments
655 582 $ CAD
Évaluation totale
662 997 $ CAD
1 de 12
Vidéos
Visite extérieure 3D Matterport
Visite 3D Matterport
Photos
Vue depuis la rue
Rue
Carte
1 de 1
Présenté par
301 23rd St
Vous êtes déjà membre? Connectez-vous
Hmm, il semble y avoir eu une erreur lors de l’envoi de votre message. Veuillez réessayer.
Merci! Votre message a été envoyé.
