Se Connecter/S’inscrire
Votre courriel a été envoyé.
3010 Oakland Dr
Kalamazoo, MI 49008
Commerce de détail Propriété À vendre


Certaines informations ont été traduites automatiquement.
Faits saillants de l'investissement
- Full Service Salon
- Ample Parking
- High-Traffic Area (18,000 ADT - MDOT)
- Pylon Signage
Résumé de l'annonce
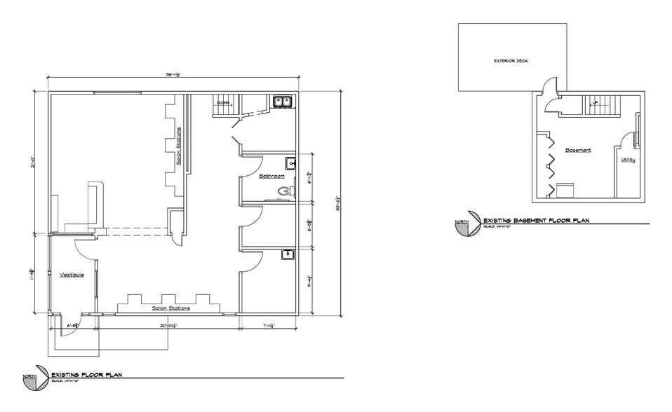
Full-Service Salon for Lease or Sale: 1,221 sq. ft. salon available in a freestanding building with prime frontage along high-traffic Oakland Drive in Kalamazoo, MI. This full-service salon includes six salon stations and separate rooms for manicures and pedicures. The building offers ample parking for clients and stylists, as well as a basement area with space for a full-size stackable washer and dryer. Conveniently located between the Oakwood and Winchell neighborhoods, the property is close to Western Michigan University, downtown Kalamazoo, and directly adjacent to Oakwood Plaza, a popular neighborhood center. This is a perfect opportunity for salon professionals or entrepreneurs looking to establish or expand in a vibrant, high-visibility corridor.
Faits sur la propriété
Type de vente
Investissement ou propriétaire utilisateur
Type de propriété
Commerce de détail
Sous-type de propriété
Immeuble de commerce
Taille du bâtiment
1 221 pi²
Classe d’immeuble
C
Année de construction
1964
Location
Unique
Hauteur du bâtiment
1 étage
Coefficient d’occupation des sols de l’immeuble
0,10
Taille du lot
0,27 AC
Zonage
CN-1
Stationnement
15 places (12,29 places par 1 000 pi² loué)
Façade
74’ sur Oakland Dr
Commodités
- Enseigne sur pylône
Impôts fonciers
| Numéro de lot | 06-29-485-003 | Évaluation des bâtiments | 0 $ CAD |
| Évaluation du terrain | 0 $ CAD | Évaluation totale | 105 659 $ CAD |
Impôts fonciers
Numéro de lot
06-29-485-003
Évaluation du terrain
0 $ CAD
Évaluation des bâtiments
0 $ CAD
Évaluation totale
105 659 $ CAD
1 de 11
Vidéos
Visite extérieure 3D Matterport
Visite 3D Matterport
Photos
Vue depuis la rue
Rue
Carte
