Votre courriel a été envoyé.
Venetian Plaza 304 W Venice Ave 1 134–6 444 pi² d'espace disponible • Bureau/Commerce de détail • Venice, FL 34285



Certaines informations ont été traduites automatiquement.
Faits saillants
- Score élevé d'aptitude à la marche
- Accès direct sur Venice Ave
- Zone commerçante et salle à manger populaire
Tous les espaces disponibles(4)
Afficher les taux de location en
- Espace
- Taille
- Terme
- Taux de location
- Utilisation de l’espace
- État
- Disponible
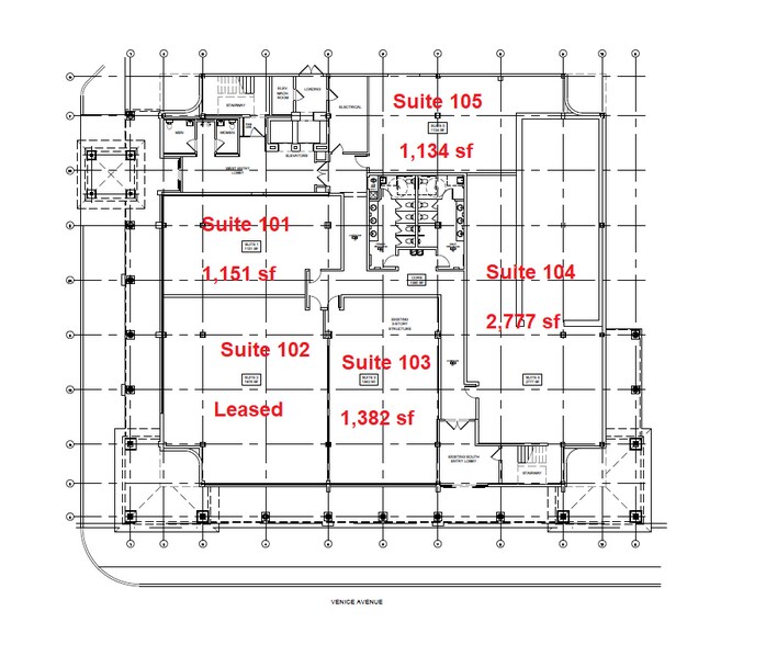
Suite 101 is on the Southwest side of the building. Space will be delivered as a vanilla shell. Building has shared bathrooms. This suite would be a wonderful location for a professional office. Leasing rate is negotiable between $32-$36/SF.
- Le taux de location ne comprend pas les services publics, les services de bâtiment ou les dépenses immobilières.
- 2 salles de conférence
- Convient pour 3 à 10 personnes
- Espace nécessitant des rénovations
Suite 103 faces directly on W Venice Ave with floor to ceiling windows that let in tons of natural light and gives the ability for passersby that are window shopping to be attracted to the business within. This suite would be perfect for a boutique clothing store, a retail shop, a small café, or a professional business. Suite 103 can be combined with Suite 104 for a total combined space of 4,159 SF. Space will be delivered as a vanilla shell. Leasing rate is negotiable between $32-$36/SF.
- Le taux de location ne comprend pas les services publics, les services de bâtiment ou les dépenses immobilières.
- Espace nécessitant des rénovations
- Lumière naturelle
- Convient pour 4 à 12 personnes
- Peut être associé à un ou plusieurs espaces supplémentaires pour obtenir jusqu’à 4 159 pi² d’espace adjacent.
Suite 104 is a 2,777 Sq Ft space that is located on the East end of the building, right next to popular Daiquiri Deck restaurant. This unit would make an excellent spot for a restaurant or large professional office. Suite 104 can be combined with Suite 103 for a total of 4,159 Sq Ft. Space will be delivered as a vanilla shell. Leasing rate is negotiable between $32-$36/SF.
- Le taux de location ne comprend pas les services publics, les services de bâtiment ou les dépenses immobilières.
- Espace nécessitant des rénovations
- Convient pour 7 à 23 personnes
- Peut être associé à un ou plusieurs espaces supplémentaires pour obtenir jusqu’à 4 159 pi² d’espace adjacent.
Suite 105 is a 1,134 Sq Ft suite located on the South side of the building facing the rear parking lot. This unit would make an excellent location for a retail boutique or a small professional office. Space will be delivered as a vanilla shell. Leasing rate is negotiable between $32-$36/SF.
- Le taux de location ne comprend pas les services publics, les services de bâtiment ou les dépenses immobilières.
- Espace nécessitant des rénovations
- Convient pour 3 à 10 personnes
| Espace | Taille | Terme | Taux de location | Utilisation de l’espace | État | Disponible |
| 1er étage, ste 101 | 1 151 pi² | Négociable | 49,23 $ CAD/pi²/an 4,10 $ CAD/pi²/mois 56 669 $ CAD/an 4 722 $ CAD/mois | Bureau/Commerce de détail | construction partielle | Maintenant |
| 1er étage, ste 103 | 1 382 pi² | Négociable | 49,23 $ CAD/pi²/an 4,10 $ CAD/pi²/mois 68 042 $ CAD/an 5 670 $ CAD/mois | Bureau/Commerce de détail | construction partielle | Maintenant |
| 1er étage, ste 104 | 2 777 pi² | Négociable | 49,23 $ CAD/pi²/an 4,10 $ CAD/pi²/mois 136 725 $ CAD/an 11 394 $ CAD/mois | Bureau/Commerce de détail | construction partielle | Maintenant |
| 1er étage, ste 105 | 1 134 pi² | Négociable | 49,23 $ CAD/pi²/an 4,10 $ CAD/pi²/mois 55 832 $ CAD/an 4 653 $ CAD/mois | Bureau/Commerce de détail | construction partielle | Maintenant |
1er étage, ste 101
| Taille |
| 1 151 pi² |
| Terme |
| Négociable |
| Taux de location |
| 49,23 $ CAD/pi²/an 4,10 $ CAD/pi²/mois 56 669 $ CAD/an 4 722 $ CAD/mois |
| Utilisation de l’espace |
| Bureau/Commerce de détail |
| État |
| construction partielle |
| Disponible |
| Maintenant |
1er étage, ste 103
| Taille |
| 1 382 pi² |
| Terme |
| Négociable |
| Taux de location |
| 49,23 $ CAD/pi²/an 4,10 $ CAD/pi²/mois 68 042 $ CAD/an 5 670 $ CAD/mois |
| Utilisation de l’espace |
| Bureau/Commerce de détail |
| État |
| construction partielle |
| Disponible |
| Maintenant |
1er étage, ste 104
| Taille |
| 2 777 pi² |
| Terme |
| Négociable |
| Taux de location |
| 49,23 $ CAD/pi²/an 4,10 $ CAD/pi²/mois 136 725 $ CAD/an 11 394 $ CAD/mois |
| Utilisation de l’espace |
| Bureau/Commerce de détail |
| État |
| construction partielle |
| Disponible |
| Maintenant |
1er étage, ste 105
| Taille |
| 1 134 pi² |
| Terme |
| Négociable |
| Taux de location |
| 49,23 $ CAD/pi²/an 4,10 $ CAD/pi²/mois 55 832 $ CAD/an 4 653 $ CAD/mois |
| Utilisation de l’espace |
| Bureau/Commerce de détail |
| État |
| construction partielle |
| Disponible |
| Maintenant |
1er étage, ste 101
| Taille | 1 151 pi² |
| Terme | Négociable |
| Taux de location | 49,23 $ CAD/pi²/an |
| Utilisation de l’espace | Bureau/Commerce de détail |
| État | construction partielle |
| Disponible | Maintenant |
Suite 101 is on the Southwest side of the building. Space will be delivered as a vanilla shell. Building has shared bathrooms. This suite would be a wonderful location for a professional office. Leasing rate is negotiable between $32-$36/SF.
- Le taux de location ne comprend pas les services publics, les services de bâtiment ou les dépenses immobilières.
- Convient pour 3 à 10 personnes
- 2 salles de conférence
- Espace nécessitant des rénovations
1er étage, ste 103
| Taille | 1 382 pi² |
| Terme | Négociable |
| Taux de location | 49,23 $ CAD/pi²/an |
| Utilisation de l’espace | Bureau/Commerce de détail |
| État | construction partielle |
| Disponible | Maintenant |
Suite 103 faces directly on W Venice Ave with floor to ceiling windows that let in tons of natural light and gives the ability for passersby that are window shopping to be attracted to the business within. This suite would be perfect for a boutique clothing store, a retail shop, a small café, or a professional business. Suite 103 can be combined with Suite 104 for a total combined space of 4,159 SF. Space will be delivered as a vanilla shell. Leasing rate is negotiable between $32-$36/SF.
- Le taux de location ne comprend pas les services publics, les services de bâtiment ou les dépenses immobilières.
- Convient pour 4 à 12 personnes
- Espace nécessitant des rénovations
- Peut être associé à un ou plusieurs espaces supplémentaires pour obtenir jusqu’à 4 159 pi² d’espace adjacent.
- Lumière naturelle
1er étage, ste 104
| Taille | 2 777 pi² |
| Terme | Négociable |
| Taux de location | 49,23 $ CAD/pi²/an |
| Utilisation de l’espace | Bureau/Commerce de détail |
| État | construction partielle |
| Disponible | Maintenant |
Suite 104 is a 2,777 Sq Ft space that is located on the East end of the building, right next to popular Daiquiri Deck restaurant. This unit would make an excellent spot for a restaurant or large professional office. Suite 104 can be combined with Suite 103 for a total of 4,159 Sq Ft. Space will be delivered as a vanilla shell. Leasing rate is negotiable between $32-$36/SF.
- Le taux de location ne comprend pas les services publics, les services de bâtiment ou les dépenses immobilières.
- Convient pour 7 à 23 personnes
- Espace nécessitant des rénovations
- Peut être associé à un ou plusieurs espaces supplémentaires pour obtenir jusqu’à 4 159 pi² d’espace adjacent.
1er étage, ste 105
| Taille | 1 134 pi² |
| Terme | Négociable |
| Taux de location | 49,23 $ CAD/pi²/an |
| Utilisation de l’espace | Bureau/Commerce de détail |
| État | construction partielle |
| Disponible | Maintenant |
Suite 105 is a 1,134 Sq Ft suite located on the South side of the building facing the rear parking lot. This unit would make an excellent location for a retail boutique or a small professional office. Space will be delivered as a vanilla shell. Leasing rate is negotiable between $32-$36/SF.
- Le taux de location ne comprend pas les services publics, les services de bâtiment ou les dépenses immobilières.
- Convient pour 3 à 10 personnes
- Espace nécessitant des rénovations
Aperçu de la propriété
L'ancien emplacement de la banque est réutilisé pour des commerces de détail, des restaurants ou des bureaux sur l'île de Venise. Espaces au rez-de-chaussée faciles d'accès directement sur l'avenue Venice, dans le quartier animé des restaurants et des commerces. Venice Ave est une destination très populaire pour les habitants et les touristes. Cet emplacement présente une exposition élevée pour les véhicules et les piétons et un score élevé d'aptitude à la marche. Plusieurs unités au choix et le propriétaire combinera et/ou se divisera. Les suites seront livrées sous forme de coquille de vanille.
- Ligne d'autobus
- Affichage
Faits sur la propriété
Présenté par
Venetian Plaza | 304 W Venice Ave
Hmm, il semble y avoir eu une erreur lors de l’envoi de votre message. Veuillez réessayer.
Merci! Votre message a été envoyé.


