Votre courriel a été envoyé.
3041 Avenue U 3 000–6 000 pi² d'espace disponible • Bureau/Médical • Brooklyn, NY 11229



Certaines informations ont été traduites automatiquement.
TOUS LES ESPACES DISPONIBLES(2)
Afficher les taux de location en
- ESPACE
- TAILLE
- TERME
- TAUX DE LOCATION
- UTILISATION DE L’ESPACE
- ÉTAT
- DISPONIBLE
The 2nd Floor, consisting of approximately 3,000 SF is currently vacant. It was previously being used by the NY Presbyterian Methodist Urology Practice.
- Le taux de location ne comprend pas les services publics, les services de bâtiment ou les dépenses immobilières.
- Convient pour 8 à 24 personnes
- Accès aux ascenseurs
- New Construction- modern design
- Prime Brooklyn Location
- Entièrement construit comme Espace médical standard
- Espace en excellent état
- Move-in Ready
- Convenient Passenger Elevator
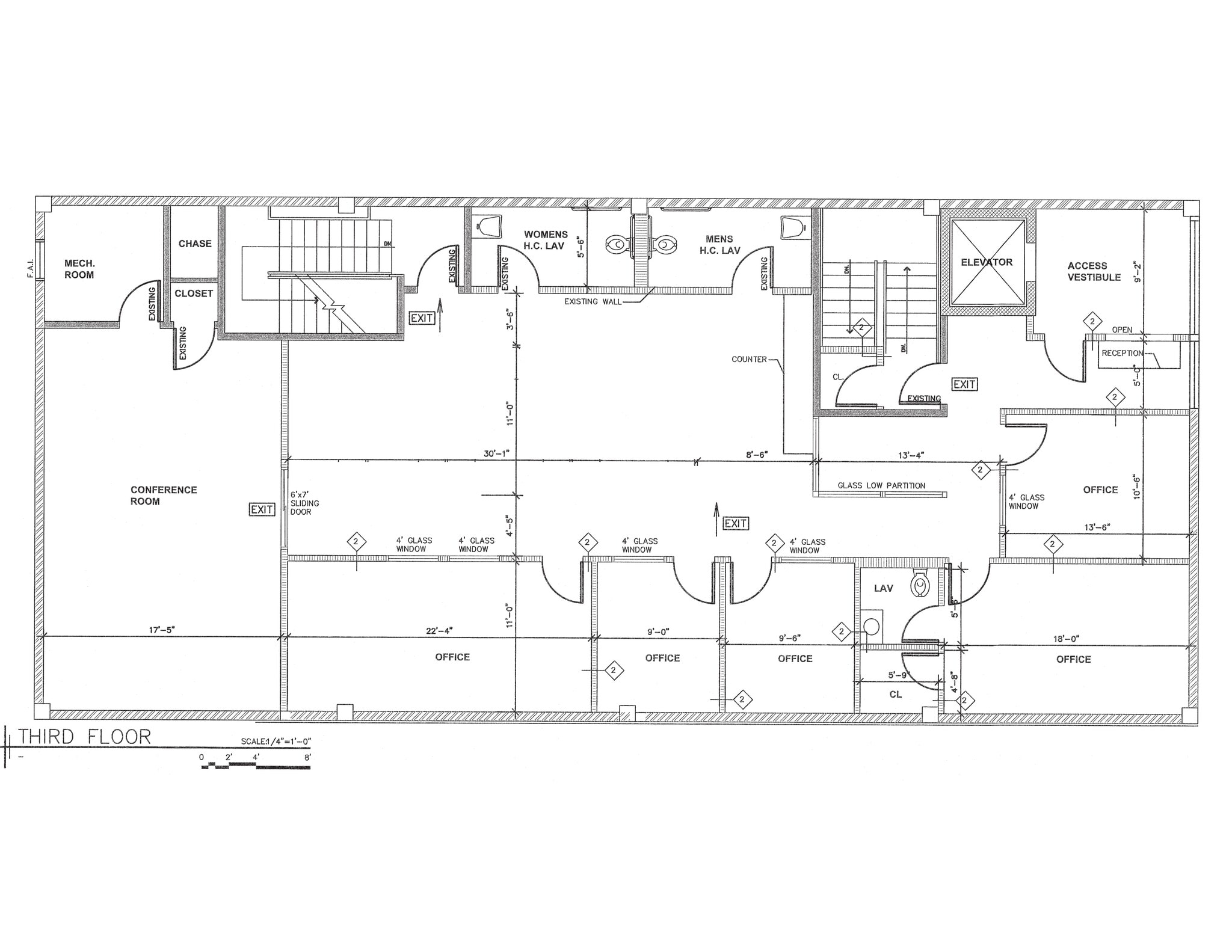
The 3rd Floor, consisting of approximately 3,000 SF is currently vacant. It was previously being used by an Orthopedic Surgeon Practice.
- Le taux de location ne comprend pas les services publics, les services de bâtiment ou les dépenses immobilières.
- Convient pour 8 à 24 personnes
- Accès aux ascenseurs
- New Construction- modern design
- Prime Brooklyn Location
- Entièrement construit comme Espace médical standard
- Espace en excellent état
- Move-in Ready
- Convenient Passenger Elevator
| Espace | Taille | Terme | Taux de location | Utilisation de l’espace | État | Disponible |
| 2e étage | 3 000 pi² | 5-10 ans | 44,30 $ CAD/pi²/an 3,69 $ CAD/pi²/mois 132 912 $ CAD/an 11 076 $ CAD/mois | Bureau/Médical | construction complète | Maintenant |
| 3e étage | 3 000 pi² | 5-10 ans | 44,30 $ CAD/pi²/an 3,69 $ CAD/pi²/mois 132 912 $ CAD/an 11 076 $ CAD/mois | Bureau/Médical | construction complète | Maintenant |
2e étage
| Taille |
| 3 000 pi² |
| Terme |
| 5-10 ans |
| Taux de location |
| 44,30 $ CAD/pi²/an 3,69 $ CAD/pi²/mois 132 912 $ CAD/an 11 076 $ CAD/mois |
| Utilisation de l’espace |
| Bureau/Médical |
| État |
| construction complète |
| Disponible |
| Maintenant |
3e étage
| Taille |
| 3 000 pi² |
| Terme |
| 5-10 ans |
| Taux de location |
| 44,30 $ CAD/pi²/an 3,69 $ CAD/pi²/mois 132 912 $ CAD/an 11 076 $ CAD/mois |
| Utilisation de l’espace |
| Bureau/Médical |
| État |
| construction complète |
| Disponible |
| Maintenant |
2e étage
| Taille | 3 000 pi² |
| Terme | 5-10 ans |
| Taux de location | 44,30 $ CAD/pi²/an |
| Utilisation de l’espace | Bureau/Médical |
| État | construction complète |
| Disponible | Maintenant |
The 2nd Floor, consisting of approximately 3,000 SF is currently vacant. It was previously being used by the NY Presbyterian Methodist Urology Practice.
- Le taux de location ne comprend pas les services publics, les services de bâtiment ou les dépenses immobilières.
- Entièrement construit comme Espace médical standard
- Convient pour 8 à 24 personnes
- Espace en excellent état
- Accès aux ascenseurs
- Move-in Ready
- New Construction- modern design
- Convenient Passenger Elevator
- Prime Brooklyn Location
3e étage
| Taille | 3 000 pi² |
| Terme | 5-10 ans |
| Taux de location | 44,30 $ CAD/pi²/an |
| Utilisation de l’espace | Bureau/Médical |
| État | construction complète |
| Disponible | Maintenant |
The 3rd Floor, consisting of approximately 3,000 SF is currently vacant. It was previously being used by an Orthopedic Surgeon Practice.
- Le taux de location ne comprend pas les services publics, les services de bâtiment ou les dépenses immobilières.
- Entièrement construit comme Espace médical standard
- Convient pour 8 à 24 personnes
- Espace en excellent état
- Accès aux ascenseurs
- Move-in Ready
- New Construction- modern design
- Convenient Passenger Elevator
- Prime Brooklyn Location
CARACTÉRISTIQUES ET COMMODITÉS
- Accès 24 heures
- Ligne d'autobus
- Métro
- Système de sécurité
- Chauffage central
- Climatisation
FAITS SUR LA PROPRIÉTÉ
SÉLECTIONNER DES LOCATAIRES
- ÉTAGE
- NOM DU LOCATAIRE
- SECTEUR
- 2ᵉ
- Advanced Urology Assoc
- Soins de santé et assistance sociale
- 3ᵉ
- Contemporary Orthopedics PLLC
- Soins de santé et assistance sociale
- Inconnu
- Gata Thai Kitchen Inc
- Détaillant
- 1ᵉʳ
- Makor Care and Services
- Soins de santé et assistance sociale
- SS
- Metro PT Specialists
- Soins de santé et assistance sociale
- Inconnu
- NYC Party Planner
- Services professionnels, scientifiques et techniques
Présenté par
Sal Abecasis
3041 Avenue U
Hmm, il semble y avoir eu une erreur lors de l’envoi de votre message. Veuillez réessayer.
Merci! Votre message a été envoyé.





