Votre courriel a été envoyé.
3045 E Texas St 33 021–79 528 pi² d'espace disponible • Commerce de détail • Bossier City, LA 71111



Certaines informations ont été traduites automatiquement.
Disponibilité des espaces (2)
Afficher les taux de location en
- Espace
- Taille
- Plafond
- Terme
- Taux de location
- Type de loyer
| Espace | Taille | Plafond | Terme | Taux de location | Type de loyer | |
| 1er étage, ste 2 | 46 507 pi² | 14’ | Négociable | 5,47 $ CAD/pi²/an 0,46 $ CAD/pi²/mois 254 457 $ CAD/an 21 205 $ CAD/mois | Loyer hypernet | |
| 1er étage, ste 3 | 33 021 pi² | 14’ | Négociable | 5,47 $ CAD/pi²/an 0,46 $ CAD/pi²/mois 180 670 $ CAD/an 15 056 $ CAD/mois | Loyer hypernet |
1er étage, ste 2
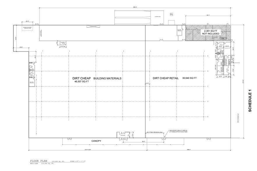
79,529 sf Available Former Dirt Cheap Building Supply (46,507 sf) and Retail Store (33,021 sf) contiguous spaces adjacent to Ollie's, located at NE corner of intersection of Airline Drive and East Texas Street (U.S. Hwy 80) in Bossier City, diagonally across street from Pierre Bossier Mall. Traffic count 53,000 cars per day. New HVAC system installed 2015. 20' ceiling height to deck and 14' to the existing finished ceiling. One block north of Interstate 20. Owner-Agent
- Le taux de location ne comprend pas les services publics, les services de bâtiment ou les dépenses immobilières.
- Situé en ligne avec d’autres commerces de détail
- Peut être associé à un ou plusieurs espaces supplémentaires pour obtenir jusqu’à 79 528 pi² d’espace adjacent.
- Plafonds finis: 14’
1er étage, ste 3
Former Dirt Cheap Building Supply (46,507 sf) and Retail Store (33,021 sf) contiguous spaces adjacent to Ollie's, located at NE corner of intersection of Airline Drive and East Texas Street (U.S. Hwy 80) in Bossier City, diagonally across street from Pierre Bossier Mall. Traffic count 53,000 cars per day. New HVAC system installed 2015. 20' ceiling height to deck and 14' to the existing finished ceiling. One block north of Interstate 20. Owner-Agent
- Le taux de location ne comprend pas les services publics, les services de bâtiment ou les dépenses immobilières.
- Situé en ligne avec d’autres commerces de détail
- Peut être associé à un ou plusieurs espaces supplémentaires pour obtenir jusqu’à 79 528 pi² d’espace adjacent.
- Plafonds finis: 14’
Types de loyers
Le type et le montant du loyer que le locataire (preneur) est tenu de payer au propriétaire (bailleur) sur la durée du bail sont négociés avant la signature du bail par les deux parties. Le type de loyer varie selon les services fournis. Par exemple, le prix d’un loyer hypernet est habituellement inférieur à celui d’un bail à service complet puisque le locataire est tenu d’assumer des dépenses additionnelles par rapport au loyer de base. Contactez le courtier inscripteur pour tout connaître sur les frais connexes et additionnels associés à chaque type de loyer.
1. Service complet: Un taux de location qui comprend des services standards liés à l’immeuble fournis par le propriétaire dans le cadre d’une location annuelle de base.
2. Loyer supernet: Le locataire paie seulement deux des frais de l’immeuble. Le propriétaire et le locataire déterminent ces frais spécifiques avant la signature du bail.
3. Loyer hypernet: Un bail en vertu duquel le locataire est responsable de tous les frais liés à sa part proportionnelle d’occupation de l’immeuble.
4. Brut modifié: Le loyer brut modifié désigne un type général de taux de location dans lequel le locataire est habituellement responsable de sa part proportionnelle d’un ou de plusieurs frais. C’est le propriétaire qui paie les frais restants. Considérez les structures tarifaires courantes suivantes applicables aux loyers bruts modifiés: 4. Plus les services: Un type de bail brut modifié suivant lequel le locataire est responsable de sa part proportionnelle des coûts des services publics, en plus du loyer. 4. Plus le nettoyage: Un type de bail brut modifié suivant lequel le locataire est responsable de sa part proportionnelle des coûts de nettoyage, en plus du loyer. 4. Plus l'électricité: Un type de bail brut modifié suivant lequel le locataire est responsable de sa part proportionnelle des coûts d’électricité, en plus du loyer. 4. Plus l’électricité et le nettoyage: Un type de bail brut modifié dans lequel le locataire est responsable de sa part proportionnelle des coûts d’électricité et de nettoyage, en plus du loyer. 4. Plus les services publics et le nettoyage: Un type de bail brut modifié dans lequel le locataire est responsable de sa part proportionnelle des coûts des services publics et de nettoyage, en plus du loyer. 4. Bail industriel brut: Un type de bail brut modifié dans lequel le locataire paie un ou plusieurs des frais, en plus du loyer. Le propriétaire et le locataire déterminent ces frais spécifiques avant la signature du bail.
5. L’électricité est à la charge du locataire: Le propriétaire paie pour tous les services et le locataire est responsable de sa propre utilisation de l’éclairage et des prises électriques dans l’espace qu’il occupe.
6. Négociable ou sur demande: Cette option est utilisée lorsque le contact de location ne précise pas le type de loyer ou de service.
7. À déterminer: À déterminer ; utilisé pour les immeubles dont le type de services ou de loyer n’est pas connu, souvent quand l’immeuble n’est pas encore construit.
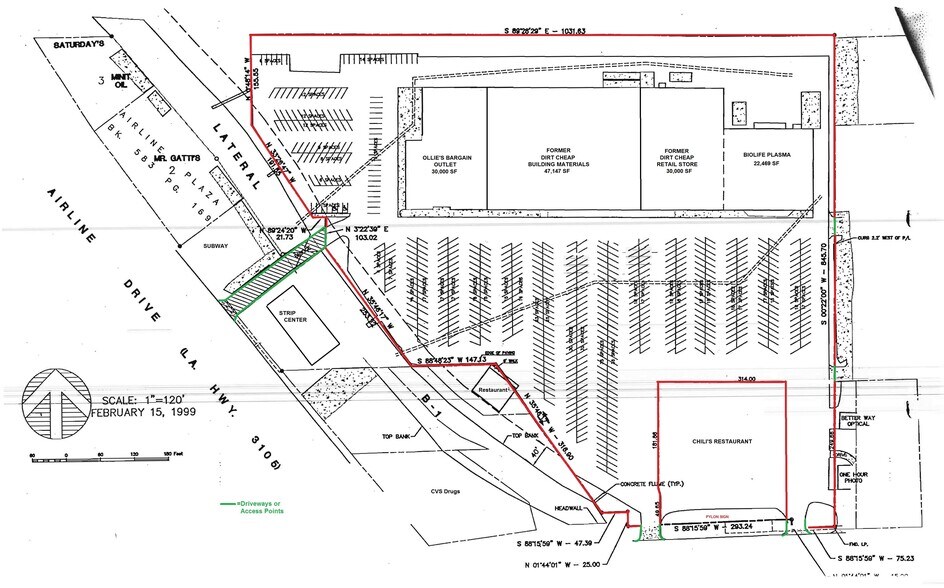
Plan de site
Sélectionner des locataires à 3045 E Texas St, Bossier City, LA 71111
- Locataire
- Description
- Emplacements US
- Portée
- Ollie's Bargain Outlet
- Magasin à un dollar / Variété / Friperie
- 400
- National
| Locataire | Description | Emplacements US | Portée |
| Ollie's Bargain Outlet | Magasin à un dollar / Variété / Friperie | 400 | National |
Faits sur la propriété
| Superficie totale disponible | 79 528 pi² | Superficie commerciale brute | 132 272 pi² |
| Type de propriété | Commerce de détail | Année de construction/rénovation | 1972/1999 |
| Sous-type de propriété | Boutique | Ratio de stationnement | 4,91/1 000 pi² |
| Superficie totale disponible | 79 528 pi² |
| Type de propriété | Commerce de détail |
| Sous-type de propriété | Boutique |
| Superficie commerciale brute | 132 272 pi² |
| Année de construction/rénovation | 1972/1999 |
| Ratio de stationnement | 4,91/1 000 pi² |
À propos de la propriété
Anciens locaux contigus Dirt Cheap Building Supply (46 507 pi2) et magasin de détail (33 021 pi2) adjacents à Ollie's, situés à l'angle NE de l'intersection de Airline Drive et East Texas Street (U.S. Hwy 80) à Bossier City, en diagonale de l'autre côté de la rue Pierre Bossier Mall. Le trafic est de 53 000 voitures par jour. Nouveau système de CVC installé en 2015. Hauteur du plafond de 20 pi sur le pont et 14 pi jusqu'au plafond fini existant. Un pâté de maisons au nord de l'Interstate 20. Propriétaire-agent
- Affichage
- Climatisation
Principaux détaillants à proximité
Présenté par
Sale Commercial Properties, Inc
3045 E Texas St
Hmm, il semble y avoir eu une erreur lors de l’envoi de votre message. Veuillez réessayer.
Merci! Votre message a été envoyé.



