Votre courriel a été envoyé.
307 Fort Argyle Rd - Commercial + MultiFamily Development Site Lot • Terrain commercial • 33 Acres • 11 708 750 $ CAD • Savannah, GA 31419

Certaines informations ont été traduites automatiquement.
Faits saillants de l'investissement
- Lift Station in permitting and cost is included in list price
- New Spine Road with New Street Light at entrance to Development
- Green space buffer between multifamily residential and light industrial sites.
- Fully Entitled
- Utilities include Gas, Water Sewer, Electric all accessible at spine road
- All traffic studies are complete and approved by GDOT
Faits sur la propriété
1 Lot disponible
Lot
| Prix | 11 708 750 $ CAD | Taille du lot | 33,00 AC |
| Prix par AC | 354 810,62 $ CAD |
| Prix | 11 708 750 $ CAD |
| Prix par AC | 354 810,62 $ CAD |
| Taille du lot | 33,00 AC |
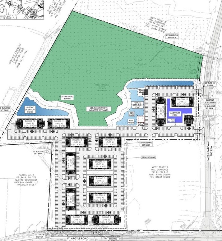
Commercial Corner lot and multifamily site located at entrance of newly developed industrial park, SIP95.
Description
Fort Argyle Mixed-Use Development | Savannah, GA Fully Entitiled $8,500,000 | ±32.7 Acres (Combined Offering) Location Signalized corner at Fort Argyle Road (Hwy 204) & Kaizen Parkway -0.9 miles to Interstate 95 -Direct access to the SIP95 industrial park Industrial Growth Drivers -5.5M+ SF operational industrial within 0.8 miles -3.5M+ SF currently under construction -14.9 miles to the Port of Savannah -19.6 miles to Hyundai Metaplant America Zoning & Development Potential ±26.7 acres zoned RMF-2 (Residential Multi-Family) Conceptual plan supports approximately 300± garden-style units ±6 acres zoned B-C (General Commercial) Corner location suitable for fuel, convenience retail, neighborhood retail, truck stop, or self-storage Infrastructure -Water and sewer available at site -Established public road access Savannah continues to see accelerated industrial expansion driven by port growth, Hyundai’s investment, and sustained logistics demand. This site offers the opportunity to control both multifamily and commercial frontage at a primary access point serving one of the region’s most active employment corridors.
Présenté par
307 Fort Argyle Rd - Commercial + MultiFamily Development Site
Hmm, il semble y avoir eu une erreur lors de l’envoi de votre message. Veuillez réessayer.
Merci! Votre message a été envoyé.
